Hastings Street, Loughborough, LE11

Letting details
- Let available date:
- 01/07/2026
- Deposit:
- £600A deposit provides security for a landlord against damage, or unpaid rent by a tenant.Read more about deposit in our glossary page.
- Min. Tenancy:
- 12 months How long the landlord offers to let the property for.Read more about tenancy length in our glossary page.
- Furnish type:
- Furnished
- Council Tax:
- Ask agent
- PROPERTY TYPE
House Share
- BEDROOMS
2
- BATHROOMS
1
- SIZE
Ask agent
Key features
- Prime location off Ashby Rd
- For 2026/27 academic year
- Two Bed House
- Fully furnished
- Low maintenance garden
- Students
Description
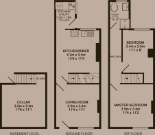
Lounge 3.5m (11'6) x 3.4m (11'2)
Good sized lounge at the front of the property complete with furniture.
Kitchen Diner 4.2m (13'9) x 3.5m (11'6)
Complete with Gas oven & hob, Fridge freezer, Washing machine and dining table & chairs.
Bedroom One 3.5m (11'6) x 3.4m (11'2)
Fully furnished large double bedroom overlooking the front of the property.
Bedroom Two 3.4m (11'2) x 2.5m (8'2)
Fully furnished double bedroom overlooking the rear of the property.
Shower room 2.2m (7'3) x 1.6m (5'3)
Shower room complete with electric shower, wash hand basin and toilet.
Garden
Enclosed rear yard
Utilities
Sorry, bills not included
Parking
On street parking with residents parking permit.
Heating
Gas fired central heating.
Glazing
Upvc double glazing.
Brochures
267.pdf- COUNCIL TAXA payment made to your local authority in order to pay for local services like schools, libraries, and refuse collection. The amount you pay depends on the value of the property.Read more about council Tax in our glossary page.
- Band: A
- PARKINGDetails of how and where vehicles can be parked, and any associated costs.Read more about parking in our glossary page.
- Ask agent
- GARDENA property has access to an outdoor space, which could be private or shared.
- Yes
- ACCESSIBILITYHow a property has been adapted to meet the needs of vulnerable or disabled individuals.Read more about accessibility in our glossary page.
- Ask agent
Hastings Street, Loughborough, LE11
Add an important place to see how long it'd take to get there from our property listings.
__mins driving to your place
Notes
Staying secure when looking for property
Ensure you're up to date with our latest advice on how to avoid fraud or scams when looking for property online.
Visit our security centre to find out moreDisclaimer - Property reference 267. The information displayed about this property comprises a property advertisement. Rightmove.co.uk makes no warranty as to the accuracy or completeness of the advertisement or any linked or associated information, and Rightmove has no control over the content. This property advertisement does not constitute property particulars. The information is provided and maintained by Huntleys, Loughborough. Please contact the selling agent or developer directly to obtain any information which may be available under the terms of The Energy Performance of Buildings (Certificates and Inspections) (England and Wales) Regulations 2007 or the Home Report if in relation to a residential property in Scotland.
*This is the average speed from the provider with the fastest broadband package available at this postcode. The average speed displayed is based on the download speeds of at least 50% of customers at peak time (8pm to 10pm). Fibre/cable services at the postcode are subject to availability and may differ between properties within a postcode. Speeds can be affected by a range of technical and environmental factors. The speed at the property may be lower than that listed above. You can check the estimated speed and confirm availability to a property prior to purchasing on the broadband provider's website. Providers may increase charges. The information is provided and maintained by Decision Technologies Limited. **This is indicative only and based on a 2-person household with multiple devices and simultaneous usage. Broadband performance is affected by multiple factors including number of occupants and devices, simultaneous usage, router range etc. For more information speak to your broadband provider.
Map data ©OpenStreetMap contributors.




