Shelbourne Mews, Macclesfield

- PROPERTY TYPE
Mews
- BEDROOMS
2
- BATHROOMS
1
- SIZE
Ask agent
- TENUREDescribes how you own a property. There are different types of tenure - freehold, leasehold, and commonhold.Read more about tenure in our glossary page.
Ask agent
Key features
- -A Lovely Two Double Bedroom Mews Home.
- -Situated On The Extremely Sought After Villas Development.
- - Beautifully Presented Accomoddation With Re-Fitted Shower Room.
- - Open Plan Dining/Kitchen An Spacious Lounge.
- - Private Rear Garden And Parking For Two Cars.
Description
DESCRIPTION
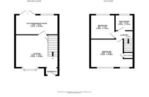
A well presented two double bedroomed Semi-detached home situated on the extremely sought after Jones built Villas development, having parking for two cars and a private rear garden.
Originally built in the early 1990's to a most appealing design the property has double glazing and a newly installed Vaillant gas fired central heating boiler. The accommodation in brief comprises of an entrance vestibule, lounge with bay window to the front aspect stairs to the first floor, attractive fire place housing a living flame gas fire and under stairs storage cupboard. To the rear there is an open plan dining/kitchen which is attractively fitted in a matching range of units wooden floor, window and french doors onto the private garden. On the first floor there are two bedrooms and a beautifully re-fitted shower room.
Outside private gardens, patio, raised borders timber shed, to the front there is parking for two cars.
DESCRIPTION
Brochures
BROCHURE.pdf- COUNCIL TAXA payment made to your local authority in order to pay for local services like schools, libraries, and refuse collection. The amount you pay depends on the value of the property.Read more about council Tax in our glossary page.
- Band: C
- PARKINGDetails of how and where vehicles can be parked, and any associated costs.Read more about parking in our glossary page.
- Yes
- GARDENA property has access to an outdoor space, which could be private or shared.
- Yes
- ACCESSIBILITYHow a property has been adapted to meet the needs of vulnerable or disabled individuals.Read more about accessibility in our glossary page.
- Ask agent
Shelbourne Mews, Macclesfield
Add an important place to see how long it'd take to get there from our property listings.
__mins driving to your place
Get an instant, personalised result:
- Show sellers you’re serious
- Secure viewings faster with agents
- No impact on your credit score
Your mortgage
Notes
Staying secure when looking for property
Ensure you're up to date with our latest advice on how to avoid fraud or scams when looking for property online.
Visit our security centre to find out moreDisclaimer - Property reference 1029489. The information displayed about this property comprises a property advertisement. Rightmove.co.uk makes no warranty as to the accuracy or completeness of the advertisement or any linked or associated information, and Rightmove has no control over the content. This property advertisement does not constitute property particulars. The information is provided and maintained by Gascoigne Halman, Macclesfield. Please contact the selling agent or developer directly to obtain any information which may be available under the terms of The Energy Performance of Buildings (Certificates and Inspections) (England and Wales) Regulations 2007 or the Home Report if in relation to a residential property in Scotland.
*This is the average speed from the provider with the fastest broadband package available at this postcode. The average speed displayed is based on the download speeds of at least 50% of customers at peak time (8pm to 10pm). Fibre/cable services at the postcode are subject to availability and may differ between properties within a postcode. Speeds can be affected by a range of technical and environmental factors. The speed at the property may be lower than that listed above. You can check the estimated speed and confirm availability to a property prior to purchasing on the broadband provider's website. Providers may increase charges. The information is provided and maintained by Decision Technologies Limited. **This is indicative only and based on a 2-person household with multiple devices and simultaneous usage. Broadband performance is affected by multiple factors including number of occupants and devices, simultaneous usage, router range etc. For more information speak to your broadband provider.
Map data ©OpenStreetMap contributors.




