
2 bedroom semi-detached house for sale
Sandown Road, Kingsmere, Bicester, Oxfordshire, OX26

- PROPERTY TYPE
Semi-Detached
- BEDROOMS
2
- BATHROOMS
1
- SIZE
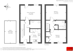
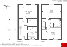
796 sq ft
74 sq m
- TENUREDescribes how you own a property. There are different types of tenure - freehold, leasehold, and commonhold.Read more about tenure in our glossary page.
Freehold
Key features
- Within a mile walk to a plethora of local amenities
- Private Enclosed Rear Garden
- Ground Floor W.C
- Potential to extend subject to the normal consent
- Driveway Parking
- Less than half a mile to local schooling
- Constructed in 2017
- Set in the Popular Kingsmere Area
Description
This two bedroom home with a driveway, private garden, and ground floor W.C is available to market either as a full share or a shared ownership portion. The property was constructed in 2017 and is the ideal first step onto the ladder or as a downsize. Coming in at just over 800sqft of accommodation
Property Details
Located in the popular area of Kingsmere, this large family home enjoys close proximity to local schools, shops, supermarkets, and leisure facilities. Nearby attractions include walking trails, Whitelands Farm Sports Ground, David Lloyd Gym and Bicester Village designer outlet shopping with over 170 luxury boutiques and restaurants all on your doorstep.
Bicester is a historic market town which offers an array of amenities including cafes, pubs, restaurants, Cinema, weekly markets, and major supermarkets such as Sainsbury’s, Tesco, and Marks & Spencer. Bicester benefits from two railway stations and the proximity of the M40 provides easy access to London, Oxford, Birmingham, and the M25, with Heathrow Airport reachable in under 50 minutes.
From The Owners; We have loved becoming a family in our house on Sandown road and have found the space in the bedrooms particularly useful. Both bedrooms are spacious, with plenty of room for a double bed and furniture. The second bedroom has a built in wardrobe and a cupboard space. The house has a large downstairs toilet that we have combined with a utility area as it comfortably fits a washing machine and clothes airer.
For a new build, we have been very lucky with the garden space as this has been wonderful in spring/summer months. The garden has a decent sized shed to the side of the property so it does not take up any garden space. The location of the house has been ideal for us, with shops, a gym and a primary school in walking distance. We are also very close to many parks and green spaces which has been great for us as a young family. Bicester Village train station is a short walk away which makes travel really easy from our location.
Brochures
More details from Chancellors- COUNCIL TAXA payment made to your local authority in order to pay for local services like schools, libraries, and refuse collection. The amount you pay depends on the value of the property.Read more about council Tax in our glossary page.
- Band: B
- PARKINGDetails of how and where vehicles can be parked, and any associated costs.Read more about parking in our glossary page.
- Off street
- GARDENA property has access to an outdoor space, which could be private or shared.
- Private garden
- ACCESSIBILITYHow a property has been adapted to meet the needs of vulnerable or disabled individuals.Read more about accessibility in our glossary page.
- Ask agent
Sandown Road, Kingsmere, Bicester, Oxfordshire, OX26
Add an important place to see how long it'd take to get there from our property listings.
__mins driving to your place
Get an instant, personalised result:
- Show sellers you’re serious
- Secure viewings faster with agents
- No impact on your credit score
Your mortgage
Notes
Staying secure when looking for property
Ensure you're up to date with our latest advice on how to avoid fraud or scams when looking for property online.
Visit our security centre to find out moreDisclaimer - Property reference 6037343. The information displayed about this property comprises a property advertisement. Rightmove.co.uk makes no warranty as to the accuracy or completeness of the advertisement or any linked or associated information, and Rightmove has no control over the content. This property advertisement does not constitute property particulars. The information is provided and maintained by Chancellors, Bicester. Please contact the selling agent or developer directly to obtain any information which may be available under the terms of The Energy Performance of Buildings (Certificates and Inspections) (England and Wales) Regulations 2007 or the Home Report if in relation to a residential property in Scotland.
*This is the average speed from the provider with the fastest broadband package available at this postcode. The average speed displayed is based on the download speeds of at least 50% of customers at peak time (8pm to 10pm). Fibre/cable services at the postcode are subject to availability and may differ between properties within a postcode. Speeds can be affected by a range of technical and environmental factors. The speed at the property may be lower than that listed above. You can check the estimated speed and confirm availability to a property prior to purchasing on the broadband provider's website. Providers may increase charges. The information is provided and maintained by Decision Technologies Limited. **This is indicative only and based on a 2-person household with multiple devices and simultaneous usage. Broadband performance is affected by multiple factors including number of occupants and devices, simultaneous usage, router range etc. For more information speak to your broadband provider.
Map data ©OpenStreetMap contributors.








