
4 bedroom semi-detached house for sale
KINGSWINFORD, Broad Street

- PROPERTY TYPE
Semi-Detached
- BEDROOMS
4
- BATHROOMS
2
- SIZE
Ask agent
- TENUREDescribes how you own a property. There are different types of tenure - freehold, leasehold, and commonhold.Read more about tenure in our glossary page.
Ask agent
Key features
- LARGE 'PERIOD' SEMI DETACHED FAMILY HOME
- FOUR GOOD SIZED BEDROOMS
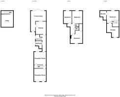
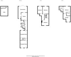
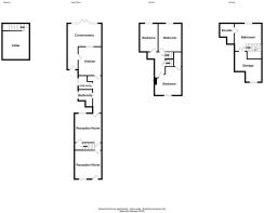
- THREE STOREY ACCOMMODATION
- CELLAR
- ENSUITE SHOWER ROOM
- GARDEN ROOM
- UTILITY ROOM
- LONG ESTABLISHED REAR GARDEN
- SUBSTANTIALLY EXTENDED
- CENTRAL VILLAGE LOCATION
Description
An INCREDIBLY DECEPTIVE 'PERIOD' SEMI DETACHED FAMILY HOME, very well placed in an established and desirable address, a short walk into the village centre. The property has been SUBSTANTIALLY EXTENDED and offers a GENEROUS FOUR BEDROOM FAMILY layout. The property is enhanced further by the LARGE ESTABLISHED REAR GARDEN.
The property offers much character with 'high ceilings', is WELL PRESENTED and is arranged over THREE FLOORS. The accommodation includes GAS CENTRAL HEATING, UPVC DOUBLE GLAZING and comprises: front dining room, lobby, a large lounge, rear hallway, large family dining kitchen, utility room, rear lobby, GARDEN ROOM, bathroom and cellar. The first floor features THREE GOOD SIZED BEDROOMS and to the second floor is a LARGE DOUBLE BEDROOM, which includes a generous ENSUITE SHOWER ROOM and walk in wardrobe.
The rear garden has been recently landscaped to include a paved patio and a block paved pathway leads through the well maintained lawns with side borders towards the rear boundary and garden store. The garden enjoys a private rear aspect.
Broad Street forms an established a desirable location, which is well placed for popular primary and secondary schools. Village shops, restaurants and friendly pubs are all within walking distance.
Tenure: Freehold. Construction: brick with a pitched tiled roof. Services: All mains services are connected. Broadband/Mobile coverage: Visit: checker.ofcom.org.uk/en-gb/broadband-coverage. Council Tax Band B. EPC D. KINGSWINFORD OFFICE
Dining Room - 3.78m x 3.66m (12'5" x 12'0")
Lounge - 3.76m x 3.66m (12'4" x 12'0")
Rear Hall - 4.98m x 0.91m (16'4" x 3'0")
Utility Room - 2.08m x 1.6m (6'10" x 5'3")
Bathroom - 2.06m x 1.09m (6'9" x 3'7") + 1.14m x 0.61m (3'9" x 2'6")
Dining Kitchen - 3.81m x 3.12m (12'6" x 10'3")
Conservatory - 4.32m x 3.28m (14'2" x 10'9")
Lobby - 3.07m x 0.94m (10'1" x 3'1")
Cellar - 3.81m x 3.51m (12'6" x 11'6")
Bedroom 1 - 5m x 3.58m (16'5" x 11'9") max.
Ensuite Shower Room - 2.82m x 2.26m (9'3" x 7'5")
Walk in Wardrobe - 1.63m x 1.96m (5'4" x 6'5") min
Bedroom 2 - 3.78m x 3.66m (12'5" x 12'0")
Bedroom 3 - 3.78m x 3.61m (12'5" x 11'10")
Bedroom 4 - 3.73m x 2.44m (12'3" x 8'0")
By law, we are required to conduct anti-money laundering checks on all potential buyers and sellers, and we take this responsibility very seriously. In line with HMRC guidelines, our trusted partner, Coadjute, will securely manage these checks on our behalf. Once an offer is accepted (subject to contract), Coadjute will send a secure link for you to complete the biometric checks electronically. A non-refundable fee of £40 + VAT per person will apply for these checks, and Coadjute will handle the payment for this service. These anti-money laundering checks must be completed before we can send the memorandum of sale to the solicitors to confirm the sale. Please contact the office if you have any questions in relation to this.
Brochures
Brochure 1- COUNCIL TAXA payment made to your local authority in order to pay for local services like schools, libraries, and refuse collection. The amount you pay depends on the value of the property.Read more about council Tax in our glossary page.
- Band: B
- PARKINGDetails of how and where vehicles can be parked, and any associated costs.Read more about parking in our glossary page.
- On street
- GARDENA property has access to an outdoor space, which could be private or shared.
- Private garden
- ACCESSIBILITYHow a property has been adapted to meet the needs of vulnerable or disabled individuals.Read more about accessibility in our glossary page.
- Ask agent
KINGSWINFORD, Broad Street
Add an important place to see how long it'd take to get there from our property listings.
__mins driving to your place
Get an instant, personalised result:
- Show sellers you’re serious
- Secure viewings faster with agents
- No impact on your credit score


Your mortgage
Notes
Staying secure when looking for property
Ensure you're up to date with our latest advice on how to avoid fraud or scams when looking for property online.
Visit our security centre to find out moreDisclaimer - Property reference S1502335. The information displayed about this property comprises a property advertisement. Rightmove.co.uk makes no warranty as to the accuracy or completeness of the advertisement or any linked or associated information, and Rightmove has no control over the content. This property advertisement does not constitute property particulars. The information is provided and maintained by Taylors Estate Agents, Kingswinford. Please contact the selling agent or developer directly to obtain any information which may be available under the terms of The Energy Performance of Buildings (Certificates and Inspections) (England and Wales) Regulations 2007 or the Home Report if in relation to a residential property in Scotland.
*This is the average speed from the provider with the fastest broadband package available at this postcode. The average speed displayed is based on the download speeds of at least 50% of customers at peak time (8pm to 10pm). Fibre/cable services at the postcode are subject to availability and may differ between properties within a postcode. Speeds can be affected by a range of technical and environmental factors. The speed at the property may be lower than that listed above. You can check the estimated speed and confirm availability to a property prior to purchasing on the broadband provider's website. Providers may increase charges. The information is provided and maintained by Decision Technologies Limited. **This is indicative only and based on a 2-person household with multiple devices and simultaneous usage. Broadband performance is affected by multiple factors including number of occupants and devices, simultaneous usage, router range etc. For more information speak to your broadband provider.
Map data ©OpenStreetMap contributors.





