
Southfield Road, Downley, High Wycombe

- PROPERTY TYPE
Semi-Detached
- BEDROOMS
3
- BATHROOMS
1
- SIZE
1,195 sq ft
111 sq m
- TENUREDescribes how you own a property. There are different types of tenure - freehold, leasehold, and commonhold.Read more about tenure in our glossary page.
Freehold
Key features
- No Onward Chain
- Extended semi-detached family home in the popular village of Downley
- Large double-aspect living/dining room with stunning feature fireplace
- Extended kitchen-breakfast room with modern fitted appliances
- Three good-sized first-floor bedrooms and a modern family bathroom
- Bonus loft room currently used as a 4th bedroom (no formal permissions)
- Generous, private rear garden enclosed by fencing
- Large summer house ideal for home working or hobbies
- Off-street parking and excellent access to the M40
- EPC 62D / Council Tax Band D
Description
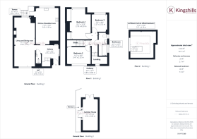
Accommodation
On arrival you are greeted by a spacious entrance hall, which leads to a convenient cloakroom. The large double-aspect living room/dining room is a particular highlight: bright and airy, it features a stunning fireplace that forms a beautiful focal point, ideal for relaxed evenings with family or entertaining guests.
The real heart of the home is the extended kitchen-breakfast room: fitted with modern appliances, the space offers ample room for dining and casual living and enjoys lovely views over the garden.
To the first floor you will find three good-sized bedrooms and a contemporary family bathroom. In addition there is a bonus room located in the loft space, currently used as a 4th bedroom — buyers should note this room does not benefit from the relevant permissions for formal use as a bedroom.
Outside
The rear garden is of a generous size, fully enclosed by fencing to ensure a high degree of privacy — a safe and secure space for children, pets or simply unwinding. Further enhancing the garden is a large summer house, perfect for home working, hobbies or as a private retreat. To the front, there is off-street parking.
Local Area & Schools
Downley enjoys a prime location in the Chilterns, high above the town of High Wycombe in the picturesque Chiltern Hills Area of Outstanding Natural Beauty.
The village combines a leafy rural feel with excellent connectivity — the M40 is easily reachable, making journeys to London and beyond relatively straightforward.
For families, the schooling in the village and surrounding area offers some attractive choices. The local primary school, The Downley School (for ages 4-11) is well-equipped and part of a caring community.
For older children there are further schooling options in the wider High Wycombe and Buckinghamshire area.
Summary
In summary, this is a warm, inviting and flexible family home in a highly desirable village setting. With excellent schooling nearby, generous accommodation and good commuter access via the M40.
Brochures
Brochure of 92 Southfield Road- COUNCIL TAXA payment made to your local authority in order to pay for local services like schools, libraries, and refuse collection. The amount you pay depends on the value of the property.Read more about council Tax in our glossary page.
- Ask agent
- PARKINGDetails of how and where vehicles can be parked, and any associated costs.Read more about parking in our glossary page.
- Yes
- GARDENA property has access to an outdoor space, which could be private or shared.
- Yes
- ACCESSIBILITYHow a property has been adapted to meet the needs of vulnerable or disabled individuals.Read more about accessibility in our glossary page.
- Ask agent
Southfield Road, Downley, High Wycombe
Add an important place to see how long it'd take to get there from our property listings.
__mins driving to your place
Get an instant, personalised result:
- Show sellers you’re serious
- Secure viewings faster with agents
- No impact on your credit score
Your mortgage
Notes
Staying secure when looking for property
Ensure you're up to date with our latest advice on how to avoid fraud or scams when looking for property online.
Visit our security centre to find out moreDisclaimer - Property reference KHW-59712308. The information displayed about this property comprises a property advertisement. Rightmove.co.uk makes no warranty as to the accuracy or completeness of the advertisement or any linked or associated information, and Rightmove has no control over the content. This property advertisement does not constitute property particulars. The information is provided and maintained by Kingshills Estate Agents South Buckinghamshire, Amersham. Please contact the selling agent or developer directly to obtain any information which may be available under the terms of The Energy Performance of Buildings (Certificates and Inspections) (England and Wales) Regulations 2007 or the Home Report if in relation to a residential property in Scotland.
*This is the average speed from the provider with the fastest broadband package available at this postcode. The average speed displayed is based on the download speeds of at least 50% of customers at peak time (8pm to 10pm). Fibre/cable services at the postcode are subject to availability and may differ between properties within a postcode. Speeds can be affected by a range of technical and environmental factors. The speed at the property may be lower than that listed above. You can check the estimated speed and confirm availability to a property prior to purchasing on the broadband provider's website. Providers may increase charges. The information is provided and maintained by Decision Technologies Limited. **This is indicative only and based on a 2-person household with multiple devices and simultaneous usage. Broadband performance is affected by multiple factors including number of occupants and devices, simultaneous usage, router range etc. For more information speak to your broadband provider.
Map data ©OpenStreetMap contributors.





