Land Bound By, Earl St, Bethel St & Taylor St, Heywood, Lancashire OL10 1HT
- PROPERTY TYPE
Land
- SIZE
Ask agent
Key features
- Auction: 17.12.2025 09:00
- Development Site
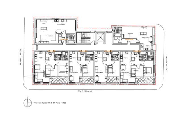
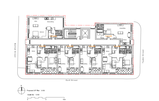
- Planning for Twenty Three Apartments
- Modern Four Storey Building
- Town Centre Location
- Excellent Transport Links
- EPC Rating: Exempt
Description
For sale on 17 December 2025
Our national property auction will be broadcast online with live auctioneers. To bid by proxy, online, or by phone, please submit your registration form no later than 5pm the day before the auction.
The auction will commence at 09:00.
On behalf of Aubrey Lee & Co
A development site with full planning permission for twenty three apartments.
The site is situated to the rear of Market Street in Heywood and bound by Earl Street, Bethel Street and Taylor Street. There is an abundance of local amenities on the door step including, shops, bars, restaurants and excellent transport links to Bury, Rochdale, Middleton and Manchester.
Full planning has been granted for twenty three apartments in a modern, four storey building. Planning Ref - Rochdale Council 23/00727/FUL.
Eight x Two Bedroom Apartments.
Eight x One Bedroom Apartments.
Seven x Studio Apartments.
A great development opportunity in popular and convenient location or as a potential build to rent.
Gross Internal Accommodation of 1162 sqm.
Draft Sales Details These sales details are awaiting vendor approval.
Leasehold Information Any ground rent and service charge review periods will be confirmed in the lease documents within the legal pack.
Note Please be advised that the auctioneers have not personally inspected the property. Prospective buyers are advised to make a viewing enquiry and any other necessary independent enquiries before placing their bid, as this will be binding.
Tenure: Leasehold
EPC Rating: Exempt
Terms:
Auction Details:
The sale of this property will take place on the stated date by way of Auction Event and is being sold under an Unconditional sale type.
Binding contracts of sale will be exchanged at the point of sale.
All sales are subject to SDL Property Auctions Buyers Terms. Properties located in Scotland will be subject to applicable Scottish law.
Auction Deposit and Fees:
The following deposits and non- refundable auctioneers fees apply:
• 5% deposit (subject to a minimum of £5,000)
• Buyers Fee of 4.8% of the purchase price (subject to a minimum of £6,000 inc. VAT).
The Buyers Fee does not contribute to the purchase price, however it will be taken into account when calculating the Stamp Duty Land Tax for the property (known as Land and Buildings Transaction Tax for properties located in Scotland), because it forms part of the chargeable consideration for the property.
There may be additional fees listed in the Special Conditions of Sale, which will be available to view within the Legal Pack. You must read the Legal Pack carefully before bidding.
Additional Information:
For full details about all auction methods and sale types please refer to the Auction Conduct Guide which can be viewed on the SDL Property Auctions home page.
This guide includes details on the auction registration process, your payment obligations and how to view the Legal Pack (and any applicable Home Report for residential Scottish properties).
Guide Price & Reserve Price:
Each property sold is subject to a Reserve Price. The Reserve Price will be within + or - 10% of the Guide Price. The Guide Price is issued solely as a guide so that a buyer can consider whether or not to pursue their interest. A full definition can be found within the Buyers Terms.
Brochures
Bidders RegistrationView Legal PackLand Bound By, Earl St, Bethel St & Taylor St, Heywood, Lancashire OL10 1HT
NEAREST STATIONS
Distances are straight line measurements from the centre of the postcode- Castleton Station1.8 miles
- Rochdale Station3.0 miles
- Bury Station3.1 miles
Notes
Disclaimer - Property reference 202511121606sq_y88m. The information displayed about this property comprises a property advertisement. Rightmove.co.uk makes no warranty as to the accuracy or completeness of the advertisement or any linked or associated information, and Rightmove has no control over the content. This property advertisement does not constitute property particulars. The information is provided and maintained by SDL Property Auctions, Nationwide. Please contact the selling agent or developer directly to obtain any information which may be available under the terms of The Energy Performance of Buildings (Certificates and Inspections) (England and Wales) Regulations 2007 or the Home Report if in relation to a residential property in Scotland.
Auction Fees: The purchase of this property may include associated fees not listed here, as it is to be sold via auction. To find out more about the fees associated with this property please call SDL Property Auctions, Nationwide on 08000 465454.
*Guide Price: An indication of a seller's minimum expectation at auction and given as a Guide Price or a range of Guide Prices. This is not necessarily the figure a property will sell for and is subject to change prior to the auction.
Reserve Price: Each auction property will be subject to a Reserve Price below which the property cannot be sold at auction. Normally the Reserve Price will be set within the range of Guide Prices or no more than 10% above a single Guide Price.
Map data ©OpenStreetMap contributors.




