
Court Road, Orpington

- PROPERTY TYPE
Detached
- BEDROOMS
4
- BATHROOMS
1
- SIZE
Ask agent
- TENUREDescribes how you own a property. There are different types of tenure - freehold, leasehold, and commonhold.Read more about tenure in our glossary page.
Freehold
Key features
- 3/4 Bedroom Extended Detached House
- Well Located for Orpington High Street & Station
- 27'01 Dual Aspect Lounge/Dining Room
- Potential to Extend Further (STTP)
Description
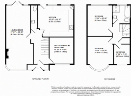
ENTRANCE PORCH Double glazed French doors to front.
ENTRANCE HALL Wood flooring, radiator.
LOUNGE/DINER 27' 01" x 14' 08" (8.25m x 4.47m) Double glazed window to front, double glazed French doors to rear, wood flooring, two radiators.
KITCHEN 15' 05" x 12' 07" (4.7m x 3.84m) Range of matching wall base and units with worktops over, one and half bowl sink and drainer, integrated double oven, integrated gas hob with extractor over, integrated fridge/freezer, integrated microwave, space for washing machine, space for tumble dryer, space for dishwasher, two double glazed windows to rear, double glazed stable door to rear, tiled flooring, radiator.
CLOAKROOM Low level WC, wash hand basin in vanity unit, tiled walls, tiled flooring.
RECEPTION ROOM/BEDROOM 4 11' 05" x 10' 04" (3.48m x 3.15m) Double glazed window to front, wood flooring, radiator.
STAIRS TO FIRST FLOOR LANDING Double glazed window to side, carpet.
BEDROOM 13' 09" x 10' 06" (4.19m x 3.2m) Double glazed window to rear, carpet, radiator, air conditioning unit.
BEDROOM 13' 04" x 10' 08" (4.06m x 3.25m) Double glazed bay window to front, carpet, radiator.
BEDROOM 8' 04" x 7' 05" (2.54m x 2.26m) Double glazed window to front, carpet, radiator.
BATHROOM Low level WC, wash hand basin in vanity unit, bath with shower over and shower attachment, double glazed opaque window to rear, tiled walls, tiled flooring, heated towel rail.
OTHER BENEFITS INCLUDE:
GARDEN 90' 0" (27.43m) Laid to lawn, block paved drive to rear, electric gate to rear.
HOME OFFICE (SUBJECT TO NEGOTIATION)
FRONT Laid to lawn, path to front door.
DOUBLE GARAGE 20' 03" x 16' 01" (6.17m x 4.9m) (accessed from rear) Roller blind door to front, door to side, power and light.
STORAGE (TO REAR OF GARAGE) 15' 09" x 6' 06" (4.8m x 1.98m) Door to side.
DOUBLE GLAZING
CENTRAL HEATING SYSTEM
FREEHOLD
COUNCIL TAX BAND: F
Brochures
A4 Sales Details ...- COUNCIL TAXA payment made to your local authority in order to pay for local services like schools, libraries, and refuse collection. The amount you pay depends on the value of the property.Read more about council Tax in our glossary page.
- Band: F
- PARKINGDetails of how and where vehicles can be parked, and any associated costs.Read more about parking in our glossary page.
- Garage,Off street
- GARDENA property has access to an outdoor space, which could be private or shared.
- Yes
- ACCESSIBILITYHow a property has been adapted to meet the needs of vulnerable or disabled individuals.Read more about accessibility in our glossary page.
- Ask agent
Court Road, Orpington
Add an important place to see how long it'd take to get there from our property listings.
__mins driving to your place
Get an instant, personalised result:
- Show sellers you’re serious
- Secure viewings faster with agents
- No impact on your credit score
Your mortgage
Notes
Staying secure when looking for property
Ensure you're up to date with our latest advice on how to avoid fraud or scams when looking for property online.
Visit our security centre to find out moreDisclaimer - Property reference 100972012435. The information displayed about this property comprises a property advertisement. Rightmove.co.uk makes no warranty as to the accuracy or completeness of the advertisement or any linked or associated information, and Rightmove has no control over the content. This property advertisement does not constitute property particulars. The information is provided and maintained by Thomas Brown Estates, Orpington. Please contact the selling agent or developer directly to obtain any information which may be available under the terms of The Energy Performance of Buildings (Certificates and Inspections) (England and Wales) Regulations 2007 or the Home Report if in relation to a residential property in Scotland.
*This is the average speed from the provider with the fastest broadband package available at this postcode. The average speed displayed is based on the download speeds of at least 50% of customers at peak time (8pm to 10pm). Fibre/cable services at the postcode are subject to availability and may differ between properties within a postcode. Speeds can be affected by a range of technical and environmental factors. The speed at the property may be lower than that listed above. You can check the estimated speed and confirm availability to a property prior to purchasing on the broadband provider's website. Providers may increase charges. The information is provided and maintained by Decision Technologies Limited. **This is indicative only and based on a 2-person household with multiple devices and simultaneous usage. Broadband performance is affected by multiple factors including number of occupants and devices, simultaneous usage, router range etc. For more information speak to your broadband provider.
Map data ©OpenStreetMap contributors.








