
Rookery Road/ Bayliss Avenue, Lanesfield
- PROPERTY TYPE
Land
- SIZE
Ask agent
Key features
- POTENTIAL DEVELOPMENT LAND
- APPROX 1.31 ACRES (0.53 HECTARES)
- INCLUDES THREE BEDROOM DETACHED FAMILY HOME WITH GARAGE, DRIVEWAY, FRONT & REAR GARDENS
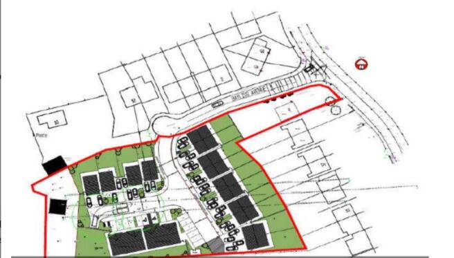
- PREVIOUSLY APPROVED PLANNING FOR 22 DWELLINGS (NOW LAPSED)
- MODERN METHOD OF AUCTION
Description
Prime Residential Development Opportunity – Rookery Road, Wolverhampton
An exceptional opportunity to acquire a freehold development site extending to approximately 1.31 acres (0.53 hectares), located in a popular and well-connected area of Wolverhampton.
The site had planning permission (NO LAPSED) for the construction of 22 dwellings, in addition to an existing THREE BEDROOM DETACHED house (Rookery Road).
Location
Situated off Rookery Road and Bayliss Avenue.
Excellent access to Birmingham New Road (A4123).
Approx. 2.5 miles from Wolverhampton City Centre and 1.5 miles from Bilston Town Centre.
Well-served by public transport:Mainline stations: Coseley & Wolverhampton.
Metro stops: Bilston Central, Loxdale, Bradley Lane (within 2 miles).
Motorway access via M6 J10 and M5 J2 (approx. 4 miles).
Description
Comprises existing dwelling and curtilage plus extensive paddocks to the rear.
Broadly rectangular site offering a well-balanced layout for residential development.
Previously Approved Planning Permission (NOW LAPSED)
Previous permissions granted by Wolverhampton City Council:Ref: 17/01495/FUL & 19/00106/FUL.
Approved scheme included:10 semi-detached houses
4 detached houses
8 apartments
Includes access improvements and landscaping works.
Full documentation available on request.
Tenure
Freehold with vacant possession upon completion.
SEDGLEY BRANCH
Auctioneer Comments This property is for sale by the Modern Method of Auction. Should you view, offer or bid on the property, your information will be shared with the Auctioneer, iamsold Limited This method of auction requires both parties to complete the transaction within 56 days of the draft contract for sale being received by the buyers solicitor (for standard Grade 1 properties). This additional time allows buyers to proceed with mortgage finance (subject to lending criteria, affordability and survey). The buyer is required to sign a reservation agreement and make payment of a non-refundable Reservation Fee. This being 4.8% of the purchase price including VAT, subject to a minimum of £6,000.00 including VAT. The Reservation Fee is paid in addition to purchase price and will be considered as part of the chargeable consideration for the property in the calculation for stamp duty liability. Buyers will be required to go through an identification verification process with iamsold and provide proof of how the purchase would be funded. This property has a Buyer Information Pack which is a collection of documents in relation to the property. The documents may not tell you everything you need to know about the property, so you are required to complete your own due diligence before bidding. A sample copy of the Reservation Agreement and terms and conditions are also contained within this pack. The buyer will also make payment of £300 including VAT towards the preparation cost of the pack, where it has been provided by iamsold. The property is subject to an undisclosed Reserve Price with both the Reserve Price and Starting Bid being subject to change. Referral Arrangements The Partner Agent and Auctioneer may recommend the services of third parties to you. Whilst these services are recommended as it is believed they will be of benefit; you are under no obligation to use any of these services and you should always consider your options before services are accepted. Where services are accepted the Auctioneer or Partner Agent may receive payment for the recommendation and you will be informed of any referral arrangement and payment prior to any services being taken by you.
Brochures
Brochure 1Energy Performance Certificates
EPC 1Rookery Road/ Bayliss Avenue, Lanesfield
NEAREST STATIONS
Distances are straight line measurements from the centre of the postcode- Coseley Station0.8 miles
- Priestfield Tram Stop1.3 miles
- The Crescent Tram Stop1.3 miles


Notes
Disclaimer - Property reference S1504256. The information displayed about this property comprises a property advertisement. Rightmove.co.uk makes no warranty as to the accuracy or completeness of the advertisement or any linked or associated information, and Rightmove has no control over the content. This property advertisement does not constitute property particulars. The information is provided and maintained by Taylors Estate Agents, Sedgley. Please contact the selling agent or developer directly to obtain any information which may be available under the terms of The Energy Performance of Buildings (Certificates and Inspections) (England and Wales) Regulations 2007 or the Home Report if in relation to a residential property in Scotland.
Auction Fees: The purchase of this property may include associated fees not listed here, as it is to be sold via auction. To find out more about the fees associated with this property please call Taylors Estate Agents, Sedgley on 01902 953165.
*Guide Price: An indication of a seller's minimum expectation at auction and given as a Guide Price or a range of Guide Prices. This is not necessarily the figure a property will sell for and is subject to change prior to the auction.
Reserve Price: Each auction property will be subject to a Reserve Price below which the property cannot be sold at auction. Normally the Reserve Price will be set within the range of Guide Prices or no more than 10% above a single Guide Price.
Map data ©OpenStreetMap contributors.





