
Cropwell Bishop Road, Cropwell Butler, NG12

- PROPERTY TYPE
Detached
- BEDROOMS
5
- BATHROOMS
6
- SIZE
Ask agent
- TENUREDescribes how you own a property. There are different types of tenure - freehold, leasehold, and commonhold.Read more about tenure in our glossary page.
Freehold
Key features
- A Fabulous Prime Village Edge Country Equestrian Property- Exquisite Interior
- Stunning Formal Gardens & Paddocks – in all approximately 8 acres
- Stunning Shortland Cabinet Quality Country Kitchen & Utility Room
- Bespoke Traditional Library - Study, Main Sitting Room & Dining Room
- Remarkable Billiard Room/Party Room of a Stunning Quality
- Leisure Room/Indoor Swimming Pool Complex & Sauna/Wet Room, Home Gym
- Luxurious Main Bedroom Suite, Private Guest Bedroom/ Teenage Suite with Cinema Room & Study Area
- Three Further First Floor Bedrooms, In All Three Bathrooms & Shower Room
- Equestrian Facilities: Courtyard Stabling, Barns and further Stabling Complex
- Triple garage block
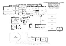
Description
STRATFORD HOUSE
From the moment you arrive through the secure electric gates and onto the sweeping driveway, Stratford House impresses with its sense of privacy, scale and refinement.
LIVING ACCOMMODATION
The home has been thoughtfully designed to offer the perfect balance between elegant entertaining and relaxed family living, combining opulent interior design with warm, natural materials that create an atmosphere of calm sophistication.
At the heart of the property lies a magnificent country kitchen, handcrafted by Shortland to exacting standards. Rich pippy oak cabinetry, granite work surfaces and an array of high-end integrated appliances — including Sub Zero refrigeration, Miele cooking and coffee systems, and a classic four-oven Aga — make this an inspiring space for both everyday dining and grand gatherings. The large central island and antique stone flooring, complete with underfloor heating, enhance the sense of traditional quality and modern comfort.
Flowing seamlessly from the kitchen are a series of impressive reception rooms designed for both relaxation and entertaining. The dining room and sitting room each feature striking bay windows and French doors opening onto the formal gardens, flooding the interiors with light and countryside views. Oak flooring, painted ceiling timbers and a magnificent stone fireplace add warmth and charm, while the adjoining pool and leisure suite offers a more contemporary setting for recreation and wellness.
The indoor heated swimming pool, connects to the house via a spacious leisure, gym and relaxation area. Accompanied by a Nordic-style sauna, luxury changing facilities and a wet room, it creates a private retreat designed for enjoyment all year round.
A highlight of Stratford House is the billiard and party room — an extraordinary space with a vaulted, minstrels’ gallery ceiling and oak panelling, centred around An impressive stone fireplace. A bespoke cocktail bar with granite surfaces, Sub Zero appliances and integrated lighting ensures effortless entertaining in this unique and atmospheric room. Discreetly adjoining is a beautifully crafted library and study, with hand-built oak joinery and a secret door leading directly into the games room, adding a touch of intrigue to the home’s refined elegance.
BEDROOM ACCOMMODATION
The master suite, situated on the ground floor, is a sanctuary of indulgence. Featuring stylish built in and French doors leading to the cloistered courtyard, it offers both comfort and serenity. A sumptuous walk-in dressing room provides extensive fitted storage, while the contemporary en suite bathroom showcases high quality fixtures and fittings.
The upper level offers equally impressive accommodation. A self-contained guest or teenager suite provides privacy and flexibility, complete with a study/dressing area and a private balcony overlooking the front courtyard. Three further bedrooms, each beautifully appointed, are served by a contemporary bathroom with American walnut detailing.
OUTSIDE
Beyond the main house, the gardens and grounds extend to approximately 8 acres, offering an exceptional outdoor lifestyle. The formal south-facing gardens are a picture of English elegance, with manicured lawns, an ornamental pond with footbridge, and glorious views towards Belvoir Castle and the Vale of Belvoir.
Located within the grounds is a detached Summer House / Garden Room, with en-suite facilities which benefits from delightful views over a mature pond.
For those with equestrian or country pursuits in mind, the property includes a superb stabling and Dutch barn complex, a triple garage block with ancillary storage, and a gardener’s kitchen with shower facilities. The extensive paddocks provide excellent grazing, complemented by a tree-lined orchard walk, a productive kitchen garden with Hartley Botanic greenhouse, and a woodland entertainment area complete with barbecue house and fire pit — perfect for alfresco dining.
The agriculture barns/buildings could offer potential for conversion, subject to necessary planning consents.
LOCATION
Perfectly positioned between Nottingham and Leicester, the village of Cropwell Butler enjoys the charm of a protected Conservation Area while remaining within easy reach of major transport links, schooling and local amenities. Grantham station provides direct rail services to London Kings Cross in approximately 75 minutes, and the M1 and East Midlands Airport are both easily accessible.
OVERALL
In every sense, Stratford House is a residence of rare distinction — a property that effortlessly combines grandeur with warmth, and country living with contemporary luxury. Whether as a family retreat, an entertainer’s paradise or an equestrian haven, it represents a truly special opportunity to own one of the area’s finest homes.
SERVICES
Mains electricity, gas and water are understood to be connected. Gas fired central heating circulating to radiators. Bio Disc septic tank drainage. High grade alarm system and CCTV
TENURE
Freehold
Brochures
Brochure 1- COUNCIL TAXA payment made to your local authority in order to pay for local services like schools, libraries, and refuse collection. The amount you pay depends on the value of the property.Read more about council Tax in our glossary page.
- Band: G
- PARKINGDetails of how and where vehicles can be parked, and any associated costs.Read more about parking in our glossary page.
- Yes
- GARDENA property has access to an outdoor space, which could be private or shared.
- Yes
- ACCESSIBILITYHow a property has been adapted to meet the needs of vulnerable or disabled individuals.Read more about accessibility in our glossary page.
- Ask agent
Cropwell Bishop Road, Cropwell Butler, NG12
Add an important place to see how long it'd take to get there from our property listings.
__mins driving to your place
Affordability
Get an instant, personalised result:
- Show sellers you’re serious
- Secure viewings faster with agents
- No impact on your credit score
Notes
Staying secure when looking for property
Ensure you're up to date with our latest advice on how to avoid fraud or scams when looking for property online.
Visit our security centre to find out moreDisclaimer - Property reference RX681424. The information displayed about this property comprises a property advertisement. Rightmove.co.uk makes no warranty as to the accuracy or completeness of the advertisement or any linked or associated information, and Rightmove has no control over the content. This property advertisement does not constitute property particulars. The information is provided and maintained by Fine & Country, Nottinghamshire. Please contact the selling agent or developer directly to obtain any information which may be available under the terms of The Energy Performance of Buildings (Certificates and Inspections) (England and Wales) Regulations 2007 or the Home Report if in relation to a residential property in Scotland.
*This is the average speed from the provider with the fastest broadband package available at this postcode. The average speed displayed is based on the download speeds of at least 50% of customers at peak time (8pm to 10pm). Fibre/cable services at the postcode are subject to availability and may differ between properties within a postcode. Speeds can be affected by a range of technical and environmental factors. The speed at the property may be lower than that listed above. You can check the estimated speed and confirm availability to a property prior to purchasing on the broadband provider's website. Providers may increase charges. The information is provided and maintained by Decision Technologies Limited. **This is indicative only and based on a 2-person household with multiple devices and simultaneous usage. Broadband performance is affected by multiple factors including number of occupants and devices, simultaneous usage, router range etc. For more information speak to your broadband provider.
Map data ©OpenStreetMap contributors.





