3 bedroom detached bungalow for sale
Barley Close, Eardisley

- PROPERTY TYPE
Detached Bungalow
- BEDROOMS
3
- BATHROOMS
3
- SIZE
Ask agent
- TENUREDescribes how you own a property. There are different types of tenure - freehold, leasehold, and commonhold.Read more about tenure in our glossary page.
Freehold
Key features
- Three plots available!
- Exclusive village development
- Detached dormer bungalows
- Garage, parking & garden.
- 3/4 bedrooms
- Scope to create a bespoke finish throughout!
Description
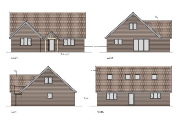
A choice of three beautifully designed detached dormer bungalows, offering versatile 3/4 bedroom accommodation with light, spacious interiors and quality finishes throughout.
Perfect for families or those looking to downsize without compromise, these stylish new homes provide flexible living space, private gardens, and driveway parking.
Prices from £495,000 – early viewing highly recommended.
Property Description - The three plots present an exceptional opportunity for purchasers to create a truly bespoke and individual finish, tailored to their own style and requirements. Prices start from £495,000.
The property is constructed of a highly insulated timber frame by respected local developers (with a long-established proven track record) and is highly energy efficient, it has features including air-source heating (underfloor at ground floor, radiators at first floor level) together with a mechanical ventilation heat recovery system (MHRS) and Velfac composite triple glazed windows.
This exceptional new build home offers the rare opportunity to create a bespoke and individual finish, tailored to your own taste and lifestyle.
Entering through the elegant oak-framed porch with solid oak front door, you are welcomed into a spacious and inviting reception hall, providing access to all ground floor rooms and a feature staircase leading to the first floor.
The heart of the home is the impressive open-plan kitchen, dining, and family room – a perfect space for both everyday living and entertaining. Completing the ground floor is a practical utility room with an adjoining plant room, a bathroom/wet room, and two generously sized rooms that can be used flexibly as bedrooms, a snug, or a home office.
Upstairs, the property offers two large bedrooms, each benefiting from fitted wardrobes and luxury en-suite facilities.
Externally, the home features a good-sized, low-maintenance garden, ample off-road parking, and a single garage.
This beautifully designed property combines modern living with the opportunity to personalise the final finishes, creating a truly unique home.
These superb detached properties occupy an elevated location on a small development ( just 5 properties) adjoining open farmland, on the outskirts of the highly favoured village of Eardisley it is well placed for access to the market towns of Kington (5.5 miles), Leominster (15 miles) , Hay-on-Wye (11 miles) and the Cathedral City of Hereford (15 miles).The property is within walking distance of the village centre and amenities which include a public house, shop, church, primary school, croquet and tennis club. A wider range of amenities are available in Kington where there is also a secondary school, doctors surgery, various shops, a filling station and an 18 hole golf course.
Reservation Fee - £1,500 - refundable on completion of purchase.
Directions - From Hereford proceed towards Brecon on the A438 and through Letton, then continue on the A4111 into Eardisley. By the Tram Inn turn left as signposted Woodseaves and the property is located on the right hand side after about 200 yards. What3words - birds.flexibly.racetrack
Agents Note - The property benefits from a 6 year architect warranty.
Money Laundering - Prospective purchasers will be asked to produce identification, address verification and proof of funds at the time of making an offer.
Opening Hours - Monday - Friday9.00 am - 5.30 pm
Saturday 9.00 am - 1.00 pm
Outgoings - Council tax band to be assessed. Water - Metered supply.
Property Services - Mains water, electricity and drainage are connected. Air source heating.
Tenure & Possession - Freehold - vacant possession on completion.
Viewing Arrangements - Strictly by appointment through the Agent .
Brochures
Barley Close, Eardisley- COUNCIL TAXA payment made to your local authority in order to pay for local services like schools, libraries, and refuse collection. The amount you pay depends on the value of the property.Read more about council Tax in our glossary page.
- Band: TBC
- PARKINGDetails of how and where vehicles can be parked, and any associated costs.Read more about parking in our glossary page.
- Yes
- GARDENA property has access to an outdoor space, which could be private or shared.
- Yes
- ACCESSIBILITYHow a property has been adapted to meet the needs of vulnerable or disabled individuals.Read more about accessibility in our glossary page.
- Ask agent
Energy performance certificate - ask agent
Barley Close, Eardisley
Add an important place to see how long it'd take to get there from our property listings.
__mins driving to your place
Get an instant, personalised result:
- Show sellers you’re serious
- Secure viewings faster with agents
- No impact on your credit score
Your mortgage
Notes
Staying secure when looking for property
Ensure you're up to date with our latest advice on how to avoid fraud or scams when looking for property online.
Visit our security centre to find out moreDisclaimer - Property reference 34311553. The information displayed about this property comprises a property advertisement. Rightmove.co.uk makes no warranty as to the accuracy or completeness of the advertisement or any linked or associated information, and Rightmove has no control over the content. This property advertisement does not constitute property particulars. The information is provided and maintained by Flint & Cook, Hereford. Please contact the selling agent or developer directly to obtain any information which may be available under the terms of The Energy Performance of Buildings (Certificates and Inspections) (England and Wales) Regulations 2007 or the Home Report if in relation to a residential property in Scotland.
*This is the average speed from the provider with the fastest broadband package available at this postcode. The average speed displayed is based on the download speeds of at least 50% of customers at peak time (8pm to 10pm). Fibre/cable services at the postcode are subject to availability and may differ between properties within a postcode. Speeds can be affected by a range of technical and environmental factors. The speed at the property may be lower than that listed above. You can check the estimated speed and confirm availability to a property prior to purchasing on the broadband provider's website. Providers may increase charges. The information is provided and maintained by Decision Technologies Limited. **This is indicative only and based on a 2-person household with multiple devices and simultaneous usage. Broadband performance is affected by multiple factors including number of occupants and devices, simultaneous usage, router range etc. For more information speak to your broadband provider.
Map data ©OpenStreetMap contributors.





