Paphos, Tombs Of The Kings, Cyprus
- PROPERTY TYPE
Detached Villa
- BEDROOMS
3
- BATHROOMS
3
- SIZE
2,217 sq ft
206 sq m
Key features
- En suite bathrooms
- Open Kitchen
- Wi-Fi
- Swimming Pool - Private
- Beach: 5 min Drive
- Town: 5 min drive
- Plus VAT
- Parking - 1 Uncovered
Description
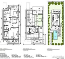
Welcome to this beautifully designed 3-bedroom villa with 3 bathrooms and a guest toilet, located in the prestigious and highly sought-after area of Tombs of the Kings, Paphos. Offering the perfect balance of luxury, comfort, and convenience, this spacious villa is ideal as a permanent residence, holiday retreat, or high-yield investment property.
The villa features a bright open-plan living and dining area with large patio doors that lead directly to a private swimming pool and sun terrace ideal for relaxing or entertaining. The modern kitchen is fully equipped with quality appliances, ample storage, and stylish finishes, making it a delight for everyday living or hosting guests.
Upstairs, you’ll find four generously sized bedrooms, each with built-in wardrobes and tasteful décor. Two of the bedrooms include en-suite bathrooms, while the remaining two share a family bathroom. A guest toilet is conveniently located on the ground floor.
Outdoors, the property boasts a private pool surrounded by a spacious patio area perfect for sunbathing or alfresco dining. The villa is securely gated and offers private parking.
Situated just a short walk from the beach, shops, restaurants, and the historic Tombs of the Kings archaeological site, this villa enjoys a prime location with easy access to all amenities and Paphos town center.
Don’t miss this exceptional opportunity to own a luxury villa in one of Paphos’s most desirable neighborhoods offering lifestyle, location, and lasting value.
Paphos, Tombs Of The Kings, Cyprus
NEAREST AIRPORTS
Distances are straight line measurements- Pafos(International)6.0 miles
- Ercan(Local)66.5 miles
- Larnaka(International)69.6 miles
Advice on buying Cypriot property
Learn everything you need to know to successfully find and buy a property in Cyprus.
Notes
This is a property advertisement provided and maintained by Chapter One Properties, Paphos (reference C5643) and does not constitute property particulars. Whilst we require advertisers to act with best practice and provide accurate information, we can only publish advertisements in good faith and have not verified any claims or statements or inspected any of the properties, locations or opportunities promoted. Rightmove does not own or control and is not responsible for the properties, opportunities, website content, products or services provided or promoted by third parties and makes no warranties or representations as to the accuracy, completeness, legality, performance or suitability of any of the foregoing. We therefore accept no liability arising from any reliance made by any reader or person to whom this information is made available to. You must perform your own research and seek independent professional advice before making any decision to purchase or invest in overseas property.





