
Land for sale
The Turnpike, Carleton Rode, Norwich, Norfolk, NR16
- PROPERTY TYPE
Land
- SIZE
15,682 sq ft
1,457 sq m
Key features
- Two Building Plots
- Planning Permission Granted Feb 2025
- 0.32 Acre Plot
- Rare Opportunity
Description
Description
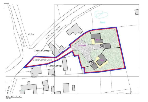
This rarely available development site for two new dwellings in Carleton Rode. The permission was granted in February 2025 for a detached bungalow & detached house. The site sits in 0.32 acres and is surrounded by beautiful field views of the Norfolk countryside.
Bungalow 80m2 + 30m2 garage & House 200m2 with 30m2 garage estimated sizes.
Planning ref number is South Norfolk/Broadland 2023/0151 for more information on conditions attached to the permission.
Viewing strictly via appointment only.
Location
Carleton Rode is a highly desirable rural village in South Norfolk, just 12 miles from Norwich and close to Attleborough and the A11 corridor. This picturesque setting offers the perfect balance of countryside living and excellent connectivity, making it ideal for new residential development.
Village Features:
Historic All Saints Church and traditional Norfolk architecture
Strong community with a primary school and village hall
Surrounded by scenic walks, cycling routes, and open countryside
Nearby Amenities & Schools:
Carleton Rode Primary School within the village
Secondary education at Wymondham College and Attleborough Academy
Local shops, pubs, and services in Attleborough and Wymondham
Excellent transport links to Norwich, Cambridge, and London via A11 and mainline rail
Acreage: 0.36 Acres
Directions
Directions
By Car:
Head north on The Street toward Norwich Road (B1113).
Continue on B1113 through Tacolneston and Mulbarton.
At the A140 junction, turn right toward Norwich.
Follow signs for Norwich City Centre (approx. 12 miles, 25 minutes by car).
By Public Transport:
Bus:
Regular services operate from nearby villages (e.g., Tacolneston or Attleborough) to Norwich via Konectbus and First Bus routes.
Typical journey time: 35–45 minutes.
Train:
From Attleborough Station (approx. 10 minutes’ drive from Carleton Rode), direct trains run to Norwich in about 15 minutes.
Attleborough also offers connections to Cambridge and London via the Greater Anglia network.
Brochures
Web DetailsThe Turnpike, Carleton Rode, Norwich, Norfolk, NR16
NEAREST STATIONS
Distances are straight line measurements from the centre of the postcode- Spooner Row Station4.0 miles
- Attleborough Station4.8 miles
Notes
Disclaimer - Property reference CHD250178. The information displayed about this property comprises a property advertisement. Rightmove.co.uk makes no warranty as to the accuracy or completeness of the advertisement or any linked or associated information, and Rightmove has no control over the content. This property advertisement does not constitute property particulars. The information is provided and maintained by Savills New Homes, Norwich. Please contact the selling agent or developer directly to obtain any information which may be available under the terms of The Energy Performance of Buildings (Certificates and Inspections) (England and Wales) Regulations 2007 or the Home Report if in relation to a residential property in Scotland.
Map data ©OpenStreetMap contributors.





