
Deans Lane, Edgware, HA8

- PROPERTY TYPE
Semi-Detached
- BEDROOMS
4
- BATHROOMS
2
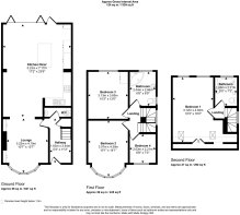
- SIZE
1,339 sq ft
124 sq m
- TENUREDescribes how you own a property. There are different types of tenure - freehold, leasehold, and commonhold.Read more about tenure in our glossary page.
Freehold
Key features
- Freehold
- Beautifully extended four bedroom family home
- Open-plan kitchen, dining and living space with bi-folding doors to the garden.
- Modern fitted kitchen with large island and integrated appliances.
- Primary bedroom with its own family bathroom on the top floor.
- Two double bedrooms and one single bedroom on the first floor.
- Landscaped rear garden with patio, lawn and side access.
- Off-street parking to the front of the property.
- Approximately 0.8 miles from Edgware Station (Northern Line).
- Close to local schools, shops and green spaces.
Description
Joseph Scott presents -
This beautifully extended four bedroom family home on Deans Lane offers spacious, modern living across three well planned floors. Only 0.8 miles from Edgware Station (Northern Line).
The ground floor features a welcoming entrance hallway leading to a generous open plan reception, dining and kitchen space. The rear extension has been thoughtfully designed with skylights and bi folding doors opening onto a private garden, creating a bright and sociable area ideal for both entertaining and family life. The kitchen is finished to a high standard with integrated appliances, ample storage and a large island with breakfast seating. A convenient WC completes this floor.
Upstairs, the first floor comprises two double bedrooms and one single bedroom, served by a stylish family bathroom. The top floor provides a well proportioned primary bedroom suite with its own family bathroom, offering privacy and a calm retreat.
Externally, the property includes a landscaped rear garden with a patio and lawn area, side access, and off street parking to the front.
Situated approximately 0.8 miles from Mill Hill Broadway Station (Thameslink) and only 0.8 miles from Edgware Station (Northern Line), the property benefits from excellent transport links into Central London and easy access to local amenities, parks and sought after schools including Deansbrook Junior, Broadfields Primary and is roughly a 10 minute walk to Mathilda Marks-Kennedy School.
Fantastic opportunity for first time buyers or investment buyers looking for a well maintained family home.
Tenure: Freehold
Council Tax: F
EPC Rating: D
- COUNCIL TAXA payment made to your local authority in order to pay for local services like schools, libraries, and refuse collection. The amount you pay depends on the value of the property.Read more about council Tax in our glossary page.
- Band: F
- PARKINGDetails of how and where vehicles can be parked, and any associated costs.Read more about parking in our glossary page.
- Yes
- GARDENA property has access to an outdoor space, which could be private or shared.
- Yes
- ACCESSIBILITYHow a property has been adapted to meet the needs of vulnerable or disabled individuals.Read more about accessibility in our glossary page.
- Ask agent
Energy performance certificate - ask agent
Deans Lane, Edgware, HA8
Add an important place to see how long it'd take to get there from our property listings.
__mins driving to your place
Get an instant, personalised result:
- Show sellers you’re serious
- Secure viewings faster with agents
- No impact on your credit score
Your mortgage
Notes
Staying secure when looking for property
Ensure you're up to date with our latest advice on how to avoid fraud or scams when looking for property online.
Visit our security centre to find out moreDisclaimer - Property reference 561e8f05-9ef9-4353-ae26-e9685e743c3e. The information displayed about this property comprises a property advertisement. Rightmove.co.uk makes no warranty as to the accuracy or completeness of the advertisement or any linked or associated information, and Rightmove has no control over the content. This property advertisement does not constitute property particulars. The information is provided and maintained by Joseph Scott, Edgware. Please contact the selling agent or developer directly to obtain any information which may be available under the terms of The Energy Performance of Buildings (Certificates and Inspections) (England and Wales) Regulations 2007 or the Home Report if in relation to a residential property in Scotland.
*This is the average speed from the provider with the fastest broadband package available at this postcode. The average speed displayed is based on the download speeds of at least 50% of customers at peak time (8pm to 10pm). Fibre/cable services at the postcode are subject to availability and may differ between properties within a postcode. Speeds can be affected by a range of technical and environmental factors. The speed at the property may be lower than that listed above. You can check the estimated speed and confirm availability to a property prior to purchasing on the broadband provider's website. Providers may increase charges. The information is provided and maintained by Decision Technologies Limited. **This is indicative only and based on a 2-person household with multiple devices and simultaneous usage. Broadband performance is affected by multiple factors including number of occupants and devices, simultaneous usage, router range etc. For more information speak to your broadband provider.
Map data ©OpenStreetMap contributors.








