
Light industrial facility for rent
Harrison Road, Belgrave, Leicester
Letting details
- Let available date:
- Now
- Deposit:
- £14,250A deposit provides security for a landlord against damage, or unpaid rent by a tenant.Read more about deposit in our glossary page.
- Furnish type:
- Unfurnished
- PROPERTY TYPE
Light Industrial
- SIZE
4,000 sq ft
372 sq m
Key features
- Commercial Unit
- Warehouse
- Prominent Belgrave Area
- Gated Entrance for Parking
- Entrance for Deliveries
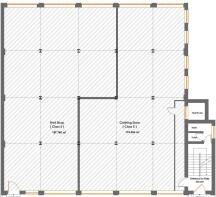
- Roughly 4000 to 4500 sqft
- Ground Floor Premises
Description
Harrison Road, Belgrave, Leicester, LE4
(Guide: approx. £57,000 per annum) - Price on Application
Approx. 4,000 – 4,500 sqft
Seths Estate Agents are pleased to present this rare opportunity to acquire a substantial Industrial/Commercial Unit located in the heart of Leicester’s established commercial district on Harrison Road, Belgrave.
This versatile property is suitable for a range of Class E uses such as printing, storage, distribution, retail trade counters, office-based businesses and more (subject to necessary consents).
PROPERTY FEATURES
- Substantial floor area: approx. 4,000 – 4,500 sq ft
- Flexible layout options (previously used as Printing Business, Retail Shops & Offices)
- Multiple access points including front and rear doors
- Open-plan workspace with options for partitioning
- Office rooms, service areas, and ancillary facilities included
- Electric & Water supply available
- Access for Deliveries to the side with a Gated Front
Suitable for various Class E Commercial Uses.
LOCATION
Situated on the busy and well-connected Harrison Road, the premises offer excellent visibility and access. The area is known for a strong mix of industrial, commercial and retail operators, making it ideal for businesses seeking a prominent position in Leicester.
ADDITIONAL INFORMATION
Business Rates & Council Rates apply
Terms negotiable
Available immediately
Viewings strictly through Seths Estate Agents.
*Any incoming party would be liable to pay the Landlords Legal Costs as well as their own.
*Any incoming party would be subject to a non-refundable Agency Admin Fee of £400.00 + V.A.T (£480.00 total) towards the costs of checks and references.
Brochures
Harrison Road, Belgrave, LeicesterEnergy Performance Certificates
EE RatingHarrison Road, Belgrave, Leicester
NEAREST STATIONS
Distances are straight line measurements from the centre of the postcode- Leicester Station1.5 miles
- Syston Station3.2 miles
- South Wigston Station4.9 miles
Notes
Disclaimer - Property reference 34316965. The information displayed about this property comprises a property advertisement. Rightmove.co.uk makes no warranty as to the accuracy or completeness of the advertisement or any linked or associated information, and Rightmove has no control over the content. This property advertisement does not constitute property particulars. The information is provided and maintained by Seths Estate & Letting Agents, Leicester. Please contact the selling agent or developer directly to obtain any information which may be available under the terms of The Energy Performance of Buildings (Certificates and Inspections) (England and Wales) Regulations 2007 or the Home Report if in relation to a residential property in Scotland.
Map data ©OpenStreetMap contributors.







