
Coleman Street, Brighton, BN2

Letting details
- Let available date:
- 01/09/2026
- Deposit:
- £3,923A deposit provides security for a landlord against damage, or unpaid rent by a tenant.Read more about deposit in our glossary page.
- Min. Tenancy:
- Ask agent How long the landlord offers to let the property for.Read more about tenancy length in our glossary page.
- Furnish type:
- Furnished
- Council Tax:
- Ask agent
- PROPERTY TYPE
Terraced
- BEDROOMS
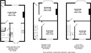
4
- BATHROOMS
1
- SIZE
Ask agent
Key features
- Four double bedrooms,Student property ,Open plan kitchen/living room ,Popular Hanover area ,Good bus connections to universities ,Fully Furnished ,Modern shower room,Gas central heating (truncated)
Description
The house will have a redecoration and full repaint throughout, before the start of the September 2026 tenancy.
The rent includes:
*Gas
*Electricity
*Water
*Broadband
*TV Licence
*Cleaner every 2 weeks **
*gardener three times a year
** The cleaner will only clean the common ways, halls stairs landlings, bathroom and kitchen.
This large four double bedroom student house is set in the heart of the popular Hanover area of Brighton and is located near the Level and Lewes Road. This is a desired area for students with all its amenities and transport connections.
The property is finished to a high standard throughout, with a large open plan living area set in the lower ground floor. The kitchen is fully equipped and leads out to spacious patio area.
All four bedrooms are good-sized doubles and in each bedroom, is a wardrobe, desk and chair, chest of draws and double bed provided. The property is fully furnished and has gas central heating. There is the option of permit parking or pay and display for residence and visitors.
All of our properties are strictly no smoking.
All tenants will be required to provide a guarantor who will need to be a UK resident, have clean credit history and have an income of 3 x times the individual tenant's rent share. Guarantors’ income could be in the form of salary, dividends, savings or pensions. Self-employed guarantors MUST have a minimum of one year’s worth of accounts and can be verified using an accountant’s reference or by providing their self-assessment form from HMRC.
All tenants looking to reserve this property will need to be able to provide suitable evidence of their right to rent in the UK, in person at the Q Estate Agents office, or by share-code (non-British citizens).
- COUNCIL TAXA payment made to your local authority in order to pay for local services like schools, libraries, and refuse collection. The amount you pay depends on the value of the property.Read more about council Tax in our glossary page.
- Band: C
- PARKINGDetails of how and where vehicles can be parked, and any associated costs.Read more about parking in our glossary page.
- Yes
- GARDENA property has access to an outdoor space, which could be private or shared.
- Yes
- ACCESSIBILITYHow a property has been adapted to meet the needs of vulnerable or disabled individuals.Read more about accessibility in our glossary page.
- Ask agent
Coleman Street, Brighton, BN2
Add an important place to see how long it'd take to get there from our property listings.
__mins driving to your place
Explore area BETA
Brighton
Get to know this area with AI-generated guides about local green spaces, transport links, restaurants and more.
Notes
Staying secure when looking for property
Ensure you're up to date with our latest advice on how to avoid fraud or scams when looking for property online.
Visit our security centre to find out moreDisclaimer - Property reference BRI190114_L. The information displayed about this property comprises a property advertisement. Rightmove.co.uk makes no warranty as to the accuracy or completeness of the advertisement or any linked or associated information, and Rightmove has no control over the content. This property advertisement does not constitute property particulars. The information is provided and maintained by Q Estate Agents, Brighton. Please contact the selling agent or developer directly to obtain any information which may be available under the terms of The Energy Performance of Buildings (Certificates and Inspections) (England and Wales) Regulations 2007 or the Home Report if in relation to a residential property in Scotland.
*This is the average speed from the provider with the fastest broadband package available at this postcode. The average speed displayed is based on the download speeds of at least 50% of customers at peak time (8pm to 10pm). Fibre/cable services at the postcode are subject to availability and may differ between properties within a postcode. Speeds can be affected by a range of technical and environmental factors. The speed at the property may be lower than that listed above. You can check the estimated speed and confirm availability to a property prior to purchasing on the broadband provider's website. Providers may increase charges. The information is provided and maintained by Decision Technologies Limited. **This is indicative only and based on a 2-person household with multiple devices and simultaneous usage. Broadband performance is affected by multiple factors including number of occupants and devices, simultaneous usage, router range etc. For more information speak to your broadband provider.
Map data ©OpenStreetMap contributors.





