
Chelmsford Road, Purleigh
- PROPERTY TYPE
Plot
- SIZE
Ask agent
Key features
- Building Plot
- Full Planning Permission Granted
- Village Location Opposite New Hall Vineyard
- Four Bedrooms
- Three Bathrooms
- Lounge, Study
- Open Plan Kitchen Dining Family Room
- Utility & Claokroom
- Approx. 200 square feet (186 sq. metres)
- Maldon Council Ref: 24/00615/FUL
Description
The village of Purleigh is around 4 miles south of Maldon and approximately 4 miles east of Danbury. It is a small semi-rural village offering a village shop, highly regarded primary school, public house and parish church. For the commuter, the property is within close proximity to South Woodham Ferrers and North Fambridge railway stations providing links into London Liverpool Street. There is a choice of schools in the area in both the public and private sector. The nearest large town is Maldon which features its historic Hythe Quay and High Street with local and national stores as well as quaint tea rooms, historic pubs and a mixture of restaurants and bars.
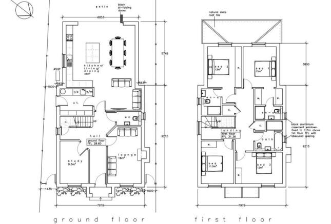
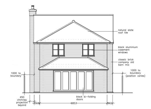
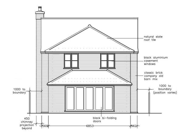
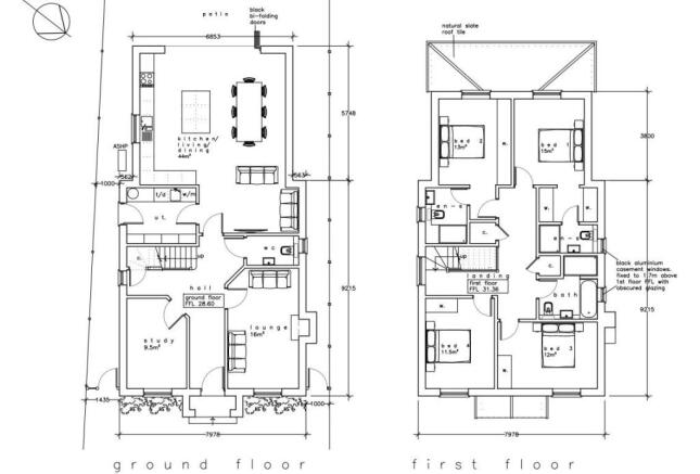
Planning Permission - Maldon District Council Ref: 24/00615/FUL. Full planning permission has been granted for an attractive detached house located on a plot of approx. 170' depth (52 metres). Accommodation proposed will comprise four bedrooms (two with an en-suite shower room) and a family bathroom to the first floor. To the ground floor there will be a reception hall, study, lounge, cloakroom, large open plan kitchen dining family room and a utility room.
Full plans, the decision notice and all related planning documents can be found on Maldon District Council's website using the reference stated above.
Agents Notes - These particulars do not constitute any part of an offer or contract. All measurements are approximate. No responsibility is accepted as to the accuracy of these particulars or statements made by our staff concerning the above property. We have not tested any apparatus or equipment therefore cannot verify that they are in good working order. Any intending purchaser must satisfy themselves as to the correctness of such statements within these particulars. All negotiations to be conducted through Church and Hawes. No enquiries have been made with the local authorities pertaining to planning permission or building regulations. Any buyer should seek verification from their legal representative or surveyor.
Brochures
Chelmsford Road, PurleighChelmsford Road, Purleigh
NEAREST STATIONS
Distances are straight line measurements from the centre of the postcode- North Fambridge Station3.1 miles
- South Woodham Ferrers Station3.5 miles
- Althorne Station5.1 miles
Notes
Disclaimer - Property reference 33430421. The information displayed about this property comprises a property advertisement. Rightmove.co.uk makes no warranty as to the accuracy or completeness of the advertisement or any linked or associated information, and Rightmove has no control over the content. This property advertisement does not constitute property particulars. The information is provided and maintained by Church & Hawes, Danbury. Please contact the selling agent or developer directly to obtain any information which may be available under the terms of The Energy Performance of Buildings (Certificates and Inspections) (England and Wales) Regulations 2007 or the Home Report if in relation to a residential property in Scotland.
Map data ©OpenStreetMap contributors.








