
2 bedroom terraced house for sale
Mount Pleasant Road, Dartford, Kent

- PROPERTY TYPE
Terraced
- BEDROOMS
2
- BATHROOMS
1
- SIZE
Ask agent
- TENUREDescribes how you own a property. There are different types of tenure - freehold, leasehold, and commonhold.Read more about tenure in our glossary page.
Freehold
Key features
- Council Tax band C, Freehold
- Traditional terraced layout with separate lounge and dining room
- Generous kitchen with fitted units and garden views
- Modern ground-floor bathroom with white tiling
- Two light and well-proportioned upstairs rooms
- Long rear garden with decking, lawn, patio and useful outbuildings
- Garden building ideal for office, workshop or studio potential
- Close to local shops, amenities, schools and bus routes
- Ideal for buyers seeking scope to improve and personalise
- Viewing Advised
Description
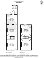
This traditional terraced home offers surprising space and potential, arranged over two levels with a flowing layout.
The ground floor features a welcoming lounge leading through to a separate dining area, creating a natural hub for everyday living. Beyond lies a generous kitchen with ample workspace, fitted units and views over the rear garden, with an adjacent modern bathroom finished in clean white tiling.
Upstairs, the landing leads to two light, well-proportioned rooms, both with radiators, storage and large windows drawing in plenty of natural light, ready for personalisation or modern styling.
Outside, the garden is a notable asset, stretching to useful outbuildings including sheds and a smart white garden building that could serve as a home office or studio. Although currently requiring some care, it offers clear zones of decking, lawn and patio, and has great potential to be transformed into a charming outdoor retreat.
The home is well positioned for access to local conveniences, with nearby shops, cafes and amenities, as well as popular schools and bus routes. This property presents an ideal opportunity for someone seeking character, practicality and scope to improve in a well-connected location.
Premium Fast Sale
The innovative Premium Fast Sale Plus method from Springbok Properties is a secure and straightforward way to buy property. It works like a typical sale, with a number of added benefits to the buyer.
Benefits
o Carefully implemented security measures
o A speedy process
o Realistically priced properties
o A Buy it Now option (ask for further information on this feature from our advisors)
o A significantly reduced chance of fall-throughs
o No risk of being "gazumped"
o The full focus of our highly motivated team
Springbok Properties' Premium Fast Sale Plus puts you in the driving seat thanks to our fast and secure methods.
All properties are competitively priced and carefully managed by motivated sellers for a quick, stress-free transaction.
Deposit
Sales can be secured with a reservation deposit of £5,000. This forms part of the final purchase price and is NOT an extra cost.
This deposit ensures that the property is taken off the market as soon as a sale is agreed. It is then exclusively reserved for you, eliminating gazumping, time wasting and financial loss.
An administration fee of £396 is required in order to draw up an exclusive legally binding contract between the buyer and seller. This gives the buyer exclusive rights to purchase within a pre-agreed timeframe.
Exclusivity
Following the payment of the above amount, Springbok Properties will facilitate a fixed exclusivity period (approximately 12 weeks). During this time, surveys should be arranged and preparations made for the exchange of contracts. The property will be reserved, so there will be no risk of gazumping.
Process
Our Premium Fast Sale Plus follows the below process:
STEP 1 - Register your interest
STEP 2 - Prepare your finances for the purchase
STEP 3 - Arrange a viewing
STEP 4 - Make an offer
STEP 5 - Secure your sale using our secure system
STEP 6 - Exchange and complete
Don't miss out on the chance to purchase this property. Call us today for further information and to arrange a viewing.
If you're interested in this property, we urge you to contact us immediately to arrange an early viewing and get the process started. This will help you to avoid missing out on this opportunity.
Springbok Properties' innovative Premium Fast Sale Plus is a secure and straightforward way to buy property.
Please note: to ensure the highest level of customer service, all calls may be recorded and monitored for training and quality purposes.
Please call us now to book an appointment.
We highly recommend early viewing as this property is priced relatively low and is likely to generate quite an interest.
Please call us now to book an appointment.
Call Recording
Please note to ensure the highest level of customer service, all calls may be recorded and monitored for training and quality purposes.
Disclaimer
Springbok Properties for itself and the Vendors or lessors of properties for whom they act give notice that:
The details shown on this website are a general outline for the guidance of intending purchasers, and do not constitute, nor constitute part of, an offer or contract or sales particulars. All descriptions, dimensions, references to condition and other details are given in good faith and are believed to be correct but any intending purchasers should not rely on them as statements or representations of fact but must satisfy themselves by inspection, searches, survey, enquiries or otherwise as to their correctness. We have not been able to test any of the building service installations and recommend that prospective purchasers arrange for a qualified person to check them before entering into any commitment. Further, any reference to, or use of any part of the properties is not a statement that any necessary planning, building regulations or other consent has been obtained. All photographs shown are indicative and cannot be guaranteed to represent the complete interior scheme or items included in the sale. No person in our employment has any authority to make or give any representation or warranty whatsoever in relation to this property.
TENURE
To be confirmed by the Vendor's Solicitors
Note
The price given is a marketing price and not an indication of the property's market value. The vendor like any seller is looking to achieve the maximum price possible. Hence, by making an enquiry on this property, you recognise and understand that this property is strictly offers in excess of the marketing price provided.
How to View this Property
Viewing is strictly by appointment please call us now for bookings.
AML REGULATIONS & PROOF OF FUNDING: Any proposed purchasers will be asked to provide identification and proof of funding before any offer is accepted. We would appreciate your co-operation with this to ensure there are no delays in agreeing the sale.
- COUNCIL TAXA payment made to your local authority in order to pay for local services like schools, libraries, and refuse collection. The amount you pay depends on the value of the property.Read more about council Tax in our glossary page.
- Ask agent
- PARKINGDetails of how and where vehicles can be parked, and any associated costs.Read more about parking in our glossary page.
- Ask agent
- GARDENA property has access to an outdoor space, which could be private or shared.
- Yes
- ACCESSIBILITYHow a property has been adapted to meet the needs of vulnerable or disabled individuals.Read more about accessibility in our glossary page.
- Ask agent
Mount Pleasant Road, Dartford, Kent
Add an important place to see how long it'd take to get there from our property listings.
__mins driving to your place
Get an instant, personalised result:
- Show sellers you’re serious
- Secure viewings faster with agents
- No impact on your credit score
About Springbok Properties, Nationwide
Springbok Properties Nationwide Suite 7N Trafford House Chester Road Old Trafford M32 0RS

Your mortgage
Notes
Staying secure when looking for property
Ensure you're up to date with our latest advice on how to avoid fraud or scams when looking for property online.
Visit our security centre to find out moreDisclaimer - Property reference 987081. The information displayed about this property comprises a property advertisement. Rightmove.co.uk makes no warranty as to the accuracy or completeness of the advertisement or any linked or associated information, and Rightmove has no control over the content. This property advertisement does not constitute property particulars. The information is provided and maintained by Springbok Properties, Nationwide. Please contact the selling agent or developer directly to obtain any information which may be available under the terms of The Energy Performance of Buildings (Certificates and Inspections) (England and Wales) Regulations 2007 or the Home Report if in relation to a residential property in Scotland.
*This is the average speed from the provider with the fastest broadband package available at this postcode. The average speed displayed is based on the download speeds of at least 50% of customers at peak time (8pm to 10pm). Fibre/cable services at the postcode are subject to availability and may differ between properties within a postcode. Speeds can be affected by a range of technical and environmental factors. The speed at the property may be lower than that listed above. You can check the estimated speed and confirm availability to a property prior to purchasing on the broadband provider's website. Providers may increase charges. The information is provided and maintained by Decision Technologies Limited. **This is indicative only and based on a 2-person household with multiple devices and simultaneous usage. Broadband performance is affected by multiple factors including number of occupants and devices, simultaneous usage, router range etc. For more information speak to your broadband provider.
Map data ©OpenStreetMap contributors.





