
Bishopsteignton, Shoeburyness, SS3

- PROPERTY TYPE
Detached
- BEDROOMS
5
- BATHROOMS
3
- SIZE
Ask agent
- TENUREDescribes how you own a property. There are different types of tenure - freehold, leasehold, and commonhold.Read more about tenure in our glossary page.
Freehold
Key features
- BOURNES GREEN SCHOOL CATCHMENT
- 5 Bed executive family home
- 4 Reception rooms
- 3 Bathrooms
- Double garage and off street parking
- Walking distance of Thorpe Bay Broadway & train station
Description
** Guide £800,000 - £850,000 ** Goldings are delighted to offer for sale this executive family home. Located in catchment for BOURNES GREEN SCHOOLS, this detached Goldsworthy property boasts 5 bedrooms (Two of which have air conditioning), 4 reception rooms and a 3 bathrooms. Further benefits include the landscaped rear garden and double width garage with off street parking to the front for several vehicles. The property is located within walking distance of Thorpe Bay train station & Broadway with its selection of shops and eateries. We strongly recommend viewing to fully appreciate the space on offer. There is potential to extend (STPP). Please call for further details. There is potential to extend (STPP).
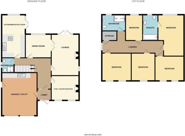
Entrance
Recessed secure multi-locking front door with glazed insert and side window opens into :
Lobby
Reception lobby with tiled floor. Integral courtesy door to garage. A further door links with :
Reception Hall
A spacious reception hall with stairs rising to the first floor accommodation. Under stairs storage cupboard. Doors lead to :
Study / Reception Room
3.05m x 3.66m
Two double glazed windows to front aspect. This versatile space could be used as a Home Office or separate reception area.
Ground Floor Shower Room
A fully tiled room comprising walk-in shower enclosure, low level W.C. and pedestal wash hand basin with storage beneath. Towel rail. Obscure double glazed window to side aspect.
Lounge
3.66m x 5.44m
A dual aspect room with a double glazed window to the side and double glazed French doors to the rear that open onto the garden; perfect for entertaining. Feature Gas fireplace with inset fire basket and decorative surround. Parquet solid wood flooring. Double doors link with :
Dining Room
3.18m x 3.38m
Space for a family dining table ahead of a double glazed window to the rear. Parquet solid wood flooring. A further door links back with the reception hall.
Kitchen / Breakfast Room
3.12m x 5.66m
The kitchen comprises an extensive range of full height, eye level and base storage units complemented by the Granite work surfaces with inset sink and mixer tap. Courtesy lighting under units. Inset hob under extractor. Space and plumbing for dishwasher. Recessed space for American style fridge-freezer. Built-in double oven. Tiled flooring. Beyond the kitchen, there is space for a breakfast / dining table ahead of a double glazed window and a set of double glazed French doors that open onto the patio.
First Floor Landing
Obscure double glazed window to side aspect. Loft access hatch. Large storage / airing cupboard. Doors lead to :
Bedroom One
3.66m x 5.44m
Double glazed windows to the rear aspect. This room benefits from air conditioning and also a range of built-in bedroom furniture including wardrobes and vanity unit. Courtesy door leads to :
Luxury En-Suite
A part tiled room comprising bath with shower above and glass screen, low level W.C and vanity wash hand basin with storage beneath. Tall wall mounted storage unit. Chrome towel radiator. Obscure double glazed window to rear aspect.
Bedroom Two
3.35m x 3.66m
Double glazed windows to the front aspect. This room benefits from air conditioning and also a range of built-in bedroom furniture including wardrobes and a desk.
Bedroom Three
3.07m x 3.68m
Double glazed window to the front aspect.
Bedroom Four
2.87m x 3.35m
Double glazed windows to the front aspect. This room benefits from a range of built-in bedroom furniture including wardrobes and vanity unit.
Bedroom Five
2.18m x 3.18m
Double glazed windows to the rear aspect. This room benefits from a range of built-in bedroom furniture including wardrobes and a desk.
Family Bathroom
A fully tiled room comprising walk-in shower enclosure, low level W.C. and pedestal wash hand basin. Obscure double glazed windows to rear and side aspects. Heated towel rail.
Rear Garden
The landscaped rear garden commences from the back of the property with a large patio entertaining area. The remainder is laid with artificial lawn and extends to raised planters that run across the rear of the garden. Secure gated side access to front.
Frontage
A large landscaped frontage providing off street parking for many vehicles ahead of the double width garage. Secure gated side access to rear.
Double Width Garage
A double width garage with electric roller shutter door to the front. To the rear of the garage there is a utility area with sink and space and plumbing for a washing machine and additional appliances. Power and light. Door to side garden area and another door linking with the main residence via the Lobby area.
Agents Note
The air conditioning in bedrooms 1 & 2 has been recently installed and can be controlled remotely with the use of an App.
- COUNCIL TAXA payment made to your local authority in order to pay for local services like schools, libraries, and refuse collection. The amount you pay depends on the value of the property.Read more about council Tax in our glossary page.
- Band: G
- PARKINGDetails of how and where vehicles can be parked, and any associated costs.Read more about parking in our glossary page.
- Yes
- GARDENA property has access to an outdoor space, which could be private or shared.
- Yes
- ACCESSIBILITYHow a property has been adapted to meet the needs of vulnerable or disabled individuals.Read more about accessibility in our glossary page.
- Ask agent
Energy performance certificate - ask agent
Bishopsteignton, Shoeburyness, SS3
Add an important place to see how long it'd take to get there from our property listings.
__mins driving to your place
Get an instant, personalised result:
- Show sellers you’re serious
- Secure viewings faster with agents
- No impact on your credit score
Affordability
Notes
Staying secure when looking for property
Ensure you're up to date with our latest advice on how to avoid fraud or scams when looking for property online.
Visit our security centre to find out moreDisclaimer - Property reference 27904585. The information displayed about this property comprises a property advertisement. Rightmove.co.uk makes no warranty as to the accuracy or completeness of the advertisement or any linked or associated information, and Rightmove has no control over the content. This property advertisement does not constitute property particulars. The information is provided and maintained by Goldings Estate Agents, Thorpe Bay. Please contact the selling agent or developer directly to obtain any information which may be available under the terms of The Energy Performance of Buildings (Certificates and Inspections) (England and Wales) Regulations 2007 or the Home Report if in relation to a residential property in Scotland.
*This is the average speed from the provider with the fastest broadband package available at this postcode. The average speed displayed is based on the download speeds of at least 50% of customers at peak time (8pm to 10pm). Fibre/cable services at the postcode are subject to availability and may differ between properties within a postcode. Speeds can be affected by a range of technical and environmental factors. The speed at the property may be lower than that listed above. You can check the estimated speed and confirm availability to a property prior to purchasing on the broadband provider's website. Providers may increase charges. The information is provided and maintained by Decision Technologies Limited. **This is indicative only and based on a 2-person household with multiple devices and simultaneous usage. Broadband performance is affected by multiple factors including number of occupants and devices, simultaneous usage, router range etc. For more information speak to your broadband provider.
Map data ©OpenStreetMap contributors.





