Rifles Lane, Shaftesbury, Dorset, SP7

- PROPERTY TYPE
Semi-Detached
- BEDROOMS
2
- BATHROOMS
2
- SIZE
Ask agent
- TENUREDescribes how you own a property. There are different types of tenure - freehold, leasehold, and commonhold.Read more about tenure in our glossary page.
Freehold
Key features
- SEMI DETACHED HOUSE
- TWO BEDOOMS
- ENSUITE SHOWER ROOM
- CLOAKROOM
- QUIET LOCATION
- OFF ROAD PARKING FOR TWO CARS
- FAMILY BATHROOM
- NO ONWARD CHAIN
- IDEAL FIRST TIME BUY
- GOOD SIZED GARDEN
Description
The house has had one owner since new and offers impressive accommodation including a bright and spacious sitting room, modern kitchen, two good sized bedrooms, en-suite shower room, family bathroom and cloakroom. Further benefits include a good sized rear garden, off road parking for two vehicles and no onward chain.
The property is conveniently located close to open countryside and town amenities and would make an ideal first time buy or buy to let investment.
An early viewing is recommended to avoid disappointment.
APPROACHED from the lane via paved path to the front door with a pitched roof canopy.
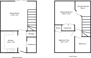
ENTRANCE HALL: A light and spacious reception hall with radiator, central heating thermostat, under stairs storage cupboard, door into sitting room, archway into kitchen and further door into cloakroom.
CLOAKROOM: Fitted with a modern white suite comprising a low level wc and pedestal wash hand basin, vinyl flooring, obscure window, radiator.
KITCHEN ( 9'6 x 7'3 ) A modern kitchen fitted with a range of wooden wall and floor cabinets with matching drawers, trim and contrasting roll edge work tops over, inset four ring gas hob with extractor hood over and electric oven under, inset stainless steel sink and drainer with mixer tap, space and plumbing for under counter washing machine, space for a tall fridge freezer, double glazed window to front aspect, vinyl flooring.
SITTING ROOM ( 13'9 x 12' ) A bright and spacious sitting room with dual aspect double glazed windows to side and rear aspect, double glazed french doors open onto the rear garden, TV point, radiator, stairs rise to first floor.
LANDING: Stairs rise to a small landing area with doors to further rooms.
MASTER BEDROOM ( 10'10 x 9'2 ) A good sized master bedroom with built in double wardrobes, radiator, TV point, double glazed window to rear aspect, door into:
ENSUITE SHOWER ROOM: Fitted with a modern white suite comprising a pedestal wash hand basin, low level wc and glazed corner shower enclosure with wall mounted shower fittings, vinyl flooring, tiled walls, extractor fan, double glazed obscure window, radiator.
BEDROOM TWO ( 9'6 x 7'3 ) A good sized bedroom with double glazed window to front aspect, radiator, cupboard housing modern gas combi boiler.
FAMILY BATHROOM: Fitted with a modern white suite comprising a pedestal wash hand basin, low level wc, panel enclosed bath with shower attachment, double glazed obscure window, vinyl flooring, tiled splash backs, radiator, extractor fan.
REAR GARDEN: The rear garden is a good but manageable size laid mainly to lawn with a paved patio and pathway leading to a wooden shed, outside tap, fully enclosed by timber panel fencing with side gate leading to parking apron.
SERVICES: Mains Gas, Electric, Mains Drainage, Water, Telephone & TV.
Council Tax Band: C Tenure: Freehold EPC Rating: C
- COUNCIL TAXA payment made to your local authority in order to pay for local services like schools, libraries, and refuse collection. The amount you pay depends on the value of the property.Read more about council Tax in our glossary page.
- Ask agent
- PARKINGDetails of how and where vehicles can be parked, and any associated costs.Read more about parking in our glossary page.
- Yes
- GARDENA property has access to an outdoor space, which could be private or shared.
- Yes
- ACCESSIBILITYHow a property has been adapted to meet the needs of vulnerable or disabled individuals.Read more about accessibility in our glossary page.
- Ask agent
Rifles Lane, Shaftesbury, Dorset, SP7
Add an important place to see how long it'd take to get there from our property listings.
__mins driving to your place
Get an instant, personalised result:
- Show sellers you’re serious
- Secure viewings faster with agents
- No impact on your credit score

Your mortgage
Notes
Staying secure when looking for property
Ensure you're up to date with our latest advice on how to avoid fraud or scams when looking for property online.
Visit our security centre to find out moreDisclaimer - Property reference riflesln. The information displayed about this property comprises a property advertisement. Rightmove.co.uk makes no warranty as to the accuracy or completeness of the advertisement or any linked or associated information, and Rightmove has no control over the content. This property advertisement does not constitute property particulars. The information is provided and maintained by Hambledon Estate Agents, Shaftesbury. Please contact the selling agent or developer directly to obtain any information which may be available under the terms of The Energy Performance of Buildings (Certificates and Inspections) (England and Wales) Regulations 2007 or the Home Report if in relation to a residential property in Scotland.
*This is the average speed from the provider with the fastest broadband package available at this postcode. The average speed displayed is based on the download speeds of at least 50% of customers at peak time (8pm to 10pm). Fibre/cable services at the postcode are subject to availability and may differ between properties within a postcode. Speeds can be affected by a range of technical and environmental factors. The speed at the property may be lower than that listed above. You can check the estimated speed and confirm availability to a property prior to purchasing on the broadband provider's website. Providers may increase charges. The information is provided and maintained by Decision Technologies Limited. **This is indicative only and based on a 2-person household with multiple devices and simultaneous usage. Broadband performance is affected by multiple factors including number of occupants and devices, simultaneous usage, router range etc. For more information speak to your broadband provider.
Map data ©OpenStreetMap contributors.




