
Aspin Avenue, Knaresborough, North Yorkshire, HG5

- PROPERTY TYPE
Semi-Detached
- BEDROOMS
4
- BATHROOMS
2
- SIZE
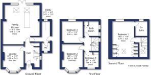
1,475 sq ft
137 sq m
- TENUREDescribes how you own a property. There are different types of tenure - freehold, leasehold, and commonhold.Read more about tenure in our glossary page.
Freehold
Key features
- Close to excellent primary and secondary schools
- Highly sought after residential location
- Substantially extended accommodation throughout
- Four bedrooms and two bath/shower rooms
- Lounge and superb contemporary extended living kitchen
- Off street parking and delightful private rear garden
Description
This deceptively spacious four bedroom semi-detached family home has recently undergone a comprehensive scheme of improvement and extension and now reveals well-appointed family accommodation situated within this highly regarded residential location just a short walk from the Crag top.
With gas central heating the property briefly comprises, a reception hall with staircase to the first floor, understairs storage and recessed cloaks cupboard. There is a separate bay fronted lounge and a luxury living kitchen which comprises a contemporary range of matching wall and base units with Quartz working surfaces and central island unit. French doors with picture windows either side lead onto the delightful private rear garden. There is also a separate utility room with a range of matching wall and base units with guest WC.
To the first floor there are three bedrooms and a refitted house bathroom which comprises a matching white three piece bath suite with shower over the bath and cupboard housing the central heating boiler. To the second floor there is a superb principal bedroom with built in wardrobes and outstanding long distance views to the rear. There is also a contemporary ensuite shower room.
Outside, there is a driveway which provides off street parking for one car and a further feature of the property is the large private rear garden which will no doubt appeal to both those entertaining and for those with family requirements. There is a terrace with covered seating area leading onto a deep lawn with specimen trees and shrubs.
The situation combines the advantages of an attractive setting with ease of access to town centre shopping recreational and schooling facilities within this popular market town which has railway station with mainline links. The southern bypass and the A1/M are convenient and provide access to the principal commercial centres of North and West Yorkshire.
Local Authority & Council Tax Band
• North Yorkshire Council
• Council Tax Band C
Tenure, Services & Parking
• Freehold
• All mains services are installed. Central heating and hot water is from a gas fired boiler.
• Private driveway providing off-street parking for one car.
Internet & Mobile Coverage
For information on Internet and Mobile coverage access the Ofcom website from this link
Flooding
For information on flood risks please use this link Check for flooding in England - GOV.UK
Agent’s Notes
If any issue such as location, communications or condition of the property are of material importance to your decision to view then please discuss these priorities with us before making arrangements to view.
Proceed up the High Street and through the traffic lights. Turn right into King James Road and at the mini roundabout turn left into Aspin Lane. Proceed down Aspin Lane turning right into Aspin Avenue where the property can be found further along on the right hand side clearly marked by our For Sale board.
Brochures
Particulars- COUNCIL TAXA payment made to your local authority in order to pay for local services like schools, libraries, and refuse collection. The amount you pay depends on the value of the property.Read more about council Tax in our glossary page.
- Band: C
- PARKINGDetails of how and where vehicles can be parked, and any associated costs.Read more about parking in our glossary page.
- Driveway,Off street,EV charging
- GARDENA property has access to an outdoor space, which could be private or shared.
- Yes
- ACCESSIBILITYHow a property has been adapted to meet the needs of vulnerable or disabled individuals.Read more about accessibility in our glossary page.
- Ask agent
Energy performance certificate - ask agent
Aspin Avenue, Knaresborough, North Yorkshire, HG5
Add an important place to see how long it'd take to get there from our property listings.
__mins driving to your place
Get an instant, personalised result:
- Show sellers you’re serious
- Secure viewings faster with agents
- No impact on your credit score
Your mortgage
Notes
Staying secure when looking for property
Ensure you're up to date with our latest advice on how to avoid fraud or scams when looking for property online.
Visit our security centre to find out moreDisclaimer - Property reference KNA250225. The information displayed about this property comprises a property advertisement. Rightmove.co.uk makes no warranty as to the accuracy or completeness of the advertisement or any linked or associated information, and Rightmove has no control over the content. This property advertisement does not constitute property particulars. The information is provided and maintained by Dacre Son & Hartley, Knaresborough. Please contact the selling agent or developer directly to obtain any information which may be available under the terms of The Energy Performance of Buildings (Certificates and Inspections) (England and Wales) Regulations 2007 or the Home Report if in relation to a residential property in Scotland.
*This is the average speed from the provider with the fastest broadband package available at this postcode. The average speed displayed is based on the download speeds of at least 50% of customers at peak time (8pm to 10pm). Fibre/cable services at the postcode are subject to availability and may differ between properties within a postcode. Speeds can be affected by a range of technical and environmental factors. The speed at the property may be lower than that listed above. You can check the estimated speed and confirm availability to a property prior to purchasing on the broadband provider's website. Providers may increase charges. The information is provided and maintained by Decision Technologies Limited. **This is indicative only and based on a 2-person household with multiple devices and simultaneous usage. Broadband performance is affected by multiple factors including number of occupants and devices, simultaneous usage, router range etc. For more information speak to your broadband provider.
Map data ©OpenStreetMap contributors.






