Lisbon, Alcoentre, Portugal
- PROPERTY TYPE
Land
- SIZE
63,195 sq ft
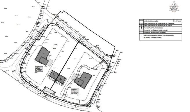
5,871 sq m
Description
This exceptional plot in Alcoentre is the perfect canvas to bring your dreams to life, whether it's building the perfect home, the ideal commercial venture, or the investment project of your dreams. With a generous area of 5,871 m², this plot offers endless possibilities and a spectacular setting to bring your most creative ideas to life.
Land Features:
- Total Area: 5,871m²
- Location: Alcoentre, in an easily accessible area
- Approved project for 2 houses
According to the PDM Regulations:
- Maximum gross density - 30 dwellings/ha
- Maximum construction index: 0.25
- Maximum building height: 2 stories
Benefits and Potential:
- Strategic Location: This land is strategically located, allowing you to enjoy the tranquility of the countryside while remaining close to important access points.
- Customized Project: With ample space available, you can let your imagination run wild and create a project tailored to your needs and preferences.
Unique Investment Opportunity:
- Ideal for Builders: This land is ideal for builders looking for a large, well-located site to develop new constructions.
- Long-Term Investment: A lucrative, long-term investment opportunity that can be adapted to various types of real estate projects.
Don't miss the opportunity to transform this land into an architectural masterpiece. Whether you want to build your dream home or start a development project, this land in Alcoentre has the potential to become the region's next major landmark. Schedule your visit now and discover the full potential of this exceptional land!
#ref: 761453
Lisbon, Alcoentre, Portugal
NEAREST AIRPORTS
Distances are straight line measurements- Lisbon(International)32.3 miles
Advice on buying Portuguese property
Learn everything you need to know to successfully find and buy a property in Portugal.
Notes
This is a property advertisement provided and maintained by IAD, Porto (reference 761453) and does not constitute property particulars. Whilst we require advertisers to act with best practice and provide accurate information, we can only publish advertisements in good faith and have not verified any claims or statements or inspected any of the properties, locations or opportunities promoted. Rightmove does not own or control and is not responsible for the properties, opportunities, website content, products or services provided or promoted by third parties and makes no warranties or representations as to the accuracy, completeness, legality, performance or suitability of any of the foregoing. We therefore accept no liability arising from any reliance made by any reader or person to whom this information is made available to. You must perform your own research and seek independent professional advice before making any decision to purchase or invest in overseas property.



