Milestone Close, Waverton, Wigton

- PROPERTY TYPE
Detached
- BEDROOMS
4
- BATHROOMS
2
- SIZE
Ask agent
- TENUREDescribes how you own a property. There are different types of tenure - freehold, leasehold, and commonhold.Read more about tenure in our glossary page.
Freehold
Key features
- Luxury New build Home
- Built by locally renowned Lattimer Homes
- 4 bedroom detached home
- Around 2000 sq ft of living accommodation
- Luxurious Specification
- Stunning views to the rear
- Gardens to front and rear
- Integral Garage
- Driveway parking
- Close to Wigton, Carlisle, Lake District and Solway Coast
Description
**Viewings strictly by appointment only**
This attractive four bedroom detached home sits within an exclusive new development built by locally and nationally renowned builders Lattimer Homes.
Completed to a luxury specification with high quality fixtures and fittings, the design and layout internally has been painstakingly considered creating modern family spaces and well-proportioned rooms. Homes of this specification and in this location rarely come to the market and the attention to detail in these homes is outstanding.
Plot 3 sits on a generous sized plot with ample parking and an integral garage and is well positioned to take in the countryside views to the rear. This property also has the benefit of a NHBC warranty and is extremely energy efficient.
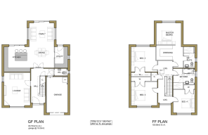
Internally - On the ground floor, there is a large open plan family room incorporating a sociable living/dining/kitchen space with doors to the rear garden, utility room to the side, additional lounge, cloakroom and door into the integral garage. On the first floor there are four bedrooms with the master bedroom having a dressing area and ensuite shower room and a main family bathroom serving the other two bedrooms. The kitchen and bathrooms are of a high standard and have a luxurious finish, with quality fittings, sanitary ware and tiling. At the pre-market stage, buyers will have the opportunity to upgrade their choices of kitchens, bathrooms and tiling/shower panelling.
Externally - To the front of the property there is a driveway with parking for two vehicles and an attractive lawn. The rear garden is a generous size and is mainly laid to lawn with a paved patio area where you can enjoy alfresco dining.
This property also has the benefit of a NHBC warranty and is extremely energy efficient with air source heating and insulation.
Specification - Thin edge tiled roof
Sandstone walling on front elevations with natural stone surrounds
Finished with a k rend wet dash render system with a coloured and textured finish
Oak veneered doors throughout
Underfloor Heating with thermostatic valves
Wood grain anthracite UPVC windows and doors throughout
LED lighting to bathrooms, kitchen & hallway
Integrated appliances including oven, dishwasher, fridge freezer, induction hob and extractor.
Landscaped to a high standard with Indian sandstone flags around the property and Timber fencing as site plan,
Parking for 2 cars
Integral garage
10 yr NHBC warranty
Cavity construction with 100mm of blockwork outer skin plus 150mm of stone on some elevations with insulation to the new 2022 building regulations.
Location - The village of Waverton sits around 2 miles from the popular town of Wigton where there is a thriving community, well regarded primary and secondary schools and excellent transport links to the M6, A595/A596. The City of Carlisle is around 14 miles away with its shops, primary and secondary schools, restaurants and local amenities and services. The Lake District National Park and the Solway Coast are easily accessible and countryside walks can be enjoyed from the doorstep
Services - Mains electricity and water
Mains Drainage
Broadband
Air source heat pump heating with Underfloor Heating to ground floor, radiators to first floor with thermostatic valves
300 litre hot water cylinder
There will be a private estate management fee for the maintenance of the communal areas – costs TBC and further details to follow.
Epc & Council Tax - EPC - This is a new build property being sold off plan
Council Tax - To be allocated once completed
Please be aware that due to a limited number of EPC providers in Cumbria, there may be delays in obtaining Energy Performance Certificates (EPCs) for some properties. We anticipate receiving them within 7-14 days of the property's listing. If there are any further delays, we will update the property brochure with the expected availability of the EPC. Thank you for your understanding.
Disclaimer - **The computer generated images are completely indicative of how the houses could be and should not be considered as an exact finish**
These particulars, whilst believed to be accurate are set out as a general guideline and do not constitute any part of an offer or contract. Intending Purchasers should not rely on them as statements of representation of fact, but must satisfy themselves by inspection or otherwise as to their accuracy. The services, systems, and appliances shown may not have been tested and has no guarantee as to their operability or efficiency can be given. All floor plans are created as a guide to the lay out of the property and should not be considered as a true depiction of any property and constitutes no part of a legal contract.
Brochures
Milestone Close, Waverton, Wigton- COUNCIL TAXA payment made to your local authority in order to pay for local services like schools, libraries, and refuse collection. The amount you pay depends on the value of the property.Read more about council Tax in our glossary page.
- Band: TBC
- PARKINGDetails of how and where vehicles can be parked, and any associated costs.Read more about parking in our glossary page.
- Yes
- GARDENA property has access to an outdoor space, which could be private or shared.
- Yes
- ACCESSIBILITYHow a property has been adapted to meet the needs of vulnerable or disabled individuals.Read more about accessibility in our glossary page.
- Ask agent
Energy performance certificate - ask agent
Milestone Close, Waverton, Wigton
Add an important place to see how long it'd take to get there from our property listings.
__mins driving to your place
Get an instant, personalised result:
- Show sellers you’re serious
- Secure viewings faster with agents
- No impact on your credit score
Your mortgage
Notes
Staying secure when looking for property
Ensure you're up to date with our latest advice on how to avoid fraud or scams when looking for property online.
Visit our security centre to find out moreDisclaimer - Property reference 34326204. The information displayed about this property comprises a property advertisement. Rightmove.co.uk makes no warranty as to the accuracy or completeness of the advertisement or any linked or associated information, and Rightmove has no control over the content. This property advertisement does not constitute property particulars. The information is provided and maintained by David Britton Estates, Penrith. Please contact the selling agent or developer directly to obtain any information which may be available under the terms of The Energy Performance of Buildings (Certificates and Inspections) (England and Wales) Regulations 2007 or the Home Report if in relation to a residential property in Scotland.
*This is the average speed from the provider with the fastest broadband package available at this postcode. The average speed displayed is based on the download speeds of at least 50% of customers at peak time (8pm to 10pm). Fibre/cable services at the postcode are subject to availability and may differ between properties within a postcode. Speeds can be affected by a range of technical and environmental factors. The speed at the property may be lower than that listed above. You can check the estimated speed and confirm availability to a property prior to purchasing on the broadband provider's website. Providers may increase charges. The information is provided and maintained by Decision Technologies Limited. **This is indicative only and based on a 2-person household with multiple devices and simultaneous usage. Broadband performance is affected by multiple factors including number of occupants and devices, simultaneous usage, router range etc. For more information speak to your broadband provider.
Map data ©OpenStreetMap contributors.





