
Plot for sale
Plot To East Of Greystones, Plot To East Of Greystones, Craigmyle Road, Torphins, Banchory, AB31
- PROPERTY TYPE
Plot
- SIZE
Ask agent
Description
Occupying a sheltered position with a southerly aspect, the property has been designed to complement the surrounding environment.
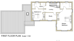
The finished property will offer spacious and versatile accommodation comprising large open plan kitchen/dining/family room, separate lounge, bedroom/family room, utility room and WC on the ground floor and master bedroom with ensuite, bedroom, study and bathroom on the first floor.
An integral double garage will create ample space for secure parking and storage, with additional parking on the driveway.
Full details and all relevant planning documentation can be found can be found on the Aberdeenshire Planning Portal using the application reference: APP/2019/0664
All enquiries should be made to Aberdein Considine. Site visits can be arranged.
The picturesque village of Torphins is ideally located, offering tranquillity of village life, but with in easy commuting distance of Aberdeen (21 miles) with regular bus routes to Aberdeen and Deeside available. There is a good choice of shops and amenities within Torphins including a chemist and general grocers/post office with a wider range at nearby Banchory (6 miles) or Aboyne (8 miles). There is an excellent primary school in the village with secondary education available at nearby Aboyne Academy which incorporates a community and sports centre with a swimming pool. There is a wide range of outdoor pursuits available in the area including a 9-hole golf course, tennis courts and plentiful walking, hiking and biking routes.
Plot To East Of Greystones, Plot To East Of Greystones, Craigmyle Road, Torphins, Banchory, AB31
NEAREST STATIONS
Distances are straight line measurements from the centre of the postcode- Inverurie Station15.4 miles
Notes
Disclaimer - Property reference BCH230167. The information displayed about this property comprises a property advertisement. Rightmove.co.uk makes no warranty as to the accuracy or completeness of the advertisement or any linked or associated information, and Rightmove has no control over the content. This property advertisement does not constitute property particulars. The information is provided and maintained by Aberdein Considine, Perth. Please contact the selling agent or developer directly to obtain any information which may be available under the terms of The Energy Performance of Buildings (Certificates and Inspections) (England and Wales) Regulations 2007 or the Home Report if in relation to a residential property in Scotland.
Map data ©OpenStreetMap contributors.







