
3 bedroom semi-detached house for sale
Summerfield Road, West Wittering, PO20

- PROPERTY TYPE
Semi-Detached
- BEDROOMS
3
- BATHROOMS
1
- SIZE
786 sq ft
73 sq m
- TENUREDescribes how you own a property. There are different types of tenure - freehold, leasehold, and commonhold.Read more about tenure in our glossary page.
Freehold
Key features
- Attractive semi-detached home
- Modern, well fitted kitchen
- Bright dual aspect living room
- Downstairs bedroom or office
- Two good-sized bedrooms
- Contemporary walk-in shower room
- South westerly rear garden
- Summerhouse, shed and greenhouse
- Off-road driveway parking
- No forward chain
Description
This well presented two bedroom semi-detached house offers a smart blend of character features and modern updates. The attractive brick exterior is complemented by a pitched roof porch and a gravel driveway providing convenient off road parking. A side gate gives straightforward access to the rear garden.
Inside, the reception room features wooden flooring, a fireplace, large shuttered windows and dual aspect, creating a bright and comfortable living and dining space. The modern kitchen includes dark cabinetry, a farmhouse style sink, neutral tiling and integrated appliances. A downstairs single bedroom or office space completes the downstairs accommodation, featuring exposed beams adding to the character. Glass doors from both the kitchen and living area open directly onto the garden.
Upstairs, two further bedrooms enjoy good natural light and practical built in wardrobes. Window shutters and contemporary lighting continue the home’s clean, modern feel.The family bathroom is finished with tiled walls and a modern walk-in shower.
The rear garden is a key feature, with its south westerly orientation, well kept lawn, mature planting and dedicated seating area. A wooden shed and greenhouse provide useful storage and space for gardening, along with the added benefit of a summerhouse
EPC Rating: D
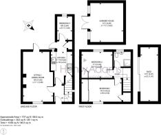
Sitting/Dining Room (3.38m x 5.56m)
Kitchen (2.34m x 4.83m)
Bedroom 1 (2.54m x 4.52m)
Bedroom 2 (3m x 3.43m)
Bedroom 3 (1.5m x 2.64m)
Brochures
Property Brochure- COUNCIL TAXA payment made to your local authority in order to pay for local services like schools, libraries, and refuse collection. The amount you pay depends on the value of the property.Read more about council Tax in our glossary page.
- Band: B
- PARKINGDetails of how and where vehicles can be parked, and any associated costs.Read more about parking in our glossary page.
- Yes
- GARDENA property has access to an outdoor space, which could be private or shared.
- Yes
- ACCESSIBILITYHow a property has been adapted to meet the needs of vulnerable or disabled individuals.Read more about accessibility in our glossary page.
- Ask agent
Summerfield Road, West Wittering, PO20
Add an important place to see how long it'd take to get there from our property listings.
__mins driving to your place
Get an instant, personalised result:
- Show sellers you’re serious
- Secure viewings faster with agents
- No impact on your credit score



Your mortgage
Notes
Staying secure when looking for property
Ensure you're up to date with our latest advice on how to avoid fraud or scams when looking for property online.
Visit our security centre to find out moreDisclaimer - Property reference b9012088-f153-4c59-8d3b-1821dd205889. The information displayed about this property comprises a property advertisement. Rightmove.co.uk makes no warranty as to the accuracy or completeness of the advertisement or any linked or associated information, and Rightmove has no control over the content. This property advertisement does not constitute property particulars. The information is provided and maintained by Henry Adams, East Wittering. Please contact the selling agent or developer directly to obtain any information which may be available under the terms of The Energy Performance of Buildings (Certificates and Inspections) (England and Wales) Regulations 2007 or the Home Report if in relation to a residential property in Scotland.
*This is the average speed from the provider with the fastest broadband package available at this postcode. The average speed displayed is based on the download speeds of at least 50% of customers at peak time (8pm to 10pm). Fibre/cable services at the postcode are subject to availability and may differ between properties within a postcode. Speeds can be affected by a range of technical and environmental factors. The speed at the property may be lower than that listed above. You can check the estimated speed and confirm availability to a property prior to purchasing on the broadband provider's website. Providers may increase charges. The information is provided and maintained by Decision Technologies Limited. **This is indicative only and based on a 2-person household with multiple devices and simultaneous usage. Broadband performance is affected by multiple factors including number of occupants and devices, simultaneous usage, router range etc. For more information speak to your broadband provider.
Map data ©OpenStreetMap contributors.





