
1 bedroom apartment for sale
13 Regent Place, Broughty Ferry, DD5 1AT

- PROPERTY TYPE
Apartment
- BEDROOMS
1
- BATHROOMS
1
- SIZE
549 sq ft
51 sq m
- TENUREDescribes how you own a property. There are different types of tenure - freehold, leasehold, and commonhold.Read more about tenure in our glossary page.
Freehold
Key features
- Age Restrictions- 55 And Over
- Ground Floor Flat
- Sought-After West Ferry
- Bright Living Room
- Modern Fitted Kitchen
- Communal Garden Access
- Resident Off-Street Parking
Description
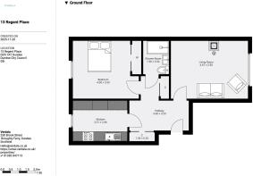
Set in the quiet Regent Place in West Ferry, this ground floor one-bedroom flat offers a well-presented home in a peaceful and established setting.
The interior is bright and neatly maintained. A spacious living room sits to the front, with a large window drawing in natural light. The kitchen at the rear has been modernised with gloss units and integrated appliances, and looks out over the shared gardens. The double bedroom has fitted wardrobes. The shower room spacious and practical for everyday.
Outside, residents enjoy access to well-tended communal gardens with seating areas and drying space, along with off-street parking. The location offers easy access to nearby shops, bus routes, and is under a mile from Broughty Ferry train station.
A straightforward, comfortable property, ideal for someone looking to downsize or enjoy low-maintenance living in a well-connected part of West Ferry.
This is sheltered accommodation with an age restriction of 60 and over. Service charges apply for the upkeep of the development.
EPC Rating: C
Brochures
Home Report- COUNCIL TAXA payment made to your local authority in order to pay for local services like schools, libraries, and refuse collection. The amount you pay depends on the value of the property.Read more about council Tax in our glossary page.
- Band: C
- PARKINGDetails of how and where vehicles can be parked, and any associated costs.Read more about parking in our glossary page.
- Yes
- GARDENA property has access to an outdoor space, which could be private or shared.
- Communal garden
- ACCESSIBILITYHow a property has been adapted to meet the needs of vulnerable or disabled individuals.Read more about accessibility in our glossary page.
- Ask agent
Energy performance certificate - ask agent
13 Regent Place, Broughty Ferry, DD5 1AT
Add an important place to see how long it'd take to get there from our property listings.
__mins driving to your place
Get an instant, personalised result:
- Show sellers you’re serious
- Secure viewings faster with agents
- No impact on your credit score
Your mortgage
Notes
Staying secure when looking for property
Ensure you're up to date with our latest advice on how to avoid fraud or scams when looking for property online.
Visit our security centre to find out moreDisclaimer - Property reference 894edfa4-88d6-420e-99d5-672ec04ae6d2. The information displayed about this property comprises a property advertisement. Rightmove.co.uk makes no warranty as to the accuracy or completeness of the advertisement or any linked or associated information, and Rightmove has no control over the content. This property advertisement does not constitute property particulars. The information is provided and maintained by Verdala, Dundee. Please contact the selling agent or developer directly to obtain any information which may be available under the terms of The Energy Performance of Buildings (Certificates and Inspections) (England and Wales) Regulations 2007 or the Home Report if in relation to a residential property in Scotland.
*This is the average speed from the provider with the fastest broadband package available at this postcode. The average speed displayed is based on the download speeds of at least 50% of customers at peak time (8pm to 10pm). Fibre/cable services at the postcode are subject to availability and may differ between properties within a postcode. Speeds can be affected by a range of technical and environmental factors. The speed at the property may be lower than that listed above. You can check the estimated speed and confirm availability to a property prior to purchasing on the broadband provider's website. Providers may increase charges. The information is provided and maintained by Decision Technologies Limited. **This is indicative only and based on a 2-person household with multiple devices and simultaneous usage. Broadband performance is affected by multiple factors including number of occupants and devices, simultaneous usage, router range etc. For more information speak to your broadband provider.
Map data ©OpenStreetMap contributors.






