
3 bedroom detached house for sale
Mill Close, Newton Solney, Burton-On-Trent

- PROPERTY TYPE
Detached
- BEDROOMS
3
- BATHROOMS
2
- SIZE
1,270 sq ft
118 sq m
- TENUREDescribes how you own a property. There are different types of tenure - freehold, leasehold, and commonhold.Read more about tenure in our glossary page.
Freehold
Key features
- Superb Location
- Highly Desirable Village
- No Upward Chain
- Double Glazed & Gas Central Heated
- Open Plan Lounge/Dining Room
- Breakfast Kitchen & Utility
- Porch & Shower Room
- Three First Floor Bedrooms & Bathroom
- Driveway & Garage
- Generously Sized Rear Garden
Description
The property is sold with the benefit of no upper chain and is double glazed and gas central heated with entrance hall, spacious lounge with feature fireplace which opens into the dining area and breakfast kitchen with utility and shower room off plus access to the attached garage. To the first floor there are two double bedrooms, single bedroom and a bathroom.
The property occupies a larger than average plot with sizable lawn to the side and rear. There is further scope for an extension, subject to any necessary planning consents. The property also benefits from a double width driveway and the attached single garage.
The Location -
Accommodation -
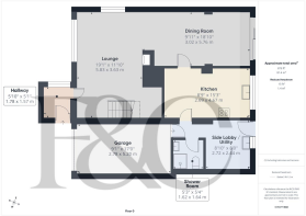
Ground Floor -
Entrance Hall - 1.78 x 1.57 (5'10" x 5'1") - A UPVC double glazed and leaded entrance door provides access to hallway with central heating radiator and double glazed window to side.
Spacious Lounge - 5.83 x 3.63 (19'1" x 11'10") - Having a feature, extended stone fire surround with timber mantel, granite hearth and living flame fitted gas fire, two display alcoves, three central heating radiators, decorative coving, staircase to first floor, useful storage cupboard, double glazed windows to front and side and open access to dining room.
Extended Dining Room - 5.76 x 3.02 (18'10" x 9'10") - With two central heating radiators, decorative coving, double glazed sliding patio door to garden and panelled and multi-pane door to kitchen.
Breakfast Kitchen - 4.67 x 2.69 (15'3" x 8'9") - Comprising wood effect worktops including breakfast bar, inset one and a quarter sink unit with tiled surrounds, base cupboards and drawers, complementary wall mounted cupboards with down lighting, inset four plate gas hob with extractor hood over and built-in double oven, appliance space suitable for washing machine and double glazed window to rear.
Side Lobby/Utility - 2.72 x 2.44 (8'11" x 8'0") - With central heating radiator, wood effect worktops, ceramic sink unit, fitted base cupboard, space for washing machine, tumble dryer and dishwasher, double glazed door and window to rear and integral door to garage.
Shower Room - 1.64 x 1.62 (5'4" x 5'3") - Partly tiled with a low flush WC, pedestal wash handbasin, shower cubicle and central heating radiator.
First Floor Landing - 2.97 x 0.99 (9'8" x 3'2") - Having a central heating radiator, access to loft space and storage cupboard.
Bedroom One - 3.67 x 3.27 (12'0" x 10'8") - With central heating radiator, decorative coving and double glazed window to front.
Bedroom Two - 3.69 x 3.20 (12'1" x 10'5") - With central heating radiator, decorative coving and double glazed window to rear.
Bedroom Three - 2.47 x 2.08 (8'1" x 6'9") - Having a central heating radiator, storage cupboard and double glazed window to front.
Bathroom - 2.04 x 1.68 (6'8" x 5'6") - Partly tiled with a white suite comprising low flush WC, pedestal wash handbasin, panelled bath, central heating radiator and double glazed window to rear.
Outside - The property is tucked away towards the head of a quiet cul-de-sac behind a tarmacadam driveway providing off-road parking for two vehicles and access to an attached garage. To the rear of the property is a larger than average garden with a sizeable plot which extends to the rear and side offering excellent scope for a further extension (subject to necessary planning permission). The garden is bounded by timber fencing and features a patio area whilst offering a good degree of privacy.
Council Tax Band D -
Brochures
Mill Close, Newton Solney, Burton-On-TrentBrochure- COUNCIL TAXA payment made to your local authority in order to pay for local services like schools, libraries, and refuse collection. The amount you pay depends on the value of the property.Read more about council Tax in our glossary page.
- Band: D
- PARKINGDetails of how and where vehicles can be parked, and any associated costs.Read more about parking in our glossary page.
- Yes
- GARDENA property has access to an outdoor space, which could be private or shared.
- Yes
- ACCESSIBILITYHow a property has been adapted to meet the needs of vulnerable or disabled individuals.Read more about accessibility in our glossary page.
- Ask agent
Mill Close, Newton Solney, Burton-On-Trent
Add an important place to see how long it'd take to get there from our property listings.
__mins driving to your place
Get an instant, personalised result:
- Show sellers you’re serious
- Secure viewings faster with agents
- No impact on your credit score


Your mortgage
Notes
Staying secure when looking for property
Ensure you're up to date with our latest advice on how to avoid fraud or scams when looking for property online.
Visit our security centre to find out moreDisclaimer - Property reference 34329624. The information displayed about this property comprises a property advertisement. Rightmove.co.uk makes no warranty as to the accuracy or completeness of the advertisement or any linked or associated information, and Rightmove has no control over the content. This property advertisement does not constitute property particulars. The information is provided and maintained by Fletcher & Company, Willington. Please contact the selling agent or developer directly to obtain any information which may be available under the terms of The Energy Performance of Buildings (Certificates and Inspections) (England and Wales) Regulations 2007 or the Home Report if in relation to a residential property in Scotland.
*This is the average speed from the provider with the fastest broadband package available at this postcode. The average speed displayed is based on the download speeds of at least 50% of customers at peak time (8pm to 10pm). Fibre/cable services at the postcode are subject to availability and may differ between properties within a postcode. Speeds can be affected by a range of technical and environmental factors. The speed at the property may be lower than that listed above. You can check the estimated speed and confirm availability to a property prior to purchasing on the broadband provider's website. Providers may increase charges. The information is provided and maintained by Decision Technologies Limited. **This is indicative only and based on a 2-person household with multiple devices and simultaneous usage. Broadband performance is affected by multiple factors including number of occupants and devices, simultaneous usage, router range etc. For more information speak to your broadband provider.
Map data ©OpenStreetMap contributors.






