
4 bedroom semi-detached house for sale
Church Road, Warsash

- PROPERTY TYPE
Semi-Detached
- BEDROOMS
4
- BATHROOMS
2
- SIZE
Ask agent
- TENUREDescribes how you own a property. There are different types of tenure - freehold, leasehold, and commonhold.Read more about tenure in our glossary page.
Freehold
Key features
- Stunning and spacious interior
- New boiler in 2025
- Glazed pocket doors from Sitting Room to Kitchen/Breakfast Room
- Single garage and driveway parking
- Sought after location close to shops and schools
- EPC-C
Description
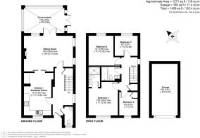
On entering, the adjacent Kitchen was refitted in 2024 with gorgeous pale green shaker style cupboards by Howdens and a range of appliances are included, there is also a good area for a dining table; sliding pocket doors leads into the Sitting Room. The Sitting Room is a stylish well proportioned space with a feature fireplace and contemporary scaffold plank shelves on each side; double doors lead into a generously sized Conservatory. Upstairs are four bedrooms, two of which are of double proportions, Bedroom 1 has an ensuite Shower Room and the other bedrooms are complimented by a newly fitted contemporary bathroom. The back garden is dog proof with a terrace for al fresco dining and an area of lawn.
The property is conveniently located with Warsash village and good local amenities less than half a mile away offering shops, post office, chemist and pubs; the beautiful green open spaces and woodlands of Warsash Common are also nearby for those who love walking. Schooling in the locality is good and Hook with Warsash Primary School is within easy walking distance and Brookfield Community School is 1.5 miles away. Recreational facilities in the area are excellent, Warsash Tennis Club is half a mile away and more extensive facilities can be found a short drive at Holly Hill Leisure Centre. For nature lovers, Hook Park Nature Reserve is a mile down the road, this beautiful nature reserve has one of the most diverse woodland, wetland habitats and gazing pastures in the region and forms a shingle shore and intertidal flats that run along the edge of Southampton Water; from the shore you can enjoy a walk along in the Coastal Path into the village of Warsash. There are also easy road and rail links from Church Road.
SUMMARY OF FEATURES:
Luxury vinyl plank throughout the ground floor; New Vaillant boiler installed in 2025; Kitchen appliances to include an electric induction hob, oven and grill, extractor hood, integrated dishwasher, Bosch freestanding fridge/freezer and Indesit washing machine; Electric stove to Sitting Room (by separate negotiation); Airing cupboard on Landing; Fitted wardrobe cupboard to Bedroom 4 and wardrobe cupboards to Bedrooms 2 and 3; Single garage with power and light; Gated side access.
GENERAL INFORMATION:
TENURE: Freehold; SERVICES: Mains gas, electricity, water and drainage; LOCAL AUTHORITY: Fareham Borough Council; TAX BAND: D
DISTANCES:
Hook with Warsash Primary School – 0.2 miles; Warsash Co-op and the River Hamble – 0.2 miles; Warsash Common – 0.4 miles; Warsash Tennis Club – 0.4 miles; Hook Park Nature Reserve – 1 mile; Brookfield Community School – 1.5 miles; Holly Hill Leisure Centre – 1.5 miles
Brochures
Brochure- COUNCIL TAXA payment made to your local authority in order to pay for local services like schools, libraries, and refuse collection. The amount you pay depends on the value of the property.Read more about council Tax in our glossary page.
- Band: D
- PARKINGDetails of how and where vehicles can be parked, and any associated costs.Read more about parking in our glossary page.
- Driveway
- GARDENA property has access to an outdoor space, which could be private or shared.
- Yes
- ACCESSIBILITYHow a property has been adapted to meet the needs of vulnerable or disabled individuals.Read more about accessibility in our glossary page.
- Ask agent
Church Road, Warsash
Add an important place to see how long it'd take to get there from our property listings.
__mins driving to your place
Get an instant, personalised result:
- Show sellers you’re serious
- Secure viewings faster with agents
- No impact on your credit score
Your mortgage
Notes
Staying secure when looking for property
Ensure you're up to date with our latest advice on how to avoid fraud or scams when looking for property online.
Visit our security centre to find out moreDisclaimer - Property reference 34333802. The information displayed about this property comprises a property advertisement. Rightmove.co.uk makes no warranty as to the accuracy or completeness of the advertisement or any linked or associated information, and Rightmove has no control over the content. This property advertisement does not constitute property particulars. The information is provided and maintained by Taylor Hill & Bond, Titchfield. Please contact the selling agent or developer directly to obtain any information which may be available under the terms of The Energy Performance of Buildings (Certificates and Inspections) (England and Wales) Regulations 2007 or the Home Report if in relation to a residential property in Scotland.
*This is the average speed from the provider with the fastest broadband package available at this postcode. The average speed displayed is based on the download speeds of at least 50% of customers at peak time (8pm to 10pm). Fibre/cable services at the postcode are subject to availability and may differ between properties within a postcode. Speeds can be affected by a range of technical and environmental factors. The speed at the property may be lower than that listed above. You can check the estimated speed and confirm availability to a property prior to purchasing on the broadband provider's website. Providers may increase charges. The information is provided and maintained by Decision Technologies Limited. **This is indicative only and based on a 2-person household with multiple devices and simultaneous usage. Broadband performance is affected by multiple factors including number of occupants and devices, simultaneous usage, router range etc. For more information speak to your broadband provider.
Map data ©OpenStreetMap contributors.





