
Hawthylands Crescent, Hailsham, BN27

- PROPERTY TYPE
Detached Bungalow
- BEDROOMS
3
- BATHROOMS
2
- SIZE
Ask agent
- TENUREDescribes how you own a property. There are different types of tenure - freehold, leasehold, and commonhold.Read more about tenure in our glossary page.
Freehold
Key features
- Island Kitchen
- Utility
- Ample Parking
- Well Presented Throughout
- Ideal for families or couples
- Outbuilding
Description
PRICE GUIDE £580,000 - £620,000
WATCH THE FILM AND 3D TOUR and view EXPERT PHOTOGRAPHY at craneandco.co.uk (ALL PROVIDED FREE FOR ALL OUR SELLERS)
Hawthylands Crescent is one of the most desirable addresses in the area and this beautifully extended three bedroom detached bungalow offers an exceptional opportunity to enjoy space, comfort and style in a highly sought-after location. Step inside and you'll find a stunning open-plan kitchen and dining space with a central island that’s perfect for family life, entertaining or simply enjoying a relaxed morning coffee. The kitchen is modern, bright and beautifully finished, with plenty of room to cook, gather and connect. Just off the kitchen, a separate utility room keeps things neat and functional, adding to the home’s thoughtful layout. Toward the back of the property, the separate lounge is a peaceful, welcoming space with views out over the garden. Whether you’re hosting guests or curling up for a quiet evening, it’s the ideal spot to unwind. On the ground floor, there are two spacious double bedrooms and a sleek, modern shower room. Upstairs, the principal bedroom enjoys its own private floor with a shower room, offering a quiet and comfortable retreat away from the main living space. Outside, the garden is private and well maintained, complete with a useful outbuilding that’s ideal for a home office, gym or workshop. To the front, the generous block paved driveway provides plenty of parking for multiple vehicles. This is more than just a home. It’s a lifestyle choice in a location that rarely becomes available, offering comfort, flexibility and convenience all in one.
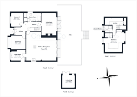
Entrance Hallway
Living Room - 16' 11" x 10' 11"
16' 11" x 10' 11" (5.16m x 3.33m)
Kitchen/Dining Room - 22' 0" x 21' 7"
22' 0" x 21' 7" (6.71m x 6.58m)
Utility Room - 11' 0" x 7' 8"
11' 0" x 7' 8" (3.35m x 2.34m)
Bedroom 2 - 11' 0" x 9' 10"
11' 0" x 9' 10" (3.35m x 3.00m)
Bedroom 3 - 10' 5" x 9' 5"
10' 5" x 9' 5" (3.17m x 2.87m)
Shower Room
First Floor:
Bedroom 1 - 15' 8" x 15' 2"
15' 8" x 15' 2" (4.78m x 4.62m)
Shower Room
Outbuilding - 9' 11" x 9' 10"
9' 11" x 9' 10" (3.02m x 3.00m)
- COUNCIL TAXA payment made to your local authority in order to pay for local services like schools, libraries, and refuse collection. The amount you pay depends on the value of the property.Read more about council Tax in our glossary page.
- Band: D
- PARKINGDetails of how and where vehicles can be parked, and any associated costs.Read more about parking in our glossary page.
- Yes
- GARDENA property has access to an outdoor space, which could be private or shared.
- Yes
- ACCESSIBILITYHow a property has been adapted to meet the needs of vulnerable or disabled individuals.Read more about accessibility in our glossary page.
- Ask agent
Hawthylands Crescent, Hailsham, BN27
Add an important place to see how long it'd take to get there from our property listings.
__mins driving to your place
Get an instant, personalised result:
- Show sellers you’re serious
- Secure viewings faster with agents
- No impact on your credit score



Your mortgage
Notes
Staying secure when looking for property
Ensure you're up to date with our latest advice on how to avoid fraud or scams when looking for property online.
Visit our security centre to find out moreDisclaimer - Property reference 29744183. The information displayed about this property comprises a property advertisement. Rightmove.co.uk makes no warranty as to the accuracy or completeness of the advertisement or any linked or associated information, and Rightmove has no control over the content. This property advertisement does not constitute property particulars. The information is provided and maintained by Crane & Co Estate Agents, Hailsham. Please contact the selling agent or developer directly to obtain any information which may be available under the terms of The Energy Performance of Buildings (Certificates and Inspections) (England and Wales) Regulations 2007 or the Home Report if in relation to a residential property in Scotland.
*This is the average speed from the provider with the fastest broadband package available at this postcode. The average speed displayed is based on the download speeds of at least 50% of customers at peak time (8pm to 10pm). Fibre/cable services at the postcode are subject to availability and may differ between properties within a postcode. Speeds can be affected by a range of technical and environmental factors. The speed at the property may be lower than that listed above. You can check the estimated speed and confirm availability to a property prior to purchasing on the broadband provider's website. Providers may increase charges. The information is provided and maintained by Decision Technologies Limited. **This is indicative only and based on a 2-person household with multiple devices and simultaneous usage. Broadband performance is affected by multiple factors including number of occupants and devices, simultaneous usage, router range etc. For more information speak to your broadband provider.
Map data ©OpenStreetMap contributors.





