Of The Former Crown Inn, Main Road, DE55
- PROPERTY TYPE
Land
- SIZE
Ask agent
Key features
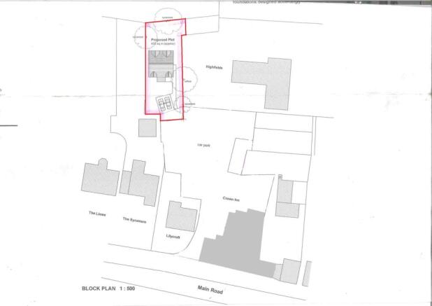
- Planning consent is granted for this individual building plot 400 square metres (0.09 of an acre)
- Planning consent granted for one single three bedroomed detached house
- The plot is situated to the rear of the former 17th Century historic former coaching inn which is now being converted to residential
- Higham is a well regarded Derbyshire village location and this unique opportunity must be viewed to be fully appreciated
- Planning reference granted by North East Derbyshire District Council 10/00571/FL & 19/00647/FL
- Please call for an appointment to view
Description
Planning: Planning consent has been granted by North East Derbyshire District Council Council planning reference number 19/00647/F and 10/00571 FL for the erection of a three bedroomed detached house which will comprise: entrance porch, cloakroom WC, storeroom, lounge, dining room, study and kitchen. On the first floor: three bedrooms, Ensuite shower room and family bathroom.
Soil Test: We, for ourselves, have not undertaken any soil tests and it is the purchasers responsibility to be sure of the ground conditions prior to exchange of contracts.
Viewing: Viewing is strictly by appointment through Savidge & Brown on . Please do not visit the site without an appointment as the former coaching inn is being restored and site access to the subject plot is through the former car park, therefore, health and safety regulations will need to be adhere to.
Postcode: The postcode for the satellite navigation user is DE55 6EH. The plot is located to the rear of the former Crown Coaching In.
Offer Procedure: Before contacting a Bank or Solicitor you should make your offer to our office and speak to a member of staff dealing with the sale as any delay may result in the sale being agreed to another purchaser incurring unnecessary costs.
Under the Estate Agency Act 1991 you will be required as soon as possible from making an offer to provide us financial information in order to verify your position before we can finally recommend your offer to the vendor. We will also require proof of identification in order to adhere to Money Laundering Regulations.
These particulars do not constitute any offer or contract nor any part thereof.
Anti-Money Laundering Checks: In accordance with the UK Money Laundering Regulations, we are required to carry out Anti-Money Laundering (AML) checks on all buyers. This includes identity verification, sanctions screening, and Politically Exposed Persons (PEP) checks, along with ongoing monitoring. A fee of £36.00 per person (inclusive of VAT) will be payable to cover the cost of these checks. Buyers will be required to provide proof of identity, proof of address, and evidence of the source of funds before we can proceed with the sale.
Disclaimer: Whilst we endeavour to make our sales particulars fair, accurate and reliable, they are only a general guide to the property and, accordingly, if there is any point which is of particular importance to you, please contact the office. SERVICES: The Agents have not tested any apparatus, equipment, fittings or services and so cannot verify they are in working order. The buyer is advised to obtain verification. MEASUREMENTS: Please note all the measurement details are approximate and should not be relied upon as exact.
Of The Former Crown Inn, Main Road, DE55
NEAREST STATIONS
Distances are straight line measurements from the centre of the postcode- Alfreton Station2.7 miles
- Whatstandwell Station4.6 miles
- Ambergate Station5.2 miles
Notes
Disclaimer - Property reference 142812_003142. The information displayed about this property comprises a property advertisement. Rightmove.co.uk makes no warranty as to the accuracy or completeness of the advertisement or any linked or associated information, and Rightmove has no control over the content. This property advertisement does not constitute property particulars. The information is provided and maintained by Savidge & Brown, Alfreton. Please contact the selling agent or developer directly to obtain any information which may be available under the terms of The Energy Performance of Buildings (Certificates and Inspections) (England and Wales) Regulations 2007 or the Home Report if in relation to a residential property in Scotland.
Map data ©OpenStreetMap contributors.





