
4 bedroom terraced house for sale
Verdun Terrace, Washford

- PROPERTY TYPE
Terraced
- BEDROOMS
4
- BATHROOMS
2
- SIZE
1,144 sq ft
106 sq m
- TENUREDescribes how you own a property. There are different types of tenure - freehold, leasehold, and commonhold.Read more about tenure in our glossary page.
Freehold
Key features
- Well Presented Throughout
- Allocated Parking
- Workshop
- Propane Gas Central Heating
- uPVC Double Glazing
- Far Reaching Views
- Generous Rear Garden
Description
A terraced ex-local authority family home built of brick and stone construction with rendered elevations under a tiled roof with the benefit of full uPVC double glazing, propane gas central heating, and lovely views. The house also has a large garden, a workshop suitable for a number of hobbies, and an allocated parking space.
The accommodation in brief comprises; Part glazed composite door with inset glass panels into Kitchen/Dining Room; aspect to front, tiled floor, fitted kitchen comprising a good range of painted wooden cupboards and drawers under a wood effect rolled edge worktop with inset stainless steel sink and drainer, mixer tap over, tiled splashbacks, space for electric cooker, space for American fridge freezer, space and plumbing for a washing machine, space for tumble dryer, wall mounted Worcester combi propane gas boiler for central heating and hot water.
Door into Living Room; aspect to rear, wood effect laminate flooring, under stairs storage, wood burner inset into chimney breast with slate hearth and oak beam over.
Door to rear hall, door to Rear Porch.
Stairs to first floor Landing.
Bedroom 1; aspect to rear, views to the Quantock Hills and over the West Somerset Steam Railway, built in wardrobes. Bedroom 2; aspect to front. Bedroom 3; aspect to front.
Family Bathroom; with a white suite comprising panelled bath, multipanel surround, electric Triton shower over, low level WC, wash basin.
Stairs To Second Floor; En-Suite Bedroom 4; 3 x Velux windows, eaves storage cupboards, far reaching views to the Quantock Hills, St Decumans Church and over the West Somerset Railway Line.
Door into En-Suite Shower Room; shower cubicle with electric Mira sport shower over, pedestal wash basin, low level WC, Velux window.
OUTSIDE: The property has one off road parking space to the front enclosed by a low picket fence. A pedestrian pathway leads to the front courtyard with access to the Workshop; (16ft x 10ft) with double timber doors, power and lighting. To the rear of the house there is a large garden with an immediate paved seating area. Then a timber shed with cobbled patio the remainder laid to lawn with a chicken run at the end, which runs adjacent to the heritage West Somerset Steam Railway Line.
AGENTS NOTE: This house is subject to a Section 157 local occupancy clause. Please contact the agents for further details. All applicants must have lived or worked in Somerset for the past 3 years and not own any other property.
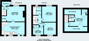
ACCOMMODATION:
Kitchen/Dining Room
Sitting Room
Rear Porch
1st Floor
Bedroom 2
Bedroom 3
Bedroom 4
Family Bathroom
2nd Floor
En-Suite Master Bedroom
Workshop & Gardens
MATERIAL INFORMATION:
Council Tax Band: A
Tenure: Freehold
Utilities: Mains water, electricity, sewage, propane gas heating
Parking: There is one off road parking space at this property and further unallocated parking nearby.
Broadband: For an indication of specific speeds and supply or coverage in the area, we would advise interested buyers to use the Ofcom checker: checker.ofcom.org.uk/en-gb/broadband-coverage
Mobile: For an indication of supply or coverage in the area, we would advise interested buyers to use the Ofcom checker: checker.ofcom.org.uk/en-gb/mobile-coverage
Flood Risk: For information relating to flood risk in the area, we would advise interested buyers to use the below government checker: flood-map-for-planning.service.gov.uk/location
Agents Notes: Some of the photographs used by Wilkie, May & Tuckwood have been taken with a wide angled lens to show the property off to its best advantage. Please note the floorplan is for guidance only and is not architecturally accurate.
Brochures
Verdun Terrace, WashfordBrochure- COUNCIL TAXA payment made to your local authority in order to pay for local services like schools, libraries, and refuse collection. The amount you pay depends on the value of the property.Read more about council Tax in our glossary page.
- Band: A
- PARKINGDetails of how and where vehicles can be parked, and any associated costs.Read more about parking in our glossary page.
- Off street
- GARDENA property has access to an outdoor space, which could be private or shared.
- Yes
- ACCESSIBILITYHow a property has been adapted to meet the needs of vulnerable or disabled individuals.Read more about accessibility in our glossary page.
- Ask agent
Verdun Terrace, Washford
Add an important place to see how long it'd take to get there from our property listings.
__mins driving to your place
Get an instant, personalised result:
- Show sellers you’re serious
- Secure viewings faster with agents
- No impact on your credit score
Your mortgage
Notes
Staying secure when looking for property
Ensure you're up to date with our latest advice on how to avoid fraud or scams when looking for property online.
Visit our security centre to find out moreDisclaimer - Property reference 34334746. The information displayed about this property comprises a property advertisement. Rightmove.co.uk makes no warranty as to the accuracy or completeness of the advertisement or any linked or associated information, and Rightmove has no control over the content. This property advertisement does not constitute property particulars. The information is provided and maintained by Wilkie May & Tuckwood, Watchet. Please contact the selling agent or developer directly to obtain any information which may be available under the terms of The Energy Performance of Buildings (Certificates and Inspections) (England and Wales) Regulations 2007 or the Home Report if in relation to a residential property in Scotland.
*This is the average speed from the provider with the fastest broadband package available at this postcode. The average speed displayed is based on the download speeds of at least 50% of customers at peak time (8pm to 10pm). Fibre/cable services at the postcode are subject to availability and may differ between properties within a postcode. Speeds can be affected by a range of technical and environmental factors. The speed at the property may be lower than that listed above. You can check the estimated speed and confirm availability to a property prior to purchasing on the broadband provider's website. Providers may increase charges. The information is provided and maintained by Decision Technologies Limited. **This is indicative only and based on a 2-person household with multiple devices and simultaneous usage. Broadband performance is affected by multiple factors including number of occupants and devices, simultaneous usage, router range etc. For more information speak to your broadband provider.
Map data ©OpenStreetMap contributors.






