
Manor Lane, Selsey, PO20

- PROPERTY TYPE
Semi-Detached Bungalow
- BEDROOMS
3
- BATHROOMS
1
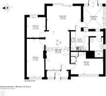
- SIZE
942 sq ft
88 sq m
- TENUREDescribes how you own a property. There are different types of tenure - freehold, leasehold, and commonhold.Read more about tenure in our glossary page.
Freehold
Key features
- Three Bedroom Semi-Detached Bungalow
- No Forward Chain
- Porch
- Living Room with Dining Area
- Conservatory
- Off Road Parking
Description
Upon entering, you are greeted by a useful porch (perfect for coats and shoes), which leads directly into the spacious living room with dining area. This welcoming space is ideal for both relaxing and entertaining, with ample room for a dining table and lounge furniture. The adjacent conservatory provides an additional reception area, flooded with natural light, creating a pleasant setting for reading or informal gatherings. The kitchen, three bedrooms and shower room complete the internal accommodation.
Externally, the bungalow includes an area of off road parking adjacent to the front garden, a valuable asset for residents and visitors alike. The rear garden features patios, a lawn, shrubs and borders.
This property represents an excellent opportunity to acquire a bungalow in need of a new lease of life in a sought-after location. Contact us today to book an internal viewing.
EPC Rating: E
Entrance Porch
Internal Porch
Living Room (3.18m x 5.1m)
Dining Room (3m x 4.5m)
Kitchen (2.4m x 2.57m)
Conservatory (2.52m x 3.22m)
Bedroom 1 (2.95m x 3.97m)
Bedroom 2 (2.31m x 5.06m)
Bedroom 3 (2.4m x 2.72m)
Shower Room (1.68m x 2.6m)
Parking - Off street
Brochures
Property Brochure- COUNCIL TAXA payment made to your local authority in order to pay for local services like schools, libraries, and refuse collection. The amount you pay depends on the value of the property.Read more about council Tax in our glossary page.
- Band: C
- PARKINGDetails of how and where vehicles can be parked, and any associated costs.Read more about parking in our glossary page.
- Off street
- GARDENA property has access to an outdoor space, which could be private or shared.
- Private garden
- ACCESSIBILITYHow a property has been adapted to meet the needs of vulnerable or disabled individuals.Read more about accessibility in our glossary page.
- Ask agent
Manor Lane, Selsey, PO20
Add an important place to see how long it'd take to get there from our property listings.
__mins driving to your place
Get an instant, personalised result:
- Show sellers you’re serious
- Secure viewings faster with agents
- No impact on your credit score
Your mortgage
Notes
Staying secure when looking for property
Ensure you're up to date with our latest advice on how to avoid fraud or scams when looking for property online.
Visit our security centre to find out moreDisclaimer - Property reference baf107b5-9490-4f4e-9508-06e1e1e5654c. The information displayed about this property comprises a property advertisement. Rightmove.co.uk makes no warranty as to the accuracy or completeness of the advertisement or any linked or associated information, and Rightmove has no control over the content. This property advertisement does not constitute property particulars. The information is provided and maintained by Henry Adams, Selsey. Please contact the selling agent or developer directly to obtain any information which may be available under the terms of The Energy Performance of Buildings (Certificates and Inspections) (England and Wales) Regulations 2007 or the Home Report if in relation to a residential property in Scotland.
*This is the average speed from the provider with the fastest broadband package available at this postcode. The average speed displayed is based on the download speeds of at least 50% of customers at peak time (8pm to 10pm). Fibre/cable services at the postcode are subject to availability and may differ between properties within a postcode. Speeds can be affected by a range of technical and environmental factors. The speed at the property may be lower than that listed above. You can check the estimated speed and confirm availability to a property prior to purchasing on the broadband provider's website. Providers may increase charges. The information is provided and maintained by Decision Technologies Limited. **This is indicative only and based on a 2-person household with multiple devices and simultaneous usage. Broadband performance is affected by multiple factors including number of occupants and devices, simultaneous usage, router range etc. For more information speak to your broadband provider.
Map data ©OpenStreetMap contributors.








