
3 bedroom semi-detached house for sale
Sarah Rand Road, Hadleigh, IP7

- PROPERTY TYPE
Semi-Detached
- BEDROOMS
3
- BATHROOMS
2
- SIZE
Ask agent
- TENUREDescribes how you own a property. There are different types of tenure - freehold, leasehold, and commonhold.Read more about tenure in our glossary page.
Freehold
Key features
- Sitting Room
- Conservatory
- Ground Floor Cloakroom
- En-Suite Shower Room
- Gardens
- Off Road Parking
Description
A beautifully presented three bedroom semi-detached house with a rear garden and off road parking and benefitting from solar panels. All forming part of the popular Weavers Meadow Development, located within walking distance of the centre of town.
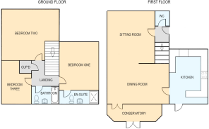
As you enter the property, there is a hallway with doors to the sitting room and cloakroom and a staircase rising to the first floor. The sitting room has a window to the front, under stairs storage cupboard and an opening through to the dining room, which has a window to the rear overlooking the garden, door to he kitchen, built-in bench, which also houses the water softener and there are French doors leading through to the conservatory, which has windows to the rear overlooking the garden and French doors overlooking and leading out to the same. The kitchen has windows to the front and comprises a one and a half bowl sink unit inset into a range of modern work surfaces with stylish cupboards and drawers below, matching wall mounted cupboards, integrated oven with a burner gas hob and extractor above, space for an American fridge/freezer, space and plumbing for dishwasher and washing machine, breakfast bar and door leading out to the rear garden.
On the first floor, there is a spacious landing with an airing cupboard, access to the roof space and doors to the bedrooms and bathroom. Bedroom 1 has a window to the front overlooking the play area and a door through to an en-suite shower room, which has a white suite comprising a low level wc, wash basin and shower enclosure. Bedroom 2 is a also a double room with a window to the front and a storage cupboard and bedroom 3 is an L-shaped room with a window to the rear overlooking the garden. The bathroom has a white suite comprising a low level wc, wash basin and a panelled bath with a shower over.
Outside, to the front, there is a driveway providing off road parking for one vehicle and a garden laid to lawn and side access to the rear garden, which is mainly laid to lawn with a patio seating area and a garden shed with light and power connected. All bounded by panelled fencing.
EPC Rating: B
Sitting Room
4.95m x 3.15m
Dining Room
4.04m x 3.15m
Conservatory
3.23m x 2.01m
Kitchen
5m x 2.79m
Bedroom 1
3.73m x 3.02m
Bedroom 2
4.06m x 3.68m
Bedroom 3
4.47m x 2.13m
Brochures
Property Brochure- COUNCIL TAXA payment made to your local authority in order to pay for local services like schools, libraries, and refuse collection. The amount you pay depends on the value of the property.Read more about council Tax in our glossary page.
- Band: C
- PARKINGDetails of how and where vehicles can be parked, and any associated costs.Read more about parking in our glossary page.
- Yes
- GARDENA property has access to an outdoor space, which could be private or shared.
- Rear garden
- ACCESSIBILITYHow a property has been adapted to meet the needs of vulnerable or disabled individuals.Read more about accessibility in our glossary page.
- Ask agent
Energy performance certificate - ask agent
Sarah Rand Road, Hadleigh, IP7
Add an important place to see how long it'd take to get there from our property listings.
__mins driving to your place
Get an instant, personalised result:
- Show sellers you’re serious
- Secure viewings faster with agents
- No impact on your credit score
Your mortgage
Notes
Staying secure when looking for property
Ensure you're up to date with our latest advice on how to avoid fraud or scams when looking for property online.
Visit our security centre to find out moreDisclaimer - Property reference 36a7d34c-27b7-403e-ab54-42022cf0d6a9. The information displayed about this property comprises a property advertisement. Rightmove.co.uk makes no warranty as to the accuracy or completeness of the advertisement or any linked or associated information, and Rightmove has no control over the content. This property advertisement does not constitute property particulars. The information is provided and maintained by Frost and Partners, Hadleigh. Please contact the selling agent or developer directly to obtain any information which may be available under the terms of The Energy Performance of Buildings (Certificates and Inspections) (England and Wales) Regulations 2007 or the Home Report if in relation to a residential property in Scotland.
*This is the average speed from the provider with the fastest broadband package available at this postcode. The average speed displayed is based on the download speeds of at least 50% of customers at peak time (8pm to 10pm). Fibre/cable services at the postcode are subject to availability and may differ between properties within a postcode. Speeds can be affected by a range of technical and environmental factors. The speed at the property may be lower than that listed above. You can check the estimated speed and confirm availability to a property prior to purchasing on the broadband provider's website. Providers may increase charges. The information is provided and maintained by Decision Technologies Limited. **This is indicative only and based on a 2-person household with multiple devices and simultaneous usage. Broadband performance is affected by multiple factors including number of occupants and devices, simultaneous usage, router range etc. For more information speak to your broadband provider.
Map data ©OpenStreetMap contributors.








