Anchor Field, Ringmer
- PROPERTY TYPE
Plot
- BEDROOMS
2
- BATHROOMS
1
- SIZE
775 sq ft
72 sq m
Description
The proposed new house is an end-of-terrace property comprising two double bedrooms, with a front aspect from the second bedroom overlooking Anchor Field and a southern aspect from the main bedroom, which is positioned adjacent to the new bathroom.
On the ground floor, the accommodation includes an entrance hall with a downstairs cloakroom, a new front kitchen, and a full-width 19`7" rear sitting room opening onto the south-facing rear garden, together with a front garden facing Anchor Field.
Anchor Field is in an ideal central village location, just a short walk from the doctors surgery, pharmacy and an excellent shopping parade. The village green is just beyond the shops, with the parish church, village hall and one of the village`s three pubs, The Anchor Inn, surrounding. The property is also very close to the primary and secondary schools and within easy reach of a bus stop with regular services to Lewes and Eastbourne. Lewes is just 3 miles distant, with it`s excellent range of shopping facilities including 3 superstores, many independent shops, cafes, pubs and restaurants, along with the mainline Railway Station (London Victoria 65 mins, London Bridge 70 mins & Brighton 20 mins), adjacent to the Depot Cinema.
PROPOSED NEW HOUSE
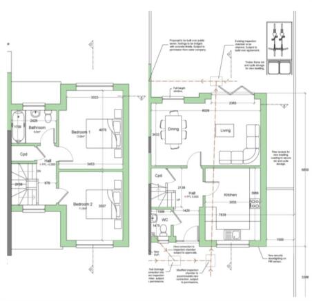
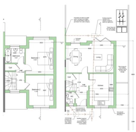
FIRST FLOOR
LANDING with stairs to ground floor.
BEDROOM 1 (DOUBLE) 13`4 x 11`3.
Fitted double wardrobe cupboard. Double glazed widow to Anchor Field. Radiator.
BEDROOM 2 (DOUBLE) 11`6 x 11`3.
Fitted double wardrobe cupboard. Double glazed widow to rear garden and the south. Radiator.
BATHROOM 7`9 x 5`6.
Panelled bath, pedestal wash basin and low level W.C.
GROUND FLOOR
ENTRANCE HALL from the front garden of Anchor Field. Fitted understairs cupboard.
CLOAKROOM
Low level w.c. and wash basin.
SITTING ROOM/FAMILY/DINING AREA 19`7 x 11`3 overall.
Sitting room area: 13` x 11`3
Double glazed window to Anchor Field, radiator and double door to:-
Family/dining room area: 11`3 x 9`8
Bifold doors to rear garden. Radiator.
FITTED KITCHEN 13` x 9`8
Sink unit, electric hob & oven, dishwasher, fitted extractor fan. Worktops with cupboards and drawers.
OUTSIDE
GARDENS
There is a front area of garden with side walkway to a good sized south facing rear garden.
what3words /// scorecard.presuming.resolves
Notice
Please note we have not tested any apparatus, fixtures, fittings, or services. Interested parties must undertake their own investigation into the working order of these items. All measurements are approximate and photographs provided for guidance only.
Brochures
Web DetailsAnchor Field, Ringmer
NEAREST STATIONS
Distances are straight line measurements from the centre of the postcode- Glynde Station2.3 miles
- Lewes Station2.6 miles
- Cooksbridge Station3.1 miles
Notes
Disclaimer - Property reference 1352_CWYC. The information displayed about this property comprises a property advertisement. Rightmove.co.uk makes no warranty as to the accuracy or completeness of the advertisement or any linked or associated information, and Rightmove has no control over the content. This property advertisement does not constitute property particulars. The information is provided and maintained by Charles Wycherley Independent Estate Agents, Lewes. Please contact the selling agent or developer directly to obtain any information which may be available under the terms of The Energy Performance of Buildings (Certificates and Inspections) (England and Wales) Regulations 2007 or the Home Report if in relation to a residential property in Scotland.
Map data ©OpenStreetMap contributors.





