
St. Marys Road, Belmont, Durham, DH1

- PROPERTY TYPE
Semi-Detached
- BEDROOMS
3
- BATHROOMS
1
- SIZE
Ask agent
- TENUREDescribes how you own a property. There are different types of tenure - freehold, leasehold, and commonhold.Read more about tenure in our glossary page.
Freehold
Key features
- Attractive And Improved 3 Bedroom Semi Detached
- Private Outlook To Rear
- Refitted Kitchen and Bathroom
- Spacious Accommodation
- Popular Location
- No Chain
Description
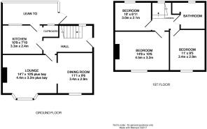
The property has been improved by the sellers and has accommodation comprising: entrance hallway with stairs to the first floor, lounge with bay window opens through to a dining room, kitchen with built in stainless steel oven, electric hob with extractor fan over, built in dishwasher, lean to with light and power and door to the garden. To the first floor there are three bedrooms, one of the bedrooms has fitted wardrobes with sliding doors and a bathroom with a replacement white suite comprising low level wc, wash hand basin, and bath with mains fed wall mounted shower over, tiled wall. Externally there is a block paved driveway to the front and to the rear of the property there is a pleasant enclosed garden, mainly laid to lawn with a patio area and a pleasant outlook overlooking the church to the rear enclosed with fencing and a a stone wall to the rear and a useful outside tap.
There are a range of local shops and amenities available within Carrville as well as Belmont, with a more comprehensive range of shopping and recreational facilities and amenities available within Durham City Centre which lies approximately 3 miles distant. Carrville is well placed for commuting purposes as it lies adjacent to the A1(M) Motorway which provides good road links to both North and South.
MATERIAL INFORMATION:
In compliance with the Consumer Protection from Unfair Trading Regulations 2008 and National Trading Standards Estate and Letting Agency Team’s Material information in property listings Guidance
PART A
Local Authority – Durham County Council
Council Tax Band – B
Tenure – Freehold
PART B
Property Type – Semi detached
Property Construction – Standard
Number & Types of Rooms – Please refer to the details and floorplan, all measurements taken being the maximum dimensions available between internal walls
Gas Supply- Mains
Electricity supply – Mains
Water Supply – Mains (metered)
Sewerage – Mains
Heating – Gas fired central heating via radiators
Estimated Mobile phone coverage – Please refer to the Ofcom Website -
Estimated Broadband Download speeds – please refer to the Ofcom Website –
Parking- Driveway
PART C
Building Safety – (The Vendor is not aware of any Building Safety issues. However, we would recommend that the purchaser engages the services of a chartered surveyor to confirm)
Restrictions – Covenants which affect the property are contained within the Land Registry Title Register which is available for inspection.
Selective licencing area – no
Article 4 Planning Restricted area – NA
Conservation Area – NA
Rights & Easements- None
Flood risk – Rivers and seas: Very low Surface water: Very low
Coastal Erosion – N/A
Protected Trees - NA
Planning Permission – Nothing in the local area to affect this property that we are aware of
Accessibility/Adaptations – The property has not been altered for accessibility
Mining Area – Coal Mining Reporting Area, further searches may be required.
A selection of contents could be available via separate negotiation
No other Material Information disclosures have been made by the vendor. This information has been compiled in good faith using resources readily available online and by enquiry of the vendor prior to marketing. However, such information could change after compilation of the data, so J W Wood cannot be held liable for any changes post compilation or any accidental errors or omissions.
Furthermore, J W Wood are not legally qualified and conveyancing documents are often complicated, necessitating judgement on our part about which parts are “Material Information” to be disclosed. If any information provided, or other matter relating to the property, is of particular importance to you, please do seek verification from a legal advisor before committing to expenditure.
HMRC supervises the legal obligation for all estate agents to conduct identity checks on their customers, this includes buyers when their offer is accepted. This must be completed, per purchaser, who in the transaction will result in being the legal owner(s) of the property. There is a £30 (inc VAT) administration fee per individual purchaser, for these checks.
Brochures
Web Details- COUNCIL TAXA payment made to your local authority in order to pay for local services like schools, libraries, and refuse collection. The amount you pay depends on the value of the property.Read more about council Tax in our glossary page.
- Band: B
- PARKINGDetails of how and where vehicles can be parked, and any associated costs.Read more about parking in our glossary page.
- Yes
- GARDENA property has access to an outdoor space, which could be private or shared.
- Yes
- ACCESSIBILITYHow a property has been adapted to meet the needs of vulnerable or disabled individuals.Read more about accessibility in our glossary page.
- Ask agent
St. Marys Road, Belmont, Durham, DH1
Add an important place to see how long it'd take to get there from our property listings.
__mins driving to your place
Get an instant, personalised result:
- Show sellers you’re serious
- Secure viewings faster with agents
- No impact on your credit score
Affordability
Notes
Staying secure when looking for property
Ensure you're up to date with our latest advice on how to avoid fraud or scams when looking for property online.
Visit our security centre to find out moreDisclaimer - Property reference DUR250929. The information displayed about this property comprises a property advertisement. Rightmove.co.uk makes no warranty as to the accuracy or completeness of the advertisement or any linked or associated information, and Rightmove has no control over the content. This property advertisement does not constitute property particulars. The information is provided and maintained by J W Wood, Durham City. Please contact the selling agent or developer directly to obtain any information which may be available under the terms of The Energy Performance of Buildings (Certificates and Inspections) (England and Wales) Regulations 2007 or the Home Report if in relation to a residential property in Scotland.
*This is the average speed from the provider with the fastest broadband package available at this postcode. The average speed displayed is based on the download speeds of at least 50% of customers at peak time (8pm to 10pm). Fibre/cable services at the postcode are subject to availability and may differ between properties within a postcode. Speeds can be affected by a range of technical and environmental factors. The speed at the property may be lower than that listed above. You can check the estimated speed and confirm availability to a property prior to purchasing on the broadband provider's website. Providers may increase charges. The information is provided and maintained by Decision Technologies Limited. **This is indicative only and based on a 2-person household with multiple devices and simultaneous usage. Broadband performance is affected by multiple factors including number of occupants and devices, simultaneous usage, router range etc. For more information speak to your broadband provider.
Map data ©OpenStreetMap contributors.






