Kings Road, Chatham

- PROPERTY TYPE
End of Terrace
- BEDROOMS
2
- BATHROOMS
1
- SIZE
Ask agent
- TENUREDescribes how you own a property. There are different types of tenure - freehold, leasehold, and commonhold.Read more about tenure in our glossary page.
Freehold
Key features
- INVESTMENT OPPORTUNITY
- IN NEED OF MODERNISATION
- TWO DOUBLE BEDROOMS
- TWO RECEPTION ROOMS
- FIRST FLOOR BATHROOM (OFF SECOND BEDROOM)
- POPULAR RESIDENTIAL LOCATION
- NO CHAIN!
- EPC AWAITED
- COUNCIL TAX BAND B
- FREEHOLD
Description
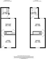
The layout briefly comprises of: Lounge, separate dining room, kitchen and bathroom W/C. To the first floor there are two double bedrooms.
Located close to local shops and amenities, open green spaces and parks, schools for all age groups are also nearby. The Medway hospital and station with fast trains to London are a short distance away, as is Chatham town centre with its vast array of shopping, dining and leisure facilities, whilst all A2/M2/M20 road links are a short drive away.
Council Tax Band B. EPC Grade Awaited
Lounge - 3.45 x 3 (11'3" x 9'10") -
Dining Room - 3.45 3 (11'3" 9'10") -
Kitchen - 2.47 x 1.88 (8'1" x 6'2") -
First Floor Landing -
Bedroom - 3.45 x 3 (11'3" x 9'10") -
Bedroom - 3.45 x 3 (11'3" x 9'10") -
Bathroom W/C - 2.47 x 1.88 (8'1" x 6'2") -
Rear Garden - Mainly laid to law.
Agents Note - We endeavour to make our sales particulars accurate and reliable, however, they do not constitute or form part of an offer or any contract and none is to be relied upon as statements of representation or fact. Any services, systems and appliances listed in this specification have not been tested by us and no guarantee as to their operating ability or efficiency is given. All measurements have been taken as a guide to prospective buyers only, If you require clarification or further information on any points, please contact us. Fixtures and fittings other than those mentioned are to be agreed with the seller by separate negotiation.
Agents Note - Greenleaf work closely with qualified, trusted and competitive mortgage consultants and local solicitors, enabling clients the time-saving opportunity of keeping all aspects of buying and selling a property under one roof. For this service we receive a fee of between one and two hundred pounds per referral.
Brochures
Kings Road, ChathamBrochure- COUNCIL TAXA payment made to your local authority in order to pay for local services like schools, libraries, and refuse collection. The amount you pay depends on the value of the property.Read more about council Tax in our glossary page.
- Ask agent
- PARKINGDetails of how and where vehicles can be parked, and any associated costs.Read more about parking in our glossary page.
- Ask agent
- GARDENA property has access to an outdoor space, which could be private or shared.
- Yes
- ACCESSIBILITYHow a property has been adapted to meet the needs of vulnerable or disabled individuals.Read more about accessibility in our glossary page.
- Ask agent
Energy performance certificate - ask agent
Kings Road, Chatham
Add an important place to see how long it'd take to get there from our property listings.
__mins driving to your place
Get an instant, personalised result:
- Show sellers you’re serious
- Secure viewings faster with agents
- No impact on your credit score

Your mortgage
Notes
Staying secure when looking for property
Ensure you're up to date with our latest advice on how to avoid fraud or scams when looking for property online.
Visit our security centre to find out moreDisclaimer - Property reference 34344436. The information displayed about this property comprises a property advertisement. Rightmove.co.uk makes no warranty as to the accuracy or completeness of the advertisement or any linked or associated information, and Rightmove has no control over the content. This property advertisement does not constitute property particulars. The information is provided and maintained by Greenleaf Property Services Ltd, Rochester. Please contact the selling agent or developer directly to obtain any information which may be available under the terms of The Energy Performance of Buildings (Certificates and Inspections) (England and Wales) Regulations 2007 or the Home Report if in relation to a residential property in Scotland.
*This is the average speed from the provider with the fastest broadband package available at this postcode. The average speed displayed is based on the download speeds of at least 50% of customers at peak time (8pm to 10pm). Fibre/cable services at the postcode are subject to availability and may differ between properties within a postcode. Speeds can be affected by a range of technical and environmental factors. The speed at the property may be lower than that listed above. You can check the estimated speed and confirm availability to a property prior to purchasing on the broadband provider's website. Providers may increase charges. The information is provided and maintained by Decision Technologies Limited. **This is indicative only and based on a 2-person household with multiple devices and simultaneous usage. Broadband performance is affected by multiple factors including number of occupants and devices, simultaneous usage, router range etc. For more information speak to your broadband provider.
Map data ©OpenStreetMap contributors.




