
3 bedroom terraced house for sale
31-33 North High Street, Portsoy, Banff, AB45 2PA

- PROPERTY TYPE
Terraced
- BEDROOMS
3
- BATHROOMS
2
- SIZE
Ask agent
- TENUREDescribes how you own a property. There are different types of tenure - freehold, leasehold, and commonhold.Read more about tenure in our glossary page.
Freehold
Description
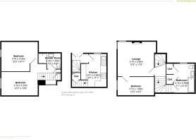
Access to the property is on the middle floor to the hallway, which incorporates the kitchen, fitted with ample wall and base-mounted units with contrasting worktops and standalone appliances. Stairs from the kitchen lead to the ground floor, which was formerly the shop, where there are two good-sized rooms currently set out as a double bedroom and dining room. Also located on the ground floor is a family shower room and a utility cupboard. Back to the hallway, where you go up to a half landing, where you will find the spacious lounge with dual aspect windows that flood the room with natural light, with a feature fireplace completing this room.
From the lounge, you have access to a single bedroom currently being used as a dressing room. Continue up the stairs to a three-piece family bathroom; in addition, there are ample storage cupboards throughout the property.
Free on-street parking is available at the harbour, less than 50 metres from the property. However, a shared lane with one neighbour from the front leads to a private garden with a high perimeter wall with vehicle access and parking from Barbank Street.
The garden is laid mostly to lawn with borders containing sporadic planting of mature shrubs and seasonal flowers. The summer house is a perfect venue for some al-fresco dining, entertaining and enjoying the sun. The private garden with its huge walls further provides a safe environment for children and pets alike.
Presented to the market in immaculate walk-in condition, an ideal purchase for those looking for a one-of-a-kind property. A fantastic second home, or with the demand for holiday homes and Airbnb's on the increase, it could be a very lucrative purchase. Viewing is highly recommended and the only way to fully appreciate the location, the property and the garden, you will not be disappointed.
Electricity Supply: Eon Next
Water Supply: Scottish Water
Sewerage: Scottish Water
Broadband / Mobile Coverage: EE, Full 4G Coverage
Brochures
Brochure 1- COUNCIL TAXA payment made to your local authority in order to pay for local services like schools, libraries, and refuse collection. The amount you pay depends on the value of the property.Read more about council Tax in our glossary page.
- Ask agent
- PARKINGDetails of how and where vehicles can be parked, and any associated costs.Read more about parking in our glossary page.
- Ask agent
- GARDENA property has access to an outdoor space, which could be private or shared.
- Yes
- ACCESSIBILITYHow a property has been adapted to meet the needs of vulnerable or disabled individuals.Read more about accessibility in our glossary page.
- Ask agent
Energy performance certificate - ask agent
31-33 North High Street, Portsoy, Banff, AB45 2PA
Add an important place to see how long it'd take to get there from our property listings.
__mins driving to your place
Get an instant, personalised result:
- Show sellers you’re serious
- Secure viewings faster with agents
- No impact on your credit score
Your mortgage
Notes
Staying secure when looking for property
Ensure you're up to date with our latest advice on how to avoid fraud or scams when looking for property online.
Visit our security centre to find out moreDisclaimer - Property reference MFL5242566. The information displayed about this property comprises a property advertisement. Rightmove.co.uk makes no warranty as to the accuracy or completeness of the advertisement or any linked or associated information, and Rightmove has no control over the content. This property advertisement does not constitute property particulars. The information is provided and maintained by McEwan Fraser Legal, Aberdeen. Please contact the selling agent or developer directly to obtain any information which may be available under the terms of The Energy Performance of Buildings (Certificates and Inspections) (England and Wales) Regulations 2007 or the Home Report if in relation to a residential property in Scotland.
*This is the average speed from the provider with the fastest broadband package available at this postcode. The average speed displayed is based on the download speeds of at least 50% of customers at peak time (8pm to 10pm). Fibre/cable services at the postcode are subject to availability and may differ between properties within a postcode. Speeds can be affected by a range of technical and environmental factors. The speed at the property may be lower than that listed above. You can check the estimated speed and confirm availability to a property prior to purchasing on the broadband provider's website. Providers may increase charges. The information is provided and maintained by Decision Technologies Limited. **This is indicative only and based on a 2-person household with multiple devices and simultaneous usage. Broadband performance is affected by multiple factors including number of occupants and devices, simultaneous usage, router range etc. For more information speak to your broadband provider.
Map data ©OpenStreetMap contributors.





