
Cotterells, Hemel Hempstead, HP1

- PROPERTY TYPE
Semi-Detached
- BEDROOMS
3
- BATHROOMS
1
- SIZE
Ask agent
- TENUREDescribes how you own a property. There are different types of tenure - freehold, leasehold, and commonhold.Read more about tenure in our glossary page.
Freehold
Key features
- In need of updating and modernisation
- Close to local amenities
- Semi detached 3 double bedroom character home
- Lounge dining room
- Kitchen
- Utility
- Bathroom
- Garden
- NO UPPER CHAIN
- Viewing is a MUST
Description
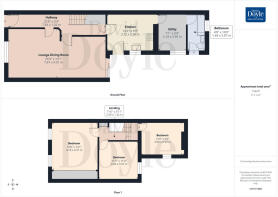
The ground floor is arranged with a generous lounge dining room, a fitted kitchen, utility and a downstairs bathroom. The ground floor is completed with a welcoming entrance hall with stairs leading to the first floor.
The first floor offers 3 good sized bed with the primary bedroom benefiting from mirror fronted wardrobes to one wall.
The spacious rear garden offers an excellent outside area.
With NO UPPER CHAIN viewing is highly recommended.
Being located in close proximity of ‘Boxmoor Village' this property is within easy reach of its range of shopping facilities and amenities, including the Village Hall and Playhouse, restaurants, public houses and Leisure Centre. The Moor is a beautiful open space with a cricket pitch and the Grand Union Canal and River Bulbourne running through it. The mainline railway station offer an excellent service to London Euston (26 mins).
Hemel Hempstead with its Malls of Riverside and The Marlowes offers a full range of shopping facilities and other amenities. For the commuter the M1 and M25 are close at hand.
Disclaimer
David Doyle Estate Agents (DD), for themselves and the vendors, give notice that: These particulars and floorplans are for general guidance only and do not form part of any offer or contract. All descriptions, dimensions, permissions, and other details are given in good faith but must be independently verified. Fixtures, fittings, services, plant and equipment noted were present at first inspection but have not been tested, and no warranty is given as to condition or suitability. Information on council tax, rates, or planning use is informal; purchasers or tenants must confirm with the Local Authority. No employee of DD has authority to make or give any representation or contract. DD accept no liability for loss arising from use of these particulars or from viewing the property. Prices are exclusive of VAT unless stated and are subject to contract. Some developments may have management charges; solicitors to confirm any liabilities.
- COUNCIL TAXA payment made to your local authority in order to pay for local services like schools, libraries, and refuse collection. The amount you pay depends on the value of the property.Read more about council Tax in our glossary page.
- Band: D
- PARKINGDetails of how and where vehicles can be parked, and any associated costs.Read more about parking in our glossary page.
- Ask agent
- GARDENA property has access to an outdoor space, which could be private or shared.
- Yes
- ACCESSIBILITYHow a property has been adapted to meet the needs of vulnerable or disabled individuals.Read more about accessibility in our glossary page.
- Ask agent
Cotterells, Hemel Hempstead, HP1
Add an important place to see how long it'd take to get there from our property listings.
__mins driving to your place
Get an instant, personalised result:
- Show sellers you’re serious
- Secure viewings faster with agents
- No impact on your credit score


Your mortgage
Notes
Staying secure when looking for property
Ensure you're up to date with our latest advice on how to avoid fraud or scams when looking for property online.
Visit our security centre to find out moreDisclaimer - Property reference RX681142. The information displayed about this property comprises a property advertisement. Rightmove.co.uk makes no warranty as to the accuracy or completeness of the advertisement or any linked or associated information, and Rightmove has no control over the content. This property advertisement does not constitute property particulars. The information is provided and maintained by David Doyle Estate Agents, Boxmoor. Please contact the selling agent or developer directly to obtain any information which may be available under the terms of The Energy Performance of Buildings (Certificates and Inspections) (England and Wales) Regulations 2007 or the Home Report if in relation to a residential property in Scotland.
*This is the average speed from the provider with the fastest broadband package available at this postcode. The average speed displayed is based on the download speeds of at least 50% of customers at peak time (8pm to 10pm). Fibre/cable services at the postcode are subject to availability and may differ between properties within a postcode. Speeds can be affected by a range of technical and environmental factors. The speed at the property may be lower than that listed above. You can check the estimated speed and confirm availability to a property prior to purchasing on the broadband provider's website. Providers may increase charges. The information is provided and maintained by Decision Technologies Limited. **This is indicative only and based on a 2-person household with multiple devices and simultaneous usage. Broadband performance is affected by multiple factors including number of occupants and devices, simultaneous usage, router range etc. For more information speak to your broadband provider.
Map data ©OpenStreetMap contributors.






