3 bedroom semi-detached house for sale
Falcon Way, Guisborough, North Yorkshire, TS14

- PROPERTY TYPE
Semi-Detached
- BEDROOMS
3
- BATHROOMS
1
- SIZE
Ask agent
- TENUREDescribes how you own a property. There are different types of tenure - freehold, leasehold, and commonhold.Read more about tenure in our glossary page.
Ask agent
Key features
- 3 Bedrooms
- Detached garage
- Excellent location
- Recently renovated roof
Description
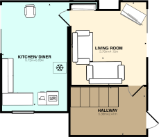
Upon entering the property, you are welcomed into a bright and practical entrance hallway with useful built-in storage. A staircase leads to the first floor while doors open into the main living accommodation. The generous lounge is both warm and inviting, featuring neutral décor and ample space for comfortable seating, making it the perfect space to relax and unwind.
To the rear of the property is the modern open-plan kitchen and dining area, fitted with a stylish range of wall and base units, complementary work surfaces and integrated appliances. There is space for a dining table, making it an ideal hub for family meals and entertaining. French doors open directly onto the rear garden, allowing natural light to flood in and providing seamless indoor-outdoor living.
Upstairs, the property boasts three well-proportioned bedrooms. The main bedroom is a spacious double with ample room for freestanding furniture. The second bedroom is another generous double, while the third bedroom makes a perfect child's room, guest room or home office. The family bathroom is modern and stylish, featuring a contemporary suite with a shower over the bath, vanity unit and WC, all finished with attractive tiled walls and flooring.
Externally, the property enjoys a well-proportioned and private rear garden, designed for both practicality and relaxation. A spacious paved patio provides the ideal setting for outdoor dining and entertaining, while a neatly maintained lawn offers additional space for families or keen gardeners. To the rear of the garden sits a detached brick-built garage with power and lighting, offering secure parking or excellent storage. Further complemented by a shed/lean-to with electricity, this versatile space is perfect for use as a workshop,or hobby room. The garden is fully enclosed, creating a safe and private outdoor environment.
Additional benefits include gas central heating, uPVC double glazing throughout, the recently replaced roof, and the well-maintained, annually serviced boiler, all adding to the efficiency and reliability of the home.
This is a fantastic opportunity to acquire a spacious, well-presented home that is ready to move straight into, ideal for families, first-time buyers and professionals alike.
- COUNCIL TAXA payment made to your local authority in order to pay for local services like schools, libraries, and refuse collection. The amount you pay depends on the value of the property.Read more about council Tax in our glossary page.
- Ask agent
- PARKINGDetails of how and where vehicles can be parked, and any associated costs.Read more about parking in our glossary page.
- Yes
- GARDENA property has access to an outdoor space, which could be private or shared.
- Yes
- ACCESSIBILITYHow a property has been adapted to meet the needs of vulnerable or disabled individuals.Read more about accessibility in our glossary page.
- Ask agent
Falcon Way, Guisborough, North Yorkshire, TS14
Add an important place to see how long it'd take to get there from our property listings.
__mins driving to your place
Get an instant, personalised result:
- Show sellers you’re serious
- Secure viewings faster with agents
- No impact on your credit score

Your mortgage
Notes
Staying secure when looking for property
Ensure you're up to date with our latest advice on how to avoid fraud or scams when looking for property online.
Visit our security centre to find out moreDisclaimer - Property reference 18falconway. The information displayed about this property comprises a property advertisement. Rightmove.co.uk makes no warranty as to the accuracy or completeness of the advertisement or any linked or associated information, and Rightmove has no control over the content. This property advertisement does not constitute property particulars. The information is provided and maintained by Dwela Limited, Guisborough. Please contact the selling agent or developer directly to obtain any information which may be available under the terms of The Energy Performance of Buildings (Certificates and Inspections) (England and Wales) Regulations 2007 or the Home Report if in relation to a residential property in Scotland.
*This is the average speed from the provider with the fastest broadband package available at this postcode. The average speed displayed is based on the download speeds of at least 50% of customers at peak time (8pm to 10pm). Fibre/cable services at the postcode are subject to availability and may differ between properties within a postcode. Speeds can be affected by a range of technical and environmental factors. The speed at the property may be lower than that listed above. You can check the estimated speed and confirm availability to a property prior to purchasing on the broadband provider's website. Providers may increase charges. The information is provided and maintained by Decision Technologies Limited. **This is indicative only and based on a 2-person household with multiple devices and simultaneous usage. Broadband performance is affected by multiple factors including number of occupants and devices, simultaneous usage, router range etc. For more information speak to your broadband provider.
Map data ©OpenStreetMap contributors.





