
Commercial property for rent
Bromley Road, Congleton, CW12
Letting details
- Let available date:
- Ask agent
- Let type:
- Long term
- Furnish type:
- Unfurnished
- PROPERTY TYPE
Commercial Property
- SIZE
Ask agent
Key features
- OFFICE UNITS AVAILABLE FROM £123.27 PCM PLUS VAT
- WITHIN CLOSE PROXIMITY OF CONGLETON TOWN CENTRE
- READY FOR IMMEDIATE OCCUPATION
- FLEXIBLE COMPETITIVE LEASE TERMS
- FUNCTIONAL VALUE FOR MONEY
- DEDICATED ON-SITE PARKING SPACES
Description
On the instructions of Berisfords
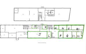
TO LET - Individual offices from 96.88 ft² (9m²) to 1013.85 ft² (94.19m²) (See chart below for availability)
First floor offices: Office plan area ft² m² Rental per calendar month plus vat I 97 9 £123.27 AVAILABLE J 872 81.07 £1,108.17 AVAILABLE K 125 11.58 £158.85 AVAILABLE L 190 17.68 £241.46 Let M 124 11.50 £157.58 Let N 249 23.12 £316.44 Let O 137.55 12.78 £174.10 Let P 192.59 17.89 £244.00 Let
Q
376.62
34.99
£477.83
Let
R1
223
20.72
£283.40
Let
R2 261 24.25 £331.69 AVAILABLE R3 352 32.70 £447.33 Let
LOCATION
Congleton is strategically located between the industrial regions of the Potteries to the south and Manchester to the north, which has led to an expansion in industrial and office activity. Intercity rail services can be accessed from Congleton, Macclesfield , Crewe and Wilmslow.
Congleton is a fine old mill town located amid beautiful Cheshire countryside with a rich heritage and a long history of industrial endeavour. The heart of the community is its vibrant town centre which also accommodates much of the towns business environment.
The property is situated approximately a third of a mile to the north of Congleton Centre. The nearest motorway is the M6 Junction 17, some 6 miles to the west via the A534.
DESCRIPTION
The Bromley Centre comprises a former mill building which has been substantially converted and modernised to provide functional and adaptable office accommodation at first floor level with quasi office/storage/workshop facilities on the ground floor.
Vehicular and pedestrian access to the building is from Bromley Road with dedicated car parking at ground floor level immediately adjacent to the building.
LEASE
All inclusive rent covering business rates and utilities. Telephone/internet and business contents insurance will be the responsibility of the tenant.
LEGAL COSTS
Each party to be responsible for their own legal costs included in the transaction.
VIEWING
Strictly by appointment through the sole letting agent TIMOTHY A BROWN.
Brochures
Full DetailsBromley Road, Congleton, CW12
NEAREST STATIONS
Distances are straight line measurements from the centre of the postcode- Congleton Station0.6 miles
- Alsager Station6.4 miles
Notes
Disclaimer - Property reference 6975577. The information displayed about this property comprises a property advertisement. Rightmove.co.uk makes no warranty as to the accuracy or completeness of the advertisement or any linked or associated information, and Rightmove has no control over the content. This property advertisement does not constitute property particulars. The information is provided and maintained by Timothy A Brown, Congleton. Please contact the selling agent or developer directly to obtain any information which may be available under the terms of The Energy Performance of Buildings (Certificates and Inspections) (England and Wales) Regulations 2007 or the Home Report if in relation to a residential property in Scotland.
Map data ©OpenStreetMap contributors.









