
Windermere Terrace, Liverpool, L8

- PROPERTY TYPE
Ground Flat
- BEDROOMS
2
- BATHROOMS
1
- SIZE
Ask agent
Key features
- Exceptional Two Bedroom Duplex Apartment
- Located In The Leafy Suburb Of Princes Park
- Immaculately Presented & Full Of Character
- Opportunity For Those Looking To Downsize
- Sensational Kitchen, Dining & Living Space
- Two Bright & Beautifully Finished Bedrooms
- Contemporary Bathroom & Additional WC
- Balcony With Scenic Views Over The Park
Description
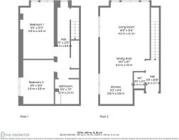
Tucked away in a peaceful location in the leafy and desirable suburb of Princes Park, L8, is this exceptional two bedroom duplex apartment, proudly presented to the sales market courtesy of appointed agents Move Residential. Occupying a corner plot, the property boasts well-proportioned accommodation set over two floors and showcases immaculately presented interiors which have been finished to high specifications throughout. Boasting a plethora of charming original features, this apartment offers the perfect blend of character and modern living, presenting an opportunity not to be missed for those looking to downsize.
Accessed via a well-maintained communal entrance, you are welcomed into the property by an inviting entrance hall which leads through to a showstopping open plan kitchen, dining and living space. Enjoying huge windows which flood the room with natural light, and finished in a refined décor which complements the attractive herringbone style flooring and ornate coving, this presents an elegant setting for relaxing and entertaining guests. The kitchen is complete with a range of stylish fitted base and wall units, complementary worktops providing plentiful surface space, and a selection of integrated appliances. This space further benefits from access out to a fabulous balcony which wraps around the exterior of the apartment and offers scenic views across the park, providing a serene spot for soaking up the sun and enjoying al-fresco dining. Concluding this floor is a convenient WC.
Descending the staircase to the lower ground level you will discover the sleeping accommodation, consisting of two generously sized and beautifully presented double bedrooms, each impeccably presented featuring plush carpeting throughout. Adding the finishing touch to the interior of this wonderful apartment is a contemporary style three-piece family bathroom suite.
Externally, residents further benefit from secure gated access and allocated parking.
EPC Rating: D
- COUNCIL TAXA payment made to your local authority in order to pay for local services like schools, libraries, and refuse collection. The amount you pay depends on the value of the property.Read more about council Tax in our glossary page.
- Band: C
- PARKINGDetails of how and where vehicles can be parked, and any associated costs.Read more about parking in our glossary page.
- Yes
- GARDENA property has access to an outdoor space, which could be private or shared.
- Ask agent
- ACCESSIBILITYHow a property has been adapted to meet the needs of vulnerable or disabled individuals.Read more about accessibility in our glossary page.
- Ask agent
Energy performance certificate - ask agent
Windermere Terrace, Liverpool, L8
Add an important place to see how long it'd take to get there from our property listings.
__mins driving to your place
Get an instant, personalised result:
- Show sellers you’re serious
- Secure viewings faster with agents
- No impact on your credit score

Affordability
Notes
Staying secure when looking for property
Ensure you're up to date with our latest advice on how to avoid fraud or scams when looking for property online.
Visit our security centre to find out moreDisclaimer - Property reference a07521b9-0681-4f0c-a7bd-64bbbc6aedf6. The information displayed about this property comprises a property advertisement. Rightmove.co.uk makes no warranty as to the accuracy or completeness of the advertisement or any linked or associated information, and Rightmove has no control over the content. This property advertisement does not constitute property particulars. The information is provided and maintained by Move Residential, Mossley Hill. Please contact the selling agent or developer directly to obtain any information which may be available under the terms of The Energy Performance of Buildings (Certificates and Inspections) (England and Wales) Regulations 2007 or the Home Report if in relation to a residential property in Scotland.
*This is the average speed from the provider with the fastest broadband package available at this postcode. The average speed displayed is based on the download speeds of at least 50% of customers at peak time (8pm to 10pm). Fibre/cable services at the postcode are subject to availability and may differ between properties within a postcode. Speeds can be affected by a range of technical and environmental factors. The speed at the property may be lower than that listed above. You can check the estimated speed and confirm availability to a property prior to purchasing on the broadband provider's website. Providers may increase charges. The information is provided and maintained by Decision Technologies Limited. **This is indicative only and based on a 2-person household with multiple devices and simultaneous usage. Broadband performance is affected by multiple factors including number of occupants and devices, simultaneous usage, router range etc. For more information speak to your broadband provider.
Map data ©OpenStreetMap contributors.





