
Sutcombe, Holsworthy, Devon, EX22

- PROPERTY TYPE
House
- BEDROOMS
3
- SIZE
Ask agent
- TENUREDescribes how you own a property. There are different types of tenure - freehold, leasehold, and commonhold.Read more about tenure in our glossary page.
Freehold
Key features
- For sale by public auction on Wednesday 25th March 2026 at 7pm Strawberry Field, Lifton, Devon PL16 0DH
- Planning has been granted for the conversion of the former primary school into a pair of semi detached homes
- Excellent village location with countryside views
- EPC rating—F
Description
An unmissable opportunity to acquire the Former School House site, complete with full planning permission for the construction of two spacious, high-specification residential properties.
This development is perfectly positioned on the desirable edge of the village, offering tranquillity while being immediately adjacent to the village park and community hall—an ideal setting for families and community-minded buyers.
PLANNING
Planning has been granted by Torridge District Council under planning ref: 1/0323/2024/FUL dated the 13th April 2024. A copy of the permission and associated drawing can be viewed on the Torridge District Council website at torridge.gov.uk. Building regulations have been drawn up and will be included in the sale along with the ecological survey and reports.
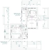
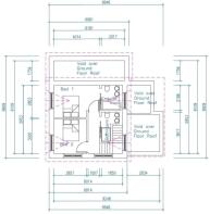
PROPOSED ACCOMMODATION
The proposed plans comprises a three bedroom and a 4 bedroom, semi-detached dwelling, both using the footprint of the existing school building with no extensions required. Each property will have parking for two vehicles and gardens to the rear.
Parking spaces have been provided to the side of the property, whilst a garden area has been designed to the side and rear. Vehicular and pedestrian access to the proposed dwelling will be via the existing access.
The planned dwelling will retain the form and character of the original building, with the addition creating a light and open space enjoying excellent views.
THE SITE
The building is set on the edge of the village and consists of a single-story, double height building. The original building is an attractive stone building with some more modern, rendered extensions.
PROPOSED FLOOR PLAN
The proposed floor plans are for identification purposes only.
LOCAL AUTHORITY - Torridge
EASEMENTS, WAYLEAVES, RIGHTS OF WAY
The property is offered for sale, subject to and with the benefit of all matters contained in or referred to in the Property and Charges Register of the registered title together with all public or private rights of way, wayleaves, easements and other rights of way, which cross the property.
BOUNDARIES
Any purchasers shall be deemed to have full knowledge of the boundaries and neither vendor nor the vendor’s agents will be responsible for defining the boundaries or the ownership thereof. Should any dispute arise as to the boundaries or any points on the particulars or plans or the interpretation of them, the question shall be referred to the vendor’s agent whose decision acting as experts shall be final.
SERVICES
Mains water, electric and drainage
AUCTION VENUE
Lifton Strawberry Fields, Lifton, Devon PL16 0DH on Wednesday 25th March 2026 at 7.00pm
REGISTRATION
Please note ALL BIDDERS, including Kivells existing clients, will need to register with Kivells on the night of the auction in order to comply with The Money Laundering, Terrorist Financing and Transfer of Funds (Information on the Payer) Regulations 2017 (the “Regulations”) - as of 26th June 2017.
Bidders will be required to provide one form of government issued photographic identity and a utility bill addressed to them at their home address, dated within 3 months of the date of the auction. Failure to do this, may prejudice your ability to bid on the night.
ONLINE BIDDING
Online bidding registration will be available 10 days before each auction and all bidders must register at least 48 hours prior to the auction. For further information, please visit your local Kivells office.
BUYERS ADMINISTRATION FEE
All successful buyers at Kivells’ Property Auctions should note that on exchange of contracts, a Buyer’s Administration Fee of £2,000 plus VAT (Total: £2,400 inc VAT) is payable to Kivells on the night of the auction. This fee can be paid by either bank transfer, personal cheque or direct card.
Please note, if the lot is sold prior to auction, or afterwards, these fees remain payable. There are no discounts for multiple lots purchased and you must consider this when bidding/offering prior.
All interested buyers are advised to review the Auction Legal Pack prior to bidding. This can be obtained from the Kivells website and is free to download.
Any fees that are owed in addition to the buyer's administration fee will be included within the legal pack.
Solicitor Ben Mitchell, Parnalls Solicitors.
AUCTION PAYMENT
At the fall of the gavel the contact is legally binding and a 10% deposit (subject to a minimum fee of £5,000) will be required to be paid by the successful bidder. The deposit has to be paid to Kivells as auctioneers and can only be paid in the form of a cheque or bank transfer.
The deposit is also payable for all lots that are sold prior to auction. ALL bidders must only bid if they can make this payment.
Cheques must be drawn on a bank or branch of a bank in the United Kingdom, any other cheques may be rejected and it will be the responsibility of the purchaser to ensure they have the correct method of payment available at each auction.
Local Authority Torridge
Plan of the Land
The plan is based on ordnance survey extracts, and the areas are not guaranteed. Purchasers must satisfy themselves as to their accuracy.
Land Plan Not to scale and for identification purposes only.
Guide Prices
Guide prices given are indications within 10% upwards or downwards of where the reserve price may be set at the time of going to print. Please note they are not an indication of the anticipated sale price or a valuation.
The reserve price is the minimum price at which the property can be sold, both the guide price and reserve price may be subject to change up to and including the day of the auction. Please note that all prices listed, whether prior to or post auction, are subject to contract.
The Auctioneers and sellers accept no responsibility for any loss, cost or damage that a buyer may incur as a result of relying on any guide price. It is the buyer's responsibility to decide how much they should bid for any lot. Please check with us for regular updates as guide prices are subject to change prior to the auction.
The guide price does not include the buyer's fee charged by the auctioneer or VAT which may apply to the sale or other amounts the seller may charge.
The seller's Special Conditions of Sale will state whether there are other seller's charges and whether the seller has elected to charge VAT on the sale price.
Brochures
Particulars- COUNCIL TAXA payment made to your local authority in order to pay for local services like schools, libraries, and refuse collection. The amount you pay depends on the value of the property.Read more about council Tax in our glossary page.
- Band: TBC
- PARKINGDetails of how and where vehicles can be parked, and any associated costs.Read more about parking in our glossary page.
- Yes
- GARDENA property has access to an outdoor space, which could be private or shared.
- Yes
- ACCESSIBILITYHow a property has been adapted to meet the needs of vulnerable or disabled individuals.Read more about accessibility in our glossary page.
- Ask agent
Energy performance certificate - ask agent
Sutcombe, Holsworthy, Devon, EX22
Add an important place to see how long it'd take to get there from our property listings.
__mins driving to your place
Get an instant, personalised result:
- Show sellers you’re serious
- Secure viewings faster with agents
- No impact on your credit score
Your mortgage
Notes
Staying secure when looking for property
Ensure you're up to date with our latest advice on how to avoid fraud or scams when looking for property online.
Visit our security centre to find out moreDisclaimer - Property reference BUD250427. The information displayed about this property comprises a property advertisement. Rightmove.co.uk makes no warranty as to the accuracy or completeness of the advertisement or any linked or associated information, and Rightmove has no control over the content. This property advertisement does not constitute property particulars. The information is provided and maintained by Kivells, Bude. Please contact the selling agent or developer directly to obtain any information which may be available under the terms of The Energy Performance of Buildings (Certificates and Inspections) (England and Wales) Regulations 2007 or the Home Report if in relation to a residential property in Scotland.
Auction Fees: The purchase of this property may include associated fees not listed here, as it is to be sold via auction. To find out more about the fees associated with this property please call Kivells, Bude on 01288 272823.
*Guide Price: An indication of a seller's minimum expectation at auction and given as a Guide Price or a range of Guide Prices. This is not necessarily the figure a property will sell for and is subject to change prior to the auction.
Reserve Price: Each auction property will be subject to a Reserve Price below which the property cannot be sold at auction. Normally the Reserve Price will be set within the range of Guide Prices or no more than 10% above a single Guide Price.
*This is the average speed from the provider with the fastest broadband package available at this postcode. The average speed displayed is based on the download speeds of at least 50% of customers at peak time (8pm to 10pm). Fibre/cable services at the postcode are subject to availability and may differ between properties within a postcode. Speeds can be affected by a range of technical and environmental factors. The speed at the property may be lower than that listed above. You can check the estimated speed and confirm availability to a property prior to purchasing on the broadband provider's website. Providers may increase charges. The information is provided and maintained by Decision Technologies Limited. **This is indicative only and based on a 2-person household with multiple devices and simultaneous usage. Broadband performance is affected by multiple factors including number of occupants and devices, simultaneous usage, router range etc. For more information speak to your broadband provider.
Map data ©OpenStreetMap contributors.









