
3 bedroom end of terrace house for sale
Bond End, Knaresborough, North Yorkshire, HG5

- PROPERTY TYPE
End of Terrace
- BEDROOMS
3
- BATHROOMS
1
- SIZE
1,160 sq ft
108 sq m
- TENUREDescribes how you own a property. There are different types of tenure - freehold, leasehold, and commonhold.Read more about tenure in our glossary page.
Freehold
Key features
- Characterful Grade II listed townhouse
- Highly sought-after residential location
- Two reception rooms
- Kitchen
- Three bedrooms and house bathroom
- Courtyard garden and useful storeroom
Description
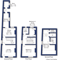
An increasingly rare opportunity to acquire a most attractive Grade II listed townhouse enjoying an aspect to the rear over the grounds of Knaresborough House. With gas central heating the property briefly comprises a covered portico entrance leading into the sitting room with a lounge having a feature fireplace with stove style gas fire. There is a delph rack and window with elevation to the front. There is an inner staircase hallway and beyond the dining room leads into a kitchen which comprises a range of painted wall and base units with wood working surfaces over. There is a range cooker, space for appliances and stable door leading to the rear.
A return staircase leads to the first floor landing where there is a double bedroom and third single bedroom with cupboards built-in either side of the chimney breast. The house bathroom comprises a matching three piece bath suite with shower over the bath and is fully tiled. A return staircase leads to an attractive second floor bedroom with exposed ceiling timbers, useful eaves storage and en-suite WC.
Outside is a small courtyard to the front and a further feature is the rear courtyard which would be ideal for those entertaining. There is also an outdoor store with plumbing for a washing machine.
The property is situated within a short walk of the historic square where there is excellent shopping and recreational facilities together with a swimming pool, primary and secondary education and a railway station with mainline links. The southern bypass is also convenient and offers access to the principal commercial centre of North and West Yorkshire.
Local Authority & Council Tax Band
• North Yorkshire Council
• Council Tax Band D
Tenure, Services & Parking
• Freehold
• All services are installed. Central heating is by gas central heating.
• No allocated parking
• The property is Grade II listed and is situated in a Conservation Area.
Internet & Mobile Coverage
For information on Internet and Mobile coverage access the Ofcom website from this link
Flooding
For information on flood risks please use this link Check for flooding in England - GOV.UK
From our office proceed down the High Street and at the mini roundabout turn left. Proceed straight ahead at the second mini roundabout and turn left approximately halfway down the hill where the property can be found set back from Bond End on the left hand side clearly marked by our For Sale board.
Brochures
Particulars- COUNCIL TAXA payment made to your local authority in order to pay for local services like schools, libraries, and refuse collection. The amount you pay depends on the value of the property.Read more about council Tax in our glossary page.
- Band: D
- PARKINGDetails of how and where vehicles can be parked, and any associated costs.Read more about parking in our glossary page.
- Not allocated
- GARDENA property has access to an outdoor space, which could be private or shared.
- Yes
- ACCESSIBILITYHow a property has been adapted to meet the needs of vulnerable or disabled individuals.Read more about accessibility in our glossary page.
- Ask agent
Bond End, Knaresborough, North Yorkshire, HG5
Add an important place to see how long it'd take to get there from our property listings.
__mins driving to your place
Get an instant, personalised result:
- Show sellers you’re serious
- Secure viewings faster with agents
- No impact on your credit score
Your mortgage
Notes
Staying secure when looking for property
Ensure you're up to date with our latest advice on how to avoid fraud or scams when looking for property online.
Visit our security centre to find out moreDisclaimer - Property reference KNA250308. The information displayed about this property comprises a property advertisement. Rightmove.co.uk makes no warranty as to the accuracy or completeness of the advertisement or any linked or associated information, and Rightmove has no control over the content. This property advertisement does not constitute property particulars. The information is provided and maintained by Dacre Son & Hartley, Knaresborough. Please contact the selling agent or developer directly to obtain any information which may be available under the terms of The Energy Performance of Buildings (Certificates and Inspections) (England and Wales) Regulations 2007 or the Home Report if in relation to a residential property in Scotland.
*This is the average speed from the provider with the fastest broadband package available at this postcode. The average speed displayed is based on the download speeds of at least 50% of customers at peak time (8pm to 10pm). Fibre/cable services at the postcode are subject to availability and may differ between properties within a postcode. Speeds can be affected by a range of technical and environmental factors. The speed at the property may be lower than that listed above. You can check the estimated speed and confirm availability to a property prior to purchasing on the broadband provider's website. Providers may increase charges. The information is provided and maintained by Decision Technologies Limited. **This is indicative only and based on a 2-person household with multiple devices and simultaneous usage. Broadband performance is affected by multiple factors including number of occupants and devices, simultaneous usage, router range etc. For more information speak to your broadband provider.
Map data ©OpenStreetMap contributors.






