
Kingslea Road, Solihull

- PROPERTY TYPE
Detached
- BEDROOMS
4
- BATHROOMS
3
- SIZE
Ask agent
- TENUREDescribes how you own a property. There are different types of tenure - freehold, leasehold, and commonhold.Read more about tenure in our glossary page.
Freehold
Key features
- A Very Well Presented Detached Family Home
- Four Bedrooms
- Two En-Suite Shower Rooms
- Two Spacious Reception Rooms
- Extended Breakfast Kitchen
- Utility Room & Guest W.C
- Family Bathroom
- Extensive South/Westerly Facing Rear Garden
- Garage
- Driveway Parking
Description
A very well presented detached family home situated in a most sought after location offering accommodation comprising two spacious reception rooms, extended breakfast kitchen, utility room, guest W.C, four bedrooms, two en-suite shower room, family bathroom, extensive South/Westerly facing rear garden, garage and driveway parking
Solihull is situated in the heart of England and is considered to be one of the most highly sought after residential areas in the country boasting a range of local amenities including excellent schools, colleges, parks, restaurants, bars and an excellent variety of shopping centres including Touchwood shopping centre and Resorts World. Solihull has convenient road networks linking the M42, M6, M40, M1 and M5 giving easy access to the NEC Arena, Birmingham International Airport and Railway Station.
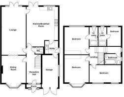
Property Frontage
The property is set back from the road behind a block paved driveway providing ample off road parking extending to UPVC double glazed door leading into
Enclosed Porch
With double glazed windows and composite double glazed door leading through to
Entrance Hallway
With wall light points, radiator, stairs leading to the first floor accommodation and doors leading off to
Guest W.C
With low flush W.C, wall mounted wash hand basin with tiled splashback, ladder style radiator and ceiling light point
Dining Room to Front - 4.75m max x 3.51m max (15'7" max x 11'6" max)
With double glazed bay window to front elevation, radiator, ceiling spot lights, electric fireplace with stone hearth and decorative surround and double doors into
Extended Lounge to Rear - 7.14m max x 3.45m max (23'5" max x 11'4" max)
With two ceiling light points, radiator, double glazed French doors leading out to the rear garden and door to
Extended Breakfast Kitchen to Rear - 5.72m max x 4.5m max (18'9" max x 14'9" max)
Being fitted with a range of wall, drawer and base units with complementary work surfaces over and a sink and drainer unit with mixer tap. Space for Range style cooker with extractor canopy over, integrated dishwasher, space for American style fridge/freezer, wood effect flooring, radiator, spot lights to ceiling, double glazed window to rear, double glazed French doors leading out to the rear garden and door to
Utility Room - 2.13m max x 2.03m max (7'0" max x 6'8" max)
With space and plumbing for washing machine, courtesy door to side and door to garage
Landing
With double glazed window to side, loft hatch and doors leading off to
Bedroom One to Rear - 4.09m max x 3.51m max (13'5" max x 11'6" max)
With double glazed window to rear elevation, radiator, triple fitted wardrobes, ceiling light point and door to
En-Suite Shower Room to Rear
Being fitted with a three piece white suite comprising of a shower enclosure with thermostatic shower, wall mounted wash hand basin and a low flush W.C. Complementary tiling to water prone areas, wood effect flooring, obscure double glazed window to rear, ladder style radiator and spot lights to ceiling
Bedroom Two to Front - 4.8m max x 3.48m max (15'9" max x 11'5" max)
With double glazed bay window to front elevation with bespoke fitted window seat, two double fitted wardrobes, radiator and ceiling light point
Bedroom Three to Front - 4.83m max x 2.49m max (15'10" max x 8'2" max)
With two double glazed windows to front elevation, radiator and two ceiling light points
Bedroom Four to Rear - 2.79m max x 2.01m max (9'2" max x 6'7" max)
With double glazed window to rear elevation, radiator, ceiling light point and door to
En-Suite Shower Room to Rear
Being fitted with a three piece white suite comprising of a shower enclosure with thermostatic shower, pedestal wash hand basin and a low flush W.C. Complementary tiling to water prone areas, wood effect flooring, obscure double glazed window to rear and ladder style radiator
Family Bathroom to Side
Being fitted with a three piece white suite comprising a panelled bath with thermostatic shower over, pedestal wash hand basin and a low flush W.C. Tiling to water prone areas, wood effect flooring, obscure double glazed window to side, ladder style radiator and spot lights to ceiling
South/Westerly Facing Rear Garden
Being mainly laid to lawn with paved patio area, timber framed garden room, hedging and fencing to boundaries and gated access to property frontage
Garage - 4.78m max x 2.51m max (15'8" max x 8'3" max)
With side hung doors to property frontage, double glazed window to side, power and lighting
Tenure
We are advised by the vendor that the property is freehold. We would advise all interested parties to obtain verification through their own solicitor or legal representative. EPC supplied by vendor. Current council tax band – F
Property Misdescriptions Act
Smart Homes have not tested any equipment, fixtures, fittings or services mentioned and do not by these Particulars or otherwise verify or warrant that they are in working order. All measurements listed are given as an approximate guide and must be carefully checked by and verified by any Prospective Purchaser. These particulars form no part of any sale contract. Any Prospective Purchaser should obtain verification of all legal and factual matters and information from their Solicitor, Licensed Conveyancer or Surveyors as appropriate.
Brochures
Brochure 1- COUNCIL TAXA payment made to your local authority in order to pay for local services like schools, libraries, and refuse collection. The amount you pay depends on the value of the property.Read more about council Tax in our glossary page.
- Band: F
- PARKINGDetails of how and where vehicles can be parked, and any associated costs.Read more about parking in our glossary page.
- Garage,Driveway
- GARDENA property has access to an outdoor space, which could be private or shared.
- Private garden
- ACCESSIBILITYHow a property has been adapted to meet the needs of vulnerable or disabled individuals.Read more about accessibility in our glossary page.
- Level access
Kingslea Road, Solihull
Add an important place to see how long it'd take to get there from our property listings.
__mins driving to your place
Get an instant, personalised result:
- Show sellers you’re serious
- Secure viewings faster with agents
- No impact on your credit score
Your mortgage
Notes
Staying secure when looking for property
Ensure you're up to date with our latest advice on how to avoid fraud or scams when looking for property online.
Visit our security centre to find out moreDisclaimer - Property reference S1519710. The information displayed about this property comprises a property advertisement. Rightmove.co.uk makes no warranty as to the accuracy or completeness of the advertisement or any linked or associated information, and Rightmove has no control over the content. This property advertisement does not constitute property particulars. The information is provided and maintained by Smart Homes Ltd, Shirley. Please contact the selling agent or developer directly to obtain any information which may be available under the terms of The Energy Performance of Buildings (Certificates and Inspections) (England and Wales) Regulations 2007 or the Home Report if in relation to a residential property in Scotland.
*This is the average speed from the provider with the fastest broadband package available at this postcode. The average speed displayed is based on the download speeds of at least 50% of customers at peak time (8pm to 10pm). Fibre/cable services at the postcode are subject to availability and may differ between properties within a postcode. Speeds can be affected by a range of technical and environmental factors. The speed at the property may be lower than that listed above. You can check the estimated speed and confirm availability to a property prior to purchasing on the broadband provider's website. Providers may increase charges. The information is provided and maintained by Decision Technologies Limited. **This is indicative only and based on a 2-person household with multiple devices and simultaneous usage. Broadband performance is affected by multiple factors including number of occupants and devices, simultaneous usage, router range etc. For more information speak to your broadband provider.
Map data ©OpenStreetMap contributors.






