High street retail property to lease
Local Centre At St Edmunds Gate, Rougham Hill, Bury St Edmunds, Suffolk, IP33
- SIZE AVAILABLE
39,204 sq ft
3,642 sq m
- SECTOR
High street retail property to lease
Lease details
- Lease available date:
- Ask agent
Key features
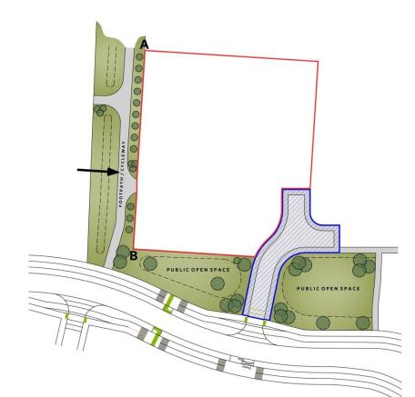
- Outline planning consent for a retail hub
- Located on a new development south of Bury St Edmunds
- Situated close to the A14
- Suitable for retail, convenience and roadside uses (STPP)
- Available To Let or For Sale on terms to be agreed
Description
The site is situated close to the improved A14 and provides a road commute time to Cambridge of 50 minutes and Ipswich of 40 minutes.
The land parcel has been granted outline planning consent for a local centre comprising of retail space within an E use class.
Brochures
Local Centre At St Edmunds Gate, Rougham Hill, Bury St Edmunds, Suffolk, IP33
NEAREST STATIONS
Distances are straight line measurements from the centre of the postcode- Bury St. Edmunds Station1.9 miles
- Thurston Station3.2 miles
Notes
Disclaimer - Property reference 1796LH. The information displayed about this property comprises a property advertisement. Rightmove.co.uk makes no warranty as to the accuracy or completeness of the advertisement or any linked or associated information, and Rightmove has no control over the content. This property advertisement does not constitute property particulars. The information is provided and maintained by Merrifields, Suffolk. Please contact the selling agent or developer directly to obtain any information which may be available under the terms of The Energy Performance of Buildings (Certificates and Inspections) (England and Wales) Regulations 2007 or the Home Report if in relation to a residential property in Scotland.
Map data ©OpenStreetMap contributors.




