
3 bedroom semi-detached house for sale
Cherry Tree Avenue, Walsall, WS5

- PROPERTY TYPE
Semi-Detached
- BEDROOMS
3
- BATHROOMS
2
- SIZE
Ask agent
- TENUREDescribes how you own a property. There are different types of tenure - freehold, leasehold, and commonhold.Read more about tenure in our glossary page.
Freehold
Key features
- 3 bedrooms
- 3 reception areas
- Upgraded kitchen
- Downstairs WC
- Separate garage to the rea
- Refitted bathroom
- Ideal location
- Great transport links
- Close to local amenities
- Quality schools nearby
Description
Walsall is known for its blend of urban amenities and green spaces, making it an attractive place to live. Nearby parks offer opportunities for outdoor activities, while quality local schools provide quality education options for children. The area is well-connected, with transport links facilitating easy travel to surrounding areas.
Cherry Tree Avenue is conveniently situated with access to essential services and shops, along with fabulous transport links. This location provides a balance of convenience and community feel, appealing to those seeking a comfortable lifestyle. It's an opportunity not to be missed for those looking for value in their next home purchase.
This property represents an affordable entry into Walsall's housing market. Don't miss your chance to secure a home in this desirable location. Contact us today to learn more about this opportunity.
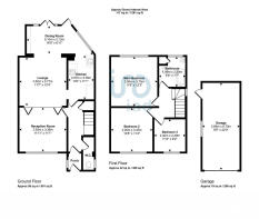
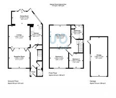
Outside Front
Tarmac drive providing off-road parking for at least two vehicles. Access into property via uPVC double-glazed door leading into porch. Access to the rear garden and separate garage via side tarmac driveway.
Porch
Accessed from the driveway and leading into hallway beyond. Small double-glazed window to the side.
Hallway
Providing access to the front reception room , kitchen and downstairs WC. Stairs rising to the first floor, with handy store beneath.
Reception Room
11'11" x 11'11"
Accessed from the hallway with large double-glazed bay window to the front. Access into rear lounge via folding/glazed doors.
Lounge
12'4" x 11'7"
Accessed from the kitchen or from the front reception room, leading through to the dining room beyond.
Kitchen
11'1" x 6'9"
Upgraded , modern kitchen featuring a range of matching wall and base units. Space for large fridge/freezer. Central worktop/breakfast bar with electric "AEG"induction hob fitted above built-in "AEG" oven below. Sunken sink with single mixer tap. Access into lounge, rear dining room and hallway.
Dining Room
16'9" max x 6'11" max
Accessed from the lounge or kitchen , and leading out into rear garden via double-glazed double doors. Large double-glazed windows to the side and rear.
Downstairs WC
Accessed from the hallway, with WC with built-in hand basin and small double-glazed window to the side.
First Floor Landing
Providing access to all 3 bedrooms and family bathroom. Double-glazed window to the side. Loft hatch access.
Master Bedroom
12'3" x 11'8"
Accessed from the landing , with large double-glazed window to the rear.
Bedroom 2
11'4" x 10'8"
Accessed from the landing , with large double-glazed window to the front.
Bedroom 3
8'2" x 7'10"
Accessed from the landing , with double-glazed window to the front.
Bathroom
7'7" max x 6'6" max
Accessed from the landing , a partially tiled bathroom suite of WC , hand basin and over-sized panelled bath with glass screen and "monsoon" style shower above. Heated towel rail in chrome. Double-glazed window and handy store cupboard to the rear.
Garage
22' x 9'5"
Separate to the property and sat to the rear of the house. Up and over garage door with side window and door leading into rear garden space.
Outside Rear
A fabulous rear garden space with slabbed patio and a selection of plants, trees and shrubs. Large lawn area leading up to covered wooden outhouse. Side gate access to driveway/front of the property. Accessed from the dining room or from the garage.
- COUNCIL TAXA payment made to your local authority in order to pay for local services like schools, libraries, and refuse collection. The amount you pay depends on the value of the property.Read more about council Tax in our glossary page.
- Ask agent
- PARKINGDetails of how and where vehicles can be parked, and any associated costs.Read more about parking in our glossary page.
- Yes
- GARDENA property has access to an outdoor space, which could be private or shared.
- Yes
- ACCESSIBILITYHow a property has been adapted to meet the needs of vulnerable or disabled individuals.Read more about accessibility in our glossary page.
- Ask agent
Energy performance certificate - ask agent
Cherry Tree Avenue, Walsall, WS5
Add an important place to see how long it'd take to get there from our property listings.
__mins driving to your place
Get an instant, personalised result:
- Show sellers you’re serious
- Secure viewings faster with agents
- No impact on your credit score
Your mortgage
Notes
Staying secure when looking for property
Ensure you're up to date with our latest advice on how to avoid fraud or scams when looking for property online.
Visit our security centre to find out moreDisclaimer - Property reference RX702558. The information displayed about this property comprises a property advertisement. Rightmove.co.uk makes no warranty as to the accuracy or completeness of the advertisement or any linked or associated information, and Rightmove has no control over the content. This property advertisement does not constitute property particulars. The information is provided and maintained by iad, Nationwide. Please contact the selling agent or developer directly to obtain any information which may be available under the terms of The Energy Performance of Buildings (Certificates and Inspections) (England and Wales) Regulations 2007 or the Home Report if in relation to a residential property in Scotland.
*This is the average speed from the provider with the fastest broadband package available at this postcode. The average speed displayed is based on the download speeds of at least 50% of customers at peak time (8pm to 10pm). Fibre/cable services at the postcode are subject to availability and may differ between properties within a postcode. Speeds can be affected by a range of technical and environmental factors. The speed at the property may be lower than that listed above. You can check the estimated speed and confirm availability to a property prior to purchasing on the broadband provider's website. Providers may increase charges. The information is provided and maintained by Decision Technologies Limited. **This is indicative only and based on a 2-person household with multiple devices and simultaneous usage. Broadband performance is affected by multiple factors including number of occupants and devices, simultaneous usage, router range etc. For more information speak to your broadband provider.
Map data ©OpenStreetMap contributors.






