
3 bedroom detached bungalow for sale
High Street, Lolworth, Cambridge, Cambridgeshire

- PROPERTY TYPE
Detached Bungalow
- BEDROOMS
3
- BATHROOMS
1
- SIZE
Ask agent
- TENUREDescribes how you own a property. There are different types of tenure - freehold, leasehold, and commonhold.Read more about tenure in our glossary page.
Freehold
Key features
- 3 bedroom link-detached bungalow
- Popular village location with easy access to A14/M11
- Approximately 2 miles from shopping facilities at Bar Hill
- Spacious living room
- Kitchen and utility room
- Shower room and en Suite WC off bedroom 1
- Detached garage
- Gardens to front and rear
- Driveway parking
- No upward chain
Description
While the location feels quiet and peaceful, the connections by foot, cycle, train and car to nearby towns and cities are also excellent. For daily amenities, the larger hub of Bar Hill is around two miles away and has a good selection of shops, a library with a post office and a supermarket.
The property is a link-detached 3 bedroom, bungalow offering great scope for improvement and (subject to any necessary consents) enlargement. Set back from the property offers front and rear gardens, a driveway providing parking for 3 vehicles and is offered with no upward chain.
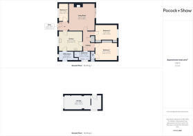
In detail, the accommodation comprises;
Part glazed front door and side panel to
Entrance Lobby
with coved archway to living room, doors to kitchen and bedroom 3
Utility Room
3.65 m x 1.79 m (12'0" x 5'10")
with part-glazed door to side, window to front, wall mounted Grant oil fired central heating boiler, worktop with tiled splashbacks, inset circular sink unit and drainer, space and plumbing for washing machine coathooks, door to
Kitchen
4.32 m x 3.63 m (14'2" x 11'11")
with window to front, good range of fitted wall and base units with worksurfaces over and tiled splashbacks, radiator, sink unit and drainer, built-in Neff electric hob and eye level double oven, glazed door to
Inner Hallway
with loft access hatch, airing cupboard with factory lagged hot water tank and slatted wood shelving, radiator, coathooks, radiator, laminate wood flooring
Living Room
5.08 m x 4.72 m (16'8" x 15'6")
with double glazed door to garden, brick chimney breast with open fireplace , two radiators, TV point, wall light points.
Bedroom 1
4.07 m x 3.28 m (13'4" x 10'9")
with window to rear, built-in wardrobe to one wall, radiator, wall light points, door to
En suite WC
with window to side, WC, Vanity wash handbasin with tiled splashback and cabinet over, ceramic tiled flooring.
Bedroom 2
4.10 m x 2.80 m (13'5" x 9'2")
with window to rear, built-in shelved cupboard, further built-in cupboard,with shelf and clothes hanging rail, radiator
Bedroom 3
3.25 m x 1.86 m (10'8" x 6'1")
with window to front, radiator
Shower Room
with window to side, large fully enclosed and tiled shower cubicle with curved glass screen and chrome shower unit (with large drench head) over, fully tiled walls, WC with concealed cistern, Vanity wash handbasin with mirror over, shaver point, chrome heated towel rail, recessed ceiling spotlights, ceramic tiled flooring
Outside
The property enjoys being set back from the road with a mainly lawned front garden area and flower/shrub border. A driveway provides parking for 2-3 vehicles with timber gates leading onto a further pave parking space and the;
Detached brick built garage
6.85 m x 2.68 m (22'6" x 8'10")
with aluminum up and over door to front, rear workshop area with pedestrian door to side, eave storage.
Rear Garden
15.00 m x 13.00 m (49'3" x 42'8")
The rear garden is triangular in shape and predominantly laid to lawn with a large paved patio area and timber shed and outside light. The whole offering a good degree of privacy.
Services
Mains drainage, electricity and oil fired central heating
Tenure
Freehld
Council Tax
Band D
Viewing
Via prior appointment with Pocock + Shaw
Brochures
Brochure of 10 High StreetKFB- COUNCIL TAXA payment made to your local authority in order to pay for local services like schools, libraries, and refuse collection. The amount you pay depends on the value of the property.Read more about council Tax in our glossary page.
- Ask agent
- PARKINGDetails of how and where vehicles can be parked, and any associated costs.Read more about parking in our glossary page.
- Yes
- GARDENA property has access to an outdoor space, which could be private or shared.
- Yes
- ACCESSIBILITYHow a property has been adapted to meet the needs of vulnerable or disabled individuals.Read more about accessibility in our glossary page.
- Ask agent
High Street, Lolworth, Cambridge, Cambridgeshire
Add an important place to see how long it'd take to get there from our property listings.
__mins driving to your place
Get an instant, personalised result:
- Show sellers you’re serious
- Secure viewings faster with agents
- No impact on your credit score
Your mortgage
Notes
Staying secure when looking for property
Ensure you're up to date with our latest advice on how to avoid fraud or scams when looking for property online.
Visit our security centre to find out moreDisclaimer - Property reference PCZ-26267657. The information displayed about this property comprises a property advertisement. Rightmove.co.uk makes no warranty as to the accuracy or completeness of the advertisement or any linked or associated information, and Rightmove has no control over the content. This property advertisement does not constitute property particulars. The information is provided and maintained by Pocock & Shaw, Cambridge. Please contact the selling agent or developer directly to obtain any information which may be available under the terms of The Energy Performance of Buildings (Certificates and Inspections) (England and Wales) Regulations 2007 or the Home Report if in relation to a residential property in Scotland.
*This is the average speed from the provider with the fastest broadband package available at this postcode. The average speed displayed is based on the download speeds of at least 50% of customers at peak time (8pm to 10pm). Fibre/cable services at the postcode are subject to availability and may differ between properties within a postcode. Speeds can be affected by a range of technical and environmental factors. The speed at the property may be lower than that listed above. You can check the estimated speed and confirm availability to a property prior to purchasing on the broadband provider's website. Providers may increase charges. The information is provided and maintained by Decision Technologies Limited. **This is indicative only and based on a 2-person household with multiple devices and simultaneous usage. Broadband performance is affected by multiple factors including number of occupants and devices, simultaneous usage, router range etc. For more information speak to your broadband provider.
Map data ©OpenStreetMap contributors.









