Land for sale
Aveiro, Gafanha da Encarnação, Portugal
- PROPERTY TYPE
Land
- SIZE
5,027 sq ft
467 sq m
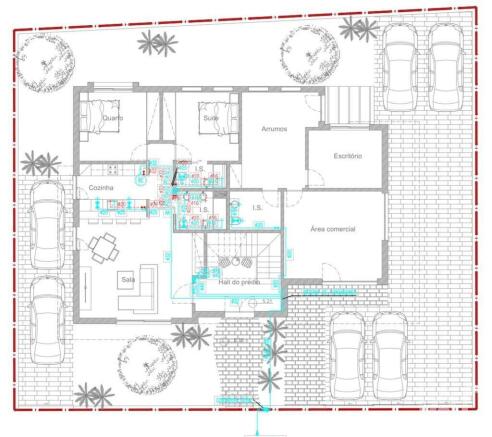
Description
Total area: 467 m²
Approved project for construction of a high-rise building with:
• 3 two-bedroom apartments with balconies
• 1 shop/service area on the ground floor
• Storage in the attic
• Ground floor and 1st floor
• Parking spaces/garage
Prime location, next to the A25 highway, just minutes from the university and downtown Aveiro, Praia da Barra, and Costa Nova.
Value: €160,000
Excellent investment opportunity with several profitability options!
The land has a subdivision permit, construction permit, and approved project/license.
#ref: 149549
Aveiro, Gafanha da Encarnação, Portugal
NEAREST AIRPORTS
Distances are straight line measurements- Porto(International)42.6 miles
Advice on buying Portuguese property
Learn everything you need to know to successfully find and buy a property in Portugal.
Notes
This is a property advertisement provided and maintained by IAD, Porto (reference 149549) and does not constitute property particulars. Whilst we require advertisers to act with best practice and provide accurate information, we can only publish advertisements in good faith and have not verified any claims or statements or inspected any of the properties, locations or opportunities promoted. Rightmove does not own or control and is not responsible for the properties, opportunities, website content, products or services provided or promoted by third parties and makes no warranties or representations as to the accuracy, completeness, legality, performance or suitability of any of the foregoing. We therefore accept no liability arising from any reliance made by any reader or person to whom this information is made available to. You must perform your own research and seek independent professional advice before making any decision to purchase or invest in overseas property.



