
Samuel Street, Crewe, Cheshire

- PROPERTY TYPE
Terraced
- BEDROOMS
3
- BATHROOMS
1
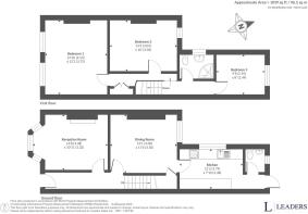
- SIZE
Ask agent
- TENUREDescribes how you own a property. There are different types of tenure - freehold, leasehold, and commonhold.Read more about tenure in our glossary page.
Freehold
Key features
- Three-bedroom terraced family home
- Two flexible reception rooms
- Fitted kitchen and family bathroom
- Ideal for first-time buyers
- Attractive option for investors
- Close to Crewe town centre
- Near schools and green spaces
- Good local shops and amenities
- Excellent rail links to major cities
- Council Tax Band A
Description
For sale is this three-bedroom terraced house in Crewe offering a practical layout that will appeal to both first-time buyers and investors. Inside, the property provides two reception rooms, giving flexibility for a living area and separate dining or home-working space, along with a fitted kitchen and a family bathroom.
The house is situated in a residential area well placed for everyday amenities. Crewe town centre is within easy reach, offering a range of supermarkets, shops, cafés, and services, as well as leisure facilities and eateries to suit different tastes.
Families will appreciate the nearby schools and educational facilities around CW1, with both primary and secondary options available in the wider Crewe area. Local parks and green spaces, such as Queens Park a short drive away, provide opportunities for walks, play areas and community events.
Public transport links are a key benefit here. Crewe railway station is easily accessible, offering regular services to major destinations including Manchester, Liverpool, Birmingham and London Euston. Typical journey times are around 40–50 minutes to Manchester and approximately 1 hour 40 minutes to London, making this a practical base for commuters. Local bus routes also connect the neighbourhood with the town centre and surrounding areas.
With an EPC rating of D and Council Tax Band A, this terraced house combines manageable running costs with a convenient Crewe location, making it a sensible option for those looking to step onto the property ladder or add to a rental portfolio.
Tenure: Freehold
EPC: D
Council Tax: A
Brochures
Particulars- COUNCIL TAXA payment made to your local authority in order to pay for local services like schools, libraries, and refuse collection. The amount you pay depends on the value of the property.Read more about council Tax in our glossary page.
- Band: A
- PARKINGDetails of how and where vehicles can be parked, and any associated costs.Read more about parking in our glossary page.
- Ask agent
- GARDENA property has access to an outdoor space, which could be private or shared.
- Ask agent
- ACCESSIBILITYHow a property has been adapted to meet the needs of vulnerable or disabled individuals.Read more about accessibility in our glossary page.
- Ask agent
Samuel Street, Crewe, Cheshire
Add an important place to see how long it'd take to get there from our property listings.
__mins driving to your place
Get an instant, personalised result:
- Show sellers you’re serious
- Secure viewings faster with agents
- No impact on your credit score
Your mortgage
Notes
Staying secure when looking for property
Ensure you're up to date with our latest advice on how to avoid fraud or scams when looking for property online.
Visit our security centre to find out moreDisclaimer - Property reference CRE250152. The information displayed about this property comprises a property advertisement. Rightmove.co.uk makes no warranty as to the accuracy or completeness of the advertisement or any linked or associated information, and Rightmove has no control over the content. This property advertisement does not constitute property particulars. The information is provided and maintained by Leaders Sales, Crewe. Please contact the selling agent or developer directly to obtain any information which may be available under the terms of The Energy Performance of Buildings (Certificates and Inspections) (England and Wales) Regulations 2007 or the Home Report if in relation to a residential property in Scotland.
*This is the average speed from the provider with the fastest broadband package available at this postcode. The average speed displayed is based on the download speeds of at least 50% of customers at peak time (8pm to 10pm). Fibre/cable services at the postcode are subject to availability and may differ between properties within a postcode. Speeds can be affected by a range of technical and environmental factors. The speed at the property may be lower than that listed above. You can check the estimated speed and confirm availability to a property prior to purchasing on the broadband provider's website. Providers may increase charges. The information is provided and maintained by Decision Technologies Limited. **This is indicative only and based on a 2-person household with multiple devices and simultaneous usage. Broadband performance is affected by multiple factors including number of occupants and devices, simultaneous usage, router range etc. For more information speak to your broadband provider.
Map data ©OpenStreetMap contributors.






