Frontline Plots At Glendorgal, Lusty Glaze Road, Newquay, Cornwall

- PROPERTY TYPE
Detached
- BEDROOMS
3
- BATHROOMS
3
- SIZE
1,765 sq ft
164 sq m
- TENUREDescribes how you own a property. There are different types of tenure - freehold, leasehold, and commonhold.Read more about tenure in our glossary page.
Freehold
Key features
- Exceptionally positioned building plot.
- One of only two available plots offering panoramic views.
- Planning Reference Number PA24-02415.
- Will benefit from private access to Porth Beach.
- 3 double bedrooms.
- Single floor layout.
- Designed to blend into the surrounding landscape.
Description
One of only two available plots offering panoramic views from Trevose Head, Watergate Bay to the East and Newquay Bay, Harbour and Towan Headland to the West, the near 180 degree sea views are uninterrupted and unparalleled. The homes will also benefit from private access to Porth Beach, as well as being within a stones throw of Lusty Glaze Beach.
PROPERTY
The Homes have been designed to blend into the surrounding landscape for privacy. A curved sedum roof gives the home an organic design, seemingly carved out of the surrounding headland.
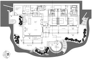
The single floor layout offers a good sized (Approximately 50sq.m) Kitchen/Dining/Living Room with dual aspect patio glazing overlooking the private courtyard.
The three double bedrooms all offer en-suite shower rooms with the master en-suite allowing for a bath as well. Each of the bedrooms also feature patio doors looking out onto the courtyard.
There is a separate utility room, a surfboard store or general storage room (or it could potentially be a home office) and a cloak room.
Buyers could have the opportunity to make minor changes to the internal layout to better suit their needs.
Outside, there is an enclosed terrace or patio area with an external shower, integral seating area and a BBQ and fire-pit area. A Cloister runs the full length of the house providing a covered alfresco area.
The properties will have individual designated parking areas.
LOCATION
Set directly above Porth beach, this development commands wonderful panoramic sea and coastal views taking in Newquay Bay, Watergate Bay and miles of coastline to Trevose Head in the distance. This site offers possibly the best views in Newquay.
Porth beach is large sandy beach which offers both gentle bathing waters for swimming or paddle-boarding as well as low surf for body-boarding. There is direct access from the site down to the beach at low tide or a short walk at high tide. Seals can often be seen in the sea here. The cliffs that border the headland offer grandstand seats for incredible sunrises and sunsets.
To the other side of the headland, picturesque Lusty Glaze beach is surrounded by high cliffs and is one of Newquay's lesser known sandy beaches. Privately owned, the beach is popular with surfers, swimmers and beach lovers and is also home to a restaurant/bar.
Newquay is considered to be one of Cornwall's most popular holiday resorts, world renowned for the quality of its surrounding surfing beaches together with the spectacular North Cornish coastline. The town provides a comprehensive range of shopping facilities together with amenities to satisfy all banking, schooling and leisure requirements. There is a branch line railway station together with Newquay airport nearby from where there are a number of scheduled domestic and international flights.
Living Room
25' 3" x 21' 4"
Master Bedroom
23' 0" x 11' 6"
Measurement includes inner hall
Bedroom 2
19' 4" x 10' 10"
Bedroom 3
19' 4" x 10' 10"
Utility Room
9' 10" x 8' 10"
Surf Store / Storeroom
10' 2" x 8' 10"
Brochures
Web Details- COUNCIL TAXA payment made to your local authority in order to pay for local services like schools, libraries, and refuse collection. The amount you pay depends on the value of the property.Read more about council Tax in our glossary page.
- Band: TBC
- PARKINGDetails of how and where vehicles can be parked, and any associated costs.Read more about parking in our glossary page.
- Driveway,Off street,Allocated,Private
- GARDENA property has access to an outdoor space, which could be private or shared.
- Ask agent
- ACCESSIBILITYHow a property has been adapted to meet the needs of vulnerable or disabled individuals.Read more about accessibility in our glossary page.
- Lateral living,Wet room,Wide doorways,Level access
Frontline Plots At Glendorgal, Lusty Glaze Road, Newquay, Cornwall
Add an important place to see how long it'd take to get there from our property listings.
__mins driving to your place
Get an instant, personalised result:
- Show sellers you’re serious
- Secure viewings faster with agents
- No impact on your credit score
Your mortgage
Notes
Staying secure when looking for property
Ensure you're up to date with our latest advice on how to avoid fraud or scams when looking for property online.
Visit our security centre to find out moreDisclaimer - Property reference TRU250192. The information displayed about this property comprises a property advertisement. Rightmove.co.uk makes no warranty as to the accuracy or completeness of the advertisement or any linked or associated information, and Rightmove has no control over the content. This property advertisement does not constitute property particulars. The information is provided and maintained by Humberts, Cornwall. Please contact the selling agent or developer directly to obtain any information which may be available under the terms of The Energy Performance of Buildings (Certificates and Inspections) (England and Wales) Regulations 2007 or the Home Report if in relation to a residential property in Scotland.
*This is the average speed from the provider with the fastest broadband package available at this postcode. The average speed displayed is based on the download speeds of at least 50% of customers at peak time (8pm to 10pm). Fibre/cable services at the postcode are subject to availability and may differ between properties within a postcode. Speeds can be affected by a range of technical and environmental factors. The speed at the property may be lower than that listed above. You can check the estimated speed and confirm availability to a property prior to purchasing on the broadband provider's website. Providers may increase charges. The information is provided and maintained by Decision Technologies Limited. **This is indicative only and based on a 2-person household with multiple devices and simultaneous usage. Broadband performance is affected by multiple factors including number of occupants and devices, simultaneous usage, router range etc. For more information speak to your broadband provider.
Map data ©OpenStreetMap contributors.








