
Tong Lane, Bacup, OL13
- PROPERTY TYPE
Land
- SIZE
Ask agent
Description
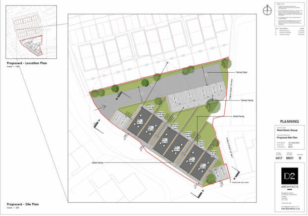
Location:
Land Off Reed Street Tong Lane Bacup Lancashire
A fabulous opportunity to purchase plot of land with planning permission for 6 dwellings.
Plans available to view via Rossendale Borough Council - Application Number: 2025/0192.
All information available to view via link below
particulars, whilst believed to be correct, do not form any part of an offer or contract. Intending purchasers should not rely on them as statements or representation of fact. No person in this firm's employment has the authority to make or give any representation or warranty in respect of the property. All measurements quoted are approximate. Although these particulars are thought to be materially correct their accuracy cannot be guaranteed and they do not form part of any contract.
Tong Lane, Bacup, OL13
NEAREST STATIONS
Distances are straight line measurements from the centre of the postcode- Walsden Station3.0 miles
- Todmorden Station3.5 miles
- Littleborough Station4.7 miles
Notes
Disclaimer - Property reference 34951. The information displayed about this property comprises a property advertisement. Rightmove.co.uk makes no warranty as to the accuracy or completeness of the advertisement or any linked or associated information, and Rightmove has no control over the content. This property advertisement does not constitute property particulars. The information is provided and maintained by Dewhurst Homes, Longridge. Please contact the selling agent or developer directly to obtain any information which may be available under the terms of The Energy Performance of Buildings (Certificates and Inspections) (England and Wales) Regulations 2007 or the Home Report if in relation to a residential property in Scotland.
Map data ©OpenStreetMap contributors.






